1. AnbieterArrow Icon
  2. TALBAU-Haus GmbHArrow Icon
  3. Einfamilienhaus U291
Slide 1
Slide 2
Slide 3
Slide 4
Slide 5
Slide 6
Slide 7
Slide 8
Slide 9
Slide 10
Slide 11
Slide 12
no description
TALBAU-Haus GmbHEinfamilienhaus U291
homeStadtvillen
livingArea208 m²
energyStandardEffizienzhaus 55
Preis anfragen
Katalog bestellen

Einfamilienhaus U291

Kundenhaus

Die Familie Happel hat sich bei der Verwirklichung Ihres TALBAU-Haus Unikats für eine Stadtvilla mit Walmdach im mediterranen Stil entschieden. Das Einfamilienhaus mit Doppelgarage wurde auf eine Bodenplatte gebaut.

Der Erker im Esszimmer durchbricht den ansonsten rechteckigen Hausgrundkörper und schafft dadurch zusätzliche Wohnfläche. Außerdem liegt auf dem Erker das über Eck laufende Vordach auf, welches einen witterungsgeschützten Aufenthalt auf der Terrasse ermöglicht.
Neben dem gemeinsamen Wohnbereich wurde im Erdgeschoss noch ein Gästezimmer mit angrenzendem Dusch-Badezimmer sowie ein Arbeitszimmer geplant. Auch der Technik- und Hauswirtschaftsraum sowie ein zusätzlicher Abstellraum wurden im Grundriss bedacht.
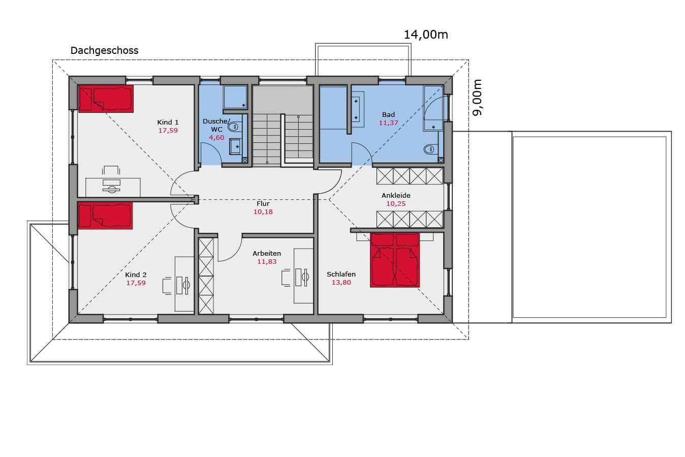
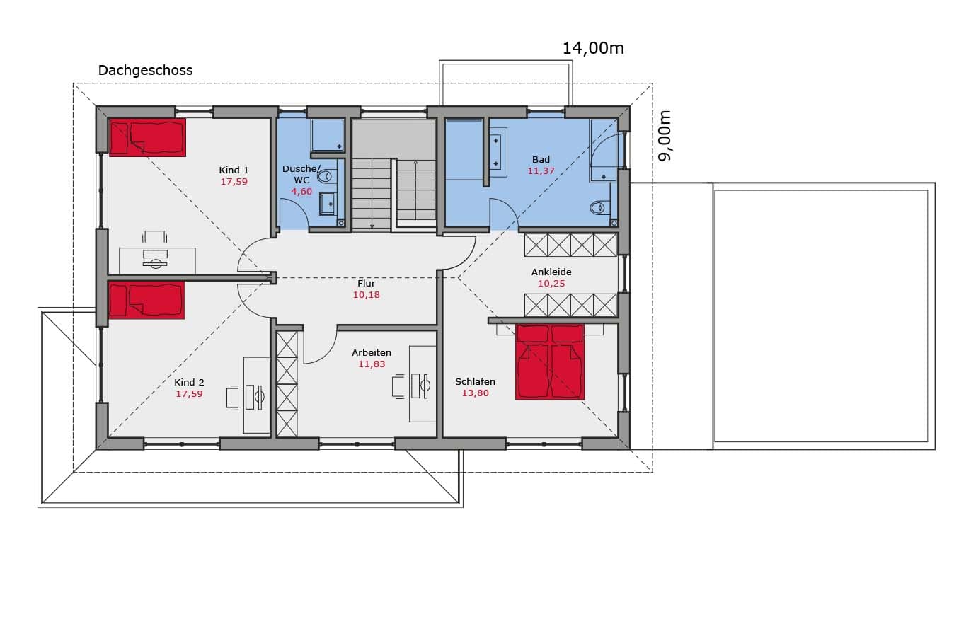
Eine Podesttreppe führt in das Obergeschoss zu den privaten Rückzugsräumen der Familie. Dort befinden sich die zwei gleichgroßen Kinderzimmer mit gemeinsamem Dusch-Badezimmer. Sowie das Elternschlafzimmer mit Ankleidezimmer und direktem Zugang ins Hauptbadezimmer. Des Weiteren gibt es ein zweites Arbeitszimmer.
"Wir genießen sehr unser nach Süden ausgerichtetes, lichtdurchflutetes, großes Wohn- und Esszimmer. Das meiste Leben spielt sich dort ab", antwortet die Bauherrin auf die Frage nach Ihren Lieblingsplätzen. "Die Kinder lieben ihre großen Zimmer, die bereits jetzt schon wieder zu klein sind, wenn man die Kinder fragt. Mit zwei Töchtern stellte sich auch im Nachhinein heraus, dass drei Badezimmer sehr vorteilhaft sein können,“ ergänzt uns Markus Happel.


„Angehenden Bauherren empfehlen wir sich nicht zu scheuen Fragen zu stellen, wenn es Unklarheiten gibt. Gerade in der Anfangszeit können so Fragenzeichen recht schnell ausgeräumt werden.“, sagte Corinna Happel.
Markus Happel fügt noch hinzu, dass selbst nach zwei Jahren im TALBAU-Haus Unikat noch nichts Grundlegendes aufgefallen ist, was sie anders hätten machen sollen. Die Erwartungen wurden bis heute erfüllt und sie würden aufgrund der Erfahrungen wieder mit TALBAU-Haus bauen.

Hausdaten

Hausart Icon
HausartEinfamilienhaus
Bauweise Icon
BauweiseHolz-Tafelbau
Anzahl Räume Icon
Anzahl Räume7
Baustil Icon
BaustilStadtvillen
Fassade Icon
FassadePutz
Außenmaße Icon
Außenmaße14 m x 9 m
Wohnfläche Icon
Wohnfläche208.33 m²
Dachform Icon
DachformWalm-/Zeltdach
Etagen Icon
Etagen2
Energiestandard Icon
EnergiestandardEffizienzhaus 55
Immobilientyp Icon
ImmobilientypKundenhaus
Dachneigung Icon
Dachneigung25°
Hauseigenschaften Icon
HauseigenschaftenGästezimmer
Hausdämmstoff Icon
HausdämmstoffHolzfaser- und Zellulosedämmstoffe
Heizungsart Icon
HeizungsartWärmepumpe (Luft, Wasser, oder beides)
Pfeil nach unten linksWir schaffen Platz für Ihre Träume

Grundriss

no description
Einfamilienhaus U291 Grundriss (EG)Wohnfläche EG: 110,14 m²
no description
Einfamilienhaus U291 Grundriss (DG)Wohnfläche DG: 98,19 m²

Unser Team vor Ort

Jens WeberFachberater*in bei TALBAU-Haus GmbH
no description
Wir beraten Sie gerne!Arrow Icon

Kataloge

TALBAU-Haus: Prospekt
TALBAU-Haus GmbH

TALBAU-Haus: Prospekt


TALBAU-Haus: Hauskatalog
TALBAU-Haus GmbH

TALBAU-Haus: Hauskatalog


House and TreeParksHouse and PinMusterhausHouse on HandAnbieter