1. AnbieterArrow Icon
  2. TALBAU-Haus GmbHArrow Icon
  3. Einfamilienhaus U082
Slide 1
Slide 2
Slide 3
Slide 4
Slide 5
Slide 6
Slide 7
Slide 8
Slide 9
Slide 10
Slide 11
Slide 12
Slide 13
Slide 14
Slide 15
Slide 16
Slide 17
Slide 18
Slide 19
Slide 20
Slide 21
no description
TALBAU-Haus GmbHEinfamilienhaus U082
homeKubushäuser im Bauhausstil
livingArea188 m²
energyStandardEffizienzhaus 55
Preis anfragen
Katalog bestellen

Einfamilienhaus U082

Kundenhaus

Das mit dem Golden Cube ausgezeichnete Objekt bietet neben Wohnen und Arbeiten sogar Platz für einen eigenen Wellnessbereich. Neben der Küche, dem Wohn- und Essbereich befindet sich im Erdgeschoss auch noch ein Gästezimmer, Gäste-WC sowie ein Arbeitszimmer. Im Dachgeschoss ist der Schlafraum der Eltern, drei Kinderzimmer und das Familienbad zu finden. Highlight im Badezimmer ist die freistehende Badewanne, welche zum Entspannen einlädt. Für noch mehr Entspannung befindet sich im Untergeschoss der hauseigene Wellnessbereich mit Sauna und Whirlpool.

Hausdaten

Hausart Icon
HausartEinfamilienhaus
Bauweise Icon
BauweiseHolz-Tafelbau
Anzahl Räume Icon
Anzahl Räume7
Baustil Icon
BaustilKubushäuser im Bauhausstil
Fassade Icon
FassadePutz
Außenmaße Icon
Außenmaße11 m x 9.5 m
Wohnfläche Icon
Wohnfläche188 m²
Dachform Icon
DachformFlachdach
Etagen Icon
Etagen2
Energiestandard Icon
EnergiestandardEffizienzhaus 55
Immobilientyp Icon
ImmobilientypKundenhaus
Hauseigenschaften Icon
HauseigenschaftenGästezimmer
Hausdämmstoff Icon
HausdämmstoffHolzfaser- und Zellulosedämmstoffe
Heizungsart Icon
HeizungsartWärmepumpe (Luft, Wasser, oder beides)
Pfeil nach unten linksWir schaffen Platz für Ihre Träume

Grundriss

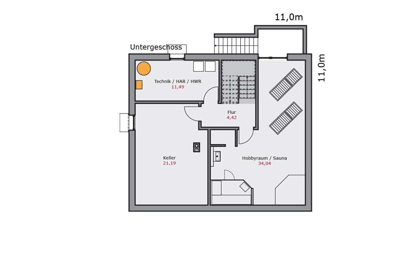
no description
Einfamilienhaus U082 Grundriss (Keller)Wohnfläche KG: 71 m²
no description
Einfamilienhaus U082 Grundriss (EG)Wohnfläche EG: 102,07 m²
no description
Einfamilienhaus U082 Grundriss (DG)Wohnfläche DG: 86,37 m²

Unser Team vor Ort

Jens WeberFachberater*in bei TALBAU-Haus GmbH
no description
Wir beraten Sie gerne!Arrow Icon

Kataloge

TALBAU-Haus: Prospekt
TALBAU-Haus GmbH

TALBAU-Haus: Prospekt


TALBAU-Haus: Hauskatalog
TALBAU-Haus GmbH

TALBAU-Haus: Hauskatalog


House and TreeParksHouse and PinMusterhausHouse on HandAnbieter
TALBAU-Haus – Kundenhaus Maleck