1. AnbieterArrow Icon
  2. TALBAU-Haus GmbHArrow Icon
  3. e.139 Extravagante Architektur
Slide 1
Slide 2
Slide 3
no description
TALBAU-Haus GmbHe.139 Extravagante Architektur
homeKubushäuser im Bauhausstil
livingArea147 m²
energyStandardEffizienzhaus 55
Preis anfragen
Katalog bestellen

e.139 Extravagante Architektur

Einfamilienhaus e.139

Die integrierte Doppelgarage im Erdgeschoss verfügt über einen zweiten Zugang direkt in den Flurbereich des Wohnhauses.

Im ersten Obergeschoss liegt der Wohnbereich mit offener Küche. Das zweite Obergeschoss ist den Kindern vorbehalten. Das Elternschlafzimmer mit Ankleide sowie separatem Bad befindet sich im Dachgeschoss.

Hausdaten

Hausart Icon
HausartEinfamilienhaus
Bauweise Icon
BauweiseHolz-Tafelbau
Anzahl Räume Icon
Anzahl Räume6
Baustil Icon
BaustilKubushäuser im Bauhausstil
Fassade Icon
FassadePutz
Außenmaße Icon
Außenmaße8.2 m x 10.5 m
Wohnfläche Icon
Wohnfläche147 m²
Dachform Icon
DachformPultdach
Etagen Icon
Etagen3
Energiestandard Icon
EnergiestandardEffizienzhaus 55
Immobilientyp Icon
ImmobilientypPlanungsidee
Dachneigung Icon
Dachneigung18°
Hauseigenschaften Icon
HauseigenschaftenTerasse
Hausdämmstoff Icon
HausdämmstoffHolzfaser- und Zellulosedämmstoffe
Heizungsart Icon
HeizungsartWärmepumpe (Luft, Wasser, oder beides)
Pfeil nach unten linksWir schaffen Platz für Ihre Träume

Grundriss

no description
e.139 Extravagante Architektur Grundriss (Keller)Wohnfläche KG: 76,48 m²
no description
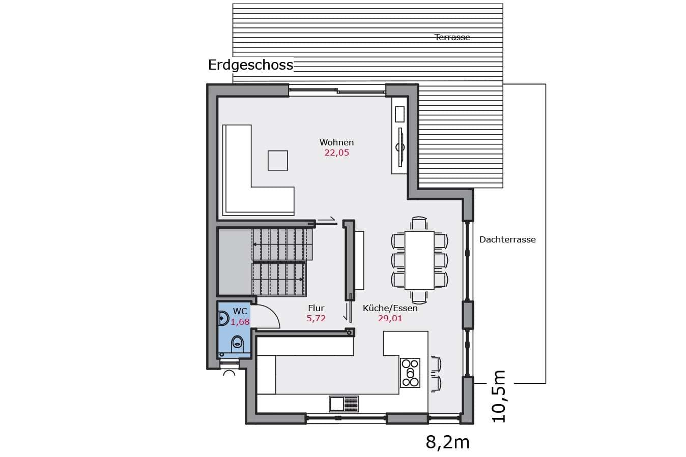
e.139 Extravagante Architektur Grundriss (EG)Wohnfläche EG: 58,36 m²
no description
e.139 Extravagante Architektur Grundriss (OG)Wohnfläche OG: 57,32 m²
no description
e.139 Extravagante Architektur Grundriss (DG)Wohnfläche DG: 31,84 m²

Unser Team vor Ort

Jens WeberFachberater*in bei TALBAU-Haus GmbH
no description
Wir beraten Sie gerne!Arrow Icon

Kataloge

TALBAU-Haus: Prospekt
TALBAU-Haus GmbH

TALBAU-Haus: Prospekt


TALBAU-Haus: Hauskatalog
TALBAU-Haus GmbH

TALBAU-Haus: Hauskatalog


House and TreeParksHouse and PinMusterhausHouse on HandAnbieter