1. AnbieterArrow Icon
  2. TALBAU-Haus GmbHArrow Icon
  3. Einfamilienhaus U177
Slide 1
Slide 2
Slide 3
Slide 4
Slide 5
Slide 6
Slide 7
Slide 8
no description
TALBAU-Haus GmbHEinfamilienhaus U177
homeKlassische Familienhäuser
livingArea149 m²
energyStandardEffizienzhaus 55
Preis anfragen
Katalog bestellen

Einfamilienhaus U177

Kundenhaus

Das holzverschalte Einfamilienhaus passt perfekt in die grüne Umgebung. Der reduzierte Dachvorsprung und die grauen Fenster in Kombination mit einer roten Haustür verleihen dem Wohnhaus einen modernen Look. Mit viel Liebe zum Detail wurde das Haus eingerichtet. Mittelpunkt des gemeinsamen Familienlebens ist hierbei der offene Wohnbereich im Erdgeschoss. Auch das Elternschlafzimmer mit Badezimmer findet im Erdgeschoss seinen Platz. Die vier weiteren Zimmer im Dachgeschoss können als Kinder-, Gäste- und Arbeitszimmer genutzt werden. Die Galerie im Flurbereich des Dachgeschosses wurde als kleines Lesezimmer eingerichtet.

Hausdaten

Hausart Icon
HausartEinfamilienhaus
Bauweise Icon
BauweiseHolz-Tafelbau
Anzahl Räume Icon
Anzahl Räume6
Baustil Icon
BaustilKlassische Familienhäuser
Fassade Icon
FassadeHolz
Außenmaße Icon
Außenmaße13.31 m x 7.66 m
Wohnfläche Icon
Wohnfläche149 m²
Dachform Icon
DachformSattel-/Giebeldach
Etagen Icon
Etagen1.5
Energiestandard Icon
EnergiestandardEffizienzhaus 55
Immobilientyp Icon
ImmobilientypKundenhaus
Dachneigung Icon
Dachneigung35°
Kniestock Icon
Kniestock1.2 m
Hauseigenschaften Icon
HauseigenschaftenGästezimmer
Hausdämmstoff Icon
HausdämmstoffHolzfaser- und Zellulosedämmstoffe
Heizungsart Icon
HeizungsartWärmepumpe (Luft, Wasser, oder beides)
Pfeil nach unten linksWir schaffen Platz für Ihre Träume

Grundriss

no description
Einfamilienhaus U177 Grundriss (Keller)Wohnfläche KG: 41 m²
no description
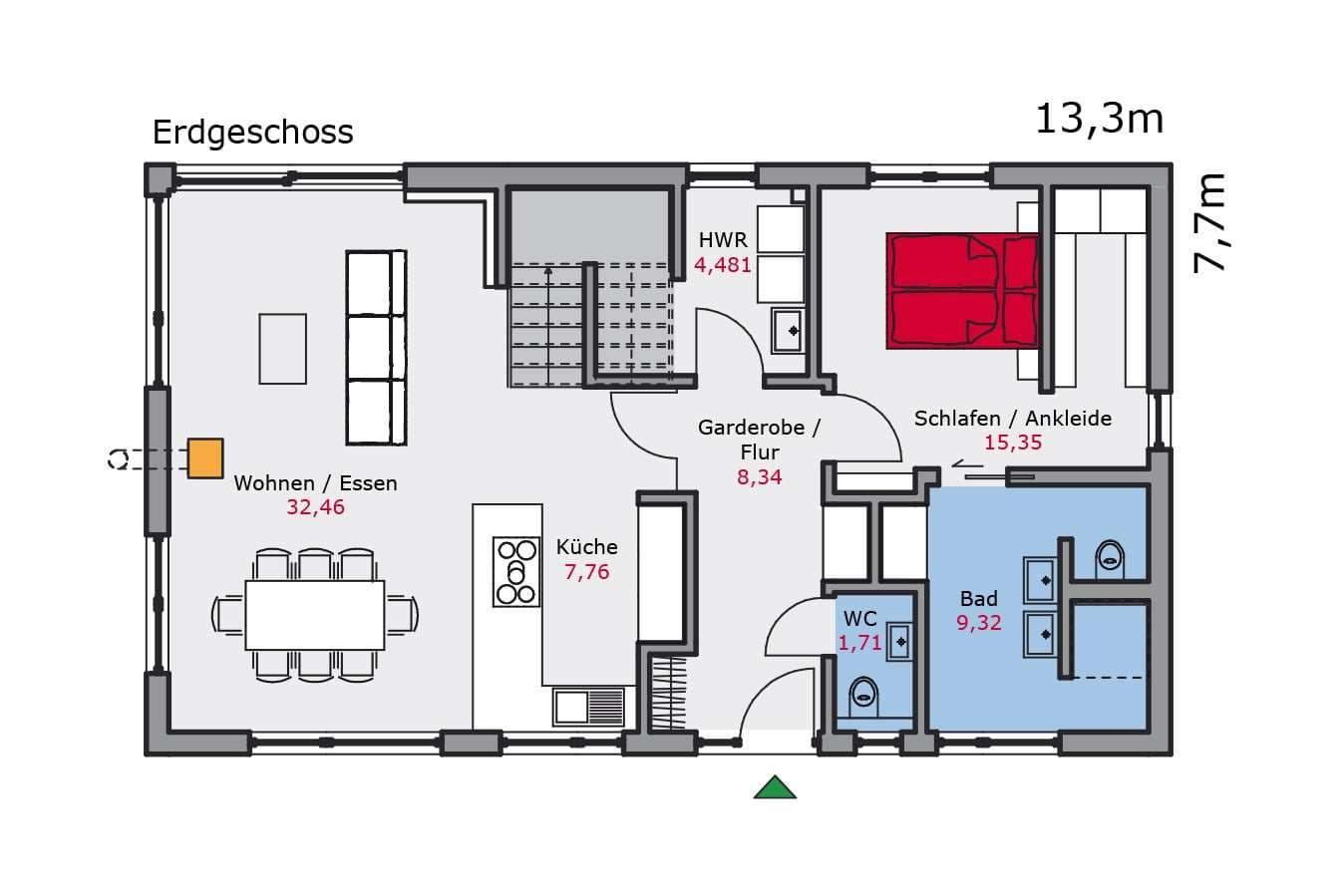
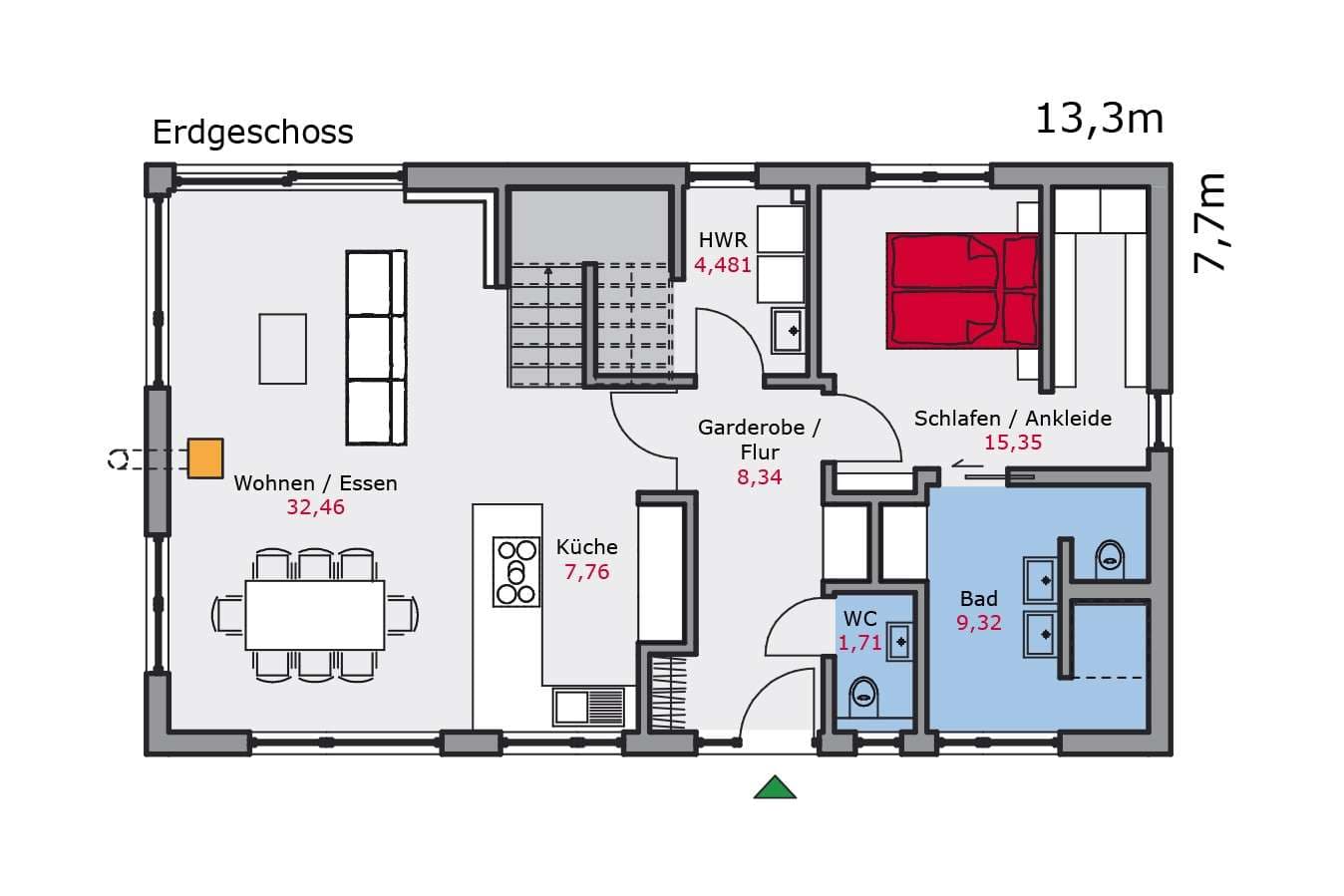
Einfamilienhaus U177 Grundriss (EG)Wohnfläche EG: 80 m²
no description
Einfamilienhaus U177 Grundriss (DG)Wohnfläche DG: 69 m²

Unser Team vor Ort

Jens WeberFachberater*in bei TALBAU-Haus GmbH
no description
Wir beraten Sie gerne!Arrow Icon

Kataloge

TALBAU-Haus: Prospekt
TALBAU-Haus GmbH

TALBAU-Haus: Prospekt


TALBAU-Haus: Hauskatalog
TALBAU-Haus GmbH

TALBAU-Haus: Hauskatalog


House and TreeParksHouse and PinMusterhausHouse on HandAnbieter