1. AnbieterArrow Icon
  2. TALBAU-Haus GmbHArrow Icon
  3. Einfamilienhaus U269
Slide 1
Slide 2
Slide 3
Slide 4
Slide 5
Slide 6
Slide 7
Slide 8
Slide 9
Slide 10
Slide 11
no description
TALBAU-Haus GmbHEinfamilienhaus U269
homeKubushäuser im Bauhausstil
livingArea247 m²
energyStandardEffizienzhaus 55
Preis anfragen
Katalog bestellen

Einfamilienhaus U269

Kundenhaus

Die fünfköpfige Familie hat sich zum Bau eines Eigenheims entschieden, da die vorherige Wohnung einfach zu klein und mehr Platz benötigt wurde.

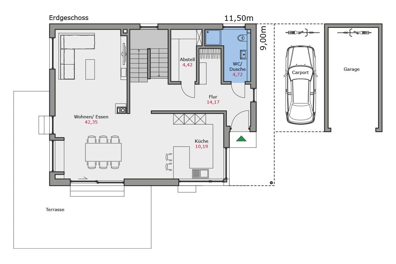
Das Bauhaus wurde in Kombination mit einer Garage sowie einem Carport errichtet. Der praktische Fassadenrücksprung im Eingangsbereich schafft einen witterungsgeschützten Zugang zum Haus. "Die offene Küche mit Wohn- und Esszimmer und das Sitzfenster zählen zu unseren absoluten Lieblingsplätzen im Haus“, erzählt uns der Bauherr. „Hier kommt die Familie zusammen und hat genügend Platz – im Sommer zusätzlich auf der großen Terrasse und im Winter vor dem Kamin.“ 
Eine Podesttreppe führt in das Dachgeschoss. Das Elternschlafzimmer liegt direkt neben dem Familienbadezimmer und verfügt über eine  Ankleide.

Auch die drei Kinderzimmer befinden sich in der obersten Etage. Dank des Flachdaches kann die Familie das Obergeschoss als Vollgeschoss nutzen. Die Kinder teilen sich ein separates Ankleidezimmer, welches über den gemeinsamen Flur zugänglich ist. 
Das Familienbadezimmer wurde mit einer T-Wand realisiert. So finden die Waschbecken an der Stirnseite ihren Platz. Rechter Hand befindet sich die Toilette und links die boden-ebene, begehbare Dusche. 

Der Technik- und Hauswirtschaftsraum, ein Hobbyraum sowie ein großzügiger Kellerraum befinden sich im Untergeschoss des Wohnhauses.
Die Bauherren aus Sachsenheim erzählten, dass die komplette Bauzeit ein prägendes Ereignis war. Allerdings war der Stelltag für die Familie mit Sicherheit das absolute Highlight.

Hausdaten

Hausart Icon
HausartEinfamilienhaus
Bauweise Icon
BauweiseHolz-Tafelbau
Anzahl Räume Icon
Anzahl Räume6
Baustil Icon
BaustilKubushäuser im Bauhausstil
Fassade Icon
FassadePutz
Außenmaße Icon
Außenmaße11.5 m x 9 m
Wohnfläche Icon
Wohnfläche247.4 m²
Dachform Icon
DachformFlachdach
Energiestandard Icon
EnergiestandardEffizienzhaus 55
Immobilientyp Icon
ImmobilientypKundenhaus
Dachneigung Icon
Dachneigung
Hauseigenschaften Icon
HauseigenschaftenGästezimmer
Hausdämmstoff Icon
HausdämmstoffHolzfaser- und Zellulosedämmstoffe
Heizungsart Icon
HeizungsartWärmepumpe (Luft, Wasser, oder beides)
Pfeil nach unten linksWir schaffen Platz für Ihre Träume

Grundriss

no description
Einfamilienhaus U269 Grundriss (Keller)Wohnfläche KG: 75,37 m²
no description
Einfamilienhaus U269 Grundriss (EG)Wohnfläche EG: 85,16 m²
no description
Einfamilienhaus U269 Grundriss (DG)Wohnfläche DG: 86,87 m²

Unser Team vor Ort

Jens WeberFachberater*in bei TALBAU-Haus GmbH
no description
Wir beraten Sie gerne!Arrow Icon

Kataloge

TALBAU-Haus: Prospekt
TALBAU-Haus GmbH

TALBAU-Haus: Prospekt


TALBAU-Haus: Hauskatalog
TALBAU-Haus GmbH

TALBAU-Haus: Hauskatalog


House and TreeParksHouse and PinMusterhausHouse on HandAnbieter