1. AnbieterArrow Icon
  2. TALBAU-Haus GmbHArrow Icon
  3. e.162 Einfamilienhaus auf Bodenplatte
e.162-Einfamilienhaus-auf-Bodenplatte.jpg
no description
TALBAU-Haus GmbHe.162 Einfamilienhaus auf Bodenplatte
homeKlassische Familienhäuser
livingArea180 m²
Preis anfragen
Katalog bestellen

e.162 Einfamilienhaus auf Bodenplatte

Einfamilienhaus e.162

Das geräumige Einfamilienhaus mit rund 180 qm wurde auf Bodenplatte geplant. Durch den Wegfall des Kellers muss hierbei ein ausreichend großer Technikraum im Erdgeschoss bei der Grundrissplanung beachtet werden.

Durch die Haustür betritt man den großzügigen Garderobenbereich des Einfamilienhauses. Über den Flur erschließen sich von hier das Gästezimmer, ein Dusch-Badezimmer sowie der offene Wohnbereich.

Die Küche mit Kochinsel wurde mit Blick in Richtung Garten geplant. Ein kleiner Abstellraum in kurzer Distanz zur Küche eignet sich ebenso zur Vorratshaltung von Lebensmitteln, wie für die Lagerung von Getränkekisten.

Ein weiterer kleiner Abstellraum befindet sich unter der Treppe, neben dem Eingang zum Gästezimmer. Hier können zum Beispiel Staubsauger und Putzmittel untergebracht werden.

Das Wohnzimmer wurde mit einem gemütlichen Erker geplant, welcher zusätzlich die Wohnfläche noch einmal vergrößert. Durch eine eingezogene Zwischenwand findet so auf der einen Seite der Fernseher seinen Platz und auf der anderen Seite ein gemütlicher Kaminofen.

Highlight ist das große Sitzfenster im Wohnzimmer mit Blick in den Garten als auch zum Kaminofen. Hier lässt es sich an kalten und regnerischen Tagen gemütlich verweilen.

Die großen Fensterfronten zum Garten ermöglichen einen maximalen Tageslichteinfall.

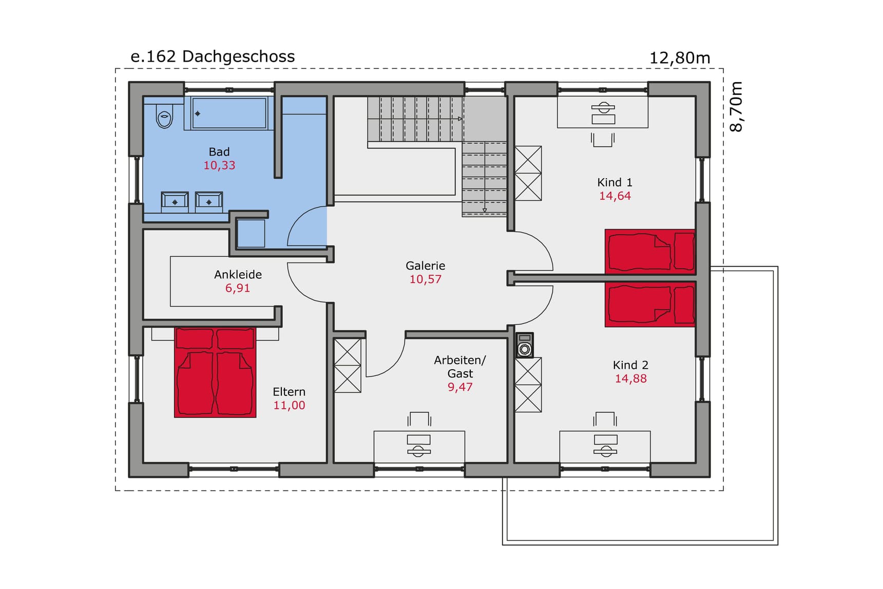
Im Dachgeschoss befinden sich die Schlafräume des Wohnhauses. Über den großzügigen Flurbereich erschließen sich rechter die beiden Kinderzimmer und linker Hand das Elternschlafzimmer mit integrierter Ankleide sowie das Familienbadezimmer. 

Das Badezimmer wurde mit einer begehbaren Dusche, zwei Waschbecken, einer Toilette sowie einer Badewanne geplant. Ebenso wurden hier die Anschlüsse von Waschmaschine und Trockner untergebracht. So kann anfallende Wäsche sofort gewaschen und wieder aufgeräumt werden. 

Des Weiteren befindet sich in der obersten Etage ein Arbeitszimmer. So vereint der Grundrissentwurf die Anforderung von Wohnen und Arbeiten unter einem Dach.

Durch den Kniestock im Dachgeschoss von 1,50m kann der Platz unter den Dachschrägen noch als Stellfläche für Schränke genutzt werden. Ebenso hervorzuheben ist, dass die fehlende Zwischendecke in der obersten Etage ein besonders luftiges Raumgefühl schafft und den Blick bis unter den Dachfirst freigibt. 

 

Hausdaten

Hausart Icon
HausartEinfamilienhaus
Bauweise Icon
BauweiseHolz-Tafelbau
Anzahl Räume Icon
Anzahl Räume7.5
Baustil Icon
BaustilKlassische Familienhäuser
Außenmaße Icon
Außenmaße14.3 m x 10.2 m
Wohnfläche Icon
Wohnfläche180 m²
Dachform Icon
DachformSattel-/Giebeldach
Etagen Icon
Etagen1.5
Immobilientyp Icon
ImmobilientypPlanungsidee
Hausdämmstoff Icon
HausdämmstoffHolzfaser- und Zellulosedämmstoffe
Pfeil nach unten linksWir schaffen Platz für Ihre Träume

Grundriss

e.162-Erdgeschoss.jpg
e.162 Einfamilienhaus auf Bodenplatte Grundriss (EG)Wohnfläche EG: 102 m²
e.162-Dachgeschoss.jpg
e.162 Einfamilienhaus auf Bodenplatte Grundriss (DG)Wohnfläche DG: 78 m²

Kataloge

TALBAU-Haus: Prospekt
TALBAU-Haus GmbH

TALBAU-Haus: Prospekt


TALBAU-Haus: Hauskatalog
TALBAU-Haus GmbH

TALBAU-Haus: Hauskatalog


House and TreeParksHouse and PinMusterhausHouse on HandAnbieter