1. AnbieterArrow Icon
  2. TALBAU-Haus GmbHArrow Icon
  3. d.158 Doppelhaushälfte mit integrierter Doppelgarage
Slide 1
Slide 2
no description
TALBAU-Haus GmbHd.158 Doppelhaushälfte mit integrierter Doppelgarage
homeKlassische Familienhäuser
livingArea210 m²
Preis anfragen
Katalog bestellen

d.158 Doppelhaushälfte mit integrierter Doppelgarage

Doppelhaushälfte d.158

Der Grundrissentwurf dieser Doppelhaushälfte eignet sich besonders gut für schmale Grundstücke und ist im Inneren ein wahres Raumwunder. Das Untergeschoss des Wohnhauses wurde hierbei mit einer integrierten Doppelgarage und direktem Zugang in den Hausflur geplant. Insgesamt hat das Wohnhaus ein Außenmaß von 7,50m auf 13,00m. Auch die abfallende Hanglage zur Straße wurde geschickt genutzt und bei der Planung beachtet.

Neben dem Zugang über die Garage verfügt das Doppelhaus ebenso über eine klassische Hauseingangstür. Der großzügige Flurbereich bietet ausreichend Platz für eine Garderobe sowie Stellfläche für Schuhschränke. Ein Keller- bzw. Werkstattraum sowie der Hauswirtschafts- und Technikraum befinden sich ebenfalls im Untergeschoss des Wohnhauses. Besonders praktisch ist das zusätzliche Dusch-Badezimmer. So können Hobbyschrauber und -gärtner direkt unten Duschen und die schmutzige Kleidung in die Waschmaschine bringen.

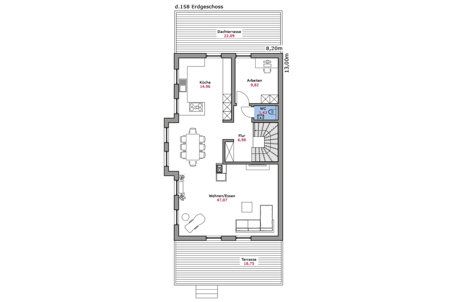
Im Erdgeschoss befinden sich die gemeinsamen Wohnbereiche. Die offene Küche, das Esszimmer sowie das Wohnzimmer wurden in einem offenen Raumkonzept geplant. Der 70 cm tiefe Satteldachquerbau im Esszimmer sorgt noch einmal für einen zusätzlichen Gewinn an Wohnfläche.

Weiteres Highlight sind die beiden Terrassenbereiche. Eine Dachterrasse ist direkt über die Küche zugänglich und liegt quasi anteilig auf der Doppelgarage auf. Die zweite Terrasse schließt sich dem Wohnzimmer an. So können Sie je nach Tageszeitverlauf entweder mit der Sonne oder mit dem Schatten wandern, ganz wie Sie es möchten. Für die kälteren Tage wurde im Wohnzimmer ein Kaminofen geplant. Ein Gäste-WC sowie ein zusätzliches Arbeitszimmer komplettieren den Grundriss des Erdgeschosses.

Im Obergeschoss liegt das Hauptschlafzimmer, zwei Kinderzimmer sowie das gemeinsame Badezimmer. Die beiden Kinderzimmer profitieren ebenfalls von dem Satteldachquerbau der neben der zusätzlichen Wohnfläche im Esszimmer, auch die Kinderzimmer noch einmal etwas vergrößert und vor allem durch die bodentiefen Fenster mehr Tageslicht einfallen lässt.

Das Hauptbadezimmer wurde mit einer integrierten Duschlösung, einer Badewanne, zwei Waschbecken und einem WC geplant. Bei der begehbaren Dusche haben Sie den Vorteil, dass kein weiterer Spritzschutz benötigt wird und somit auf gläserne Duschkabinen oder Duschvorhänge verzichten können.

Hausdaten

Hausart Icon
HausartDoppelhaus
Bauweise Icon
BauweiseHolz-Tafelbau
Anzahl Räume Icon
Anzahl Räume6.5
Baustil Icon
BaustilKlassische Familienhäuser
Außenmaße Icon
Außenmaße8.2 m x 13 m
Wohnfläche Icon
Wohnfläche210 m²
Dachform Icon
DachformSattel-/Giebeldach
Etagen Icon
Etagen2.5
Immobilientyp Icon
ImmobilientypPlanungsidee
Hausdämmstoff Icon
HausdämmstoffHolzfaser- und Zellulosedämmstoffe
Pfeil nach unten linksWir schaffen Platz für Ihre Träume

Grundriss

d.158-Untergeschoss.jpg
d.158 Doppelhaushälfte mit integrierter Doppelgarage Grundriss (Keller)Wohnfläche KG: 52 m²
d.158-Erdgeschoss.jpg
d.158 Doppelhaushälfte mit integrierter Doppelgarage Grundriss (EG)Wohnfläche EG: 89 m²
d.158-Dachgeschoss.jpg
d.158 Doppelhaushälfte mit integrierter Doppelgarage Grundriss (DG)Wohnfläche DG: 69 m²

Kataloge

TALBAU-Haus: Prospekt
TALBAU-Haus GmbH

TALBAU-Haus: Prospekt


TALBAU-Haus: Hauskatalog
TALBAU-Haus GmbH

TALBAU-Haus: Hauskatalog


House and TreeParksHouse and PinMusterhausHouse on HandAnbieter