1. AnbieterArrow Icon
  2. TALBAU-Haus GmbHArrow Icon
  3. d.159 Doppelhaushälfte mit Flachdach
Slide 1
Slide 2
no description
TALBAU-Haus GmbHd.159 Doppelhaushälfte mit Flachdach
homeKubushäuser im Bauhausstil
livingArea116 m²
Preis anfragen
Katalog bestellen

d.159 Doppelhaushälfte mit Flachdach

Doppelhaushälfte d.159

Das Doppelhaus mit Flachdach erfüllt alle Kriterien eines modernen Bauhauses. Von außen erscheint das Wohnhaus geradlinig, clean und unaufgeregt. Getreu dem Motto quadratisch, praktisch, gut, erschließt sich der quaderförmige Baukörper mit zwei Vollgeschossen und einem Keller.

Der Gestaltung des Eingangsbereichs wurde nicht zu knapp bemessen. Neben einer Garderobe wurde eine zusätzliche Nische für einen Wandschrank bei der Planung integriert. Über den Flur sind ebenso ein Dusch-Badezimmer sowie ein praktischer Abstellraum direkt erreichbar.

Der ansonsten offene Wohnbereich wird durch eine Schiebetür von der Diele abgegrenzt. Der Koch-, Ess- und Wohnbereich wurde bei diesem offen gestaltet und ermöglicht es so, stets den Überblick über die Geschehnisse zu behalten.

Eine großzügige Hebe-Schiebetür ermöglicht den Zutritt vom offenen Wohnbereich auf die Terrasse und in den angrenzenden Garten.

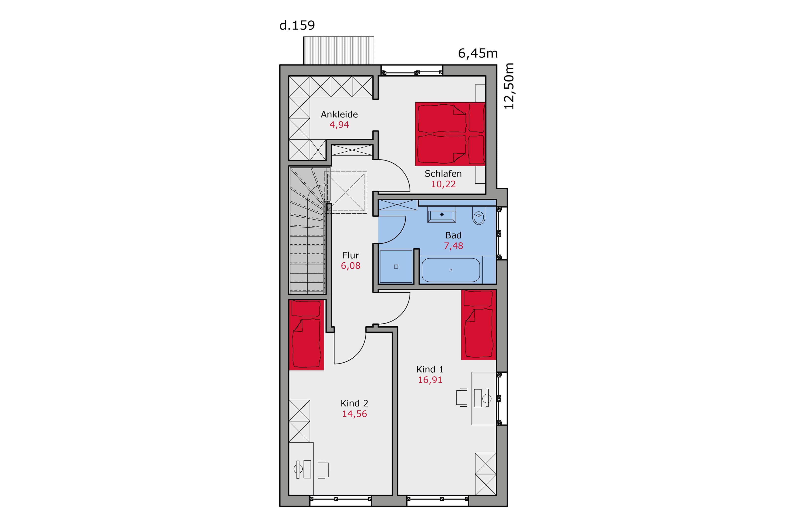
Über das Wohnzimmer führt eine Treppe in das Dachgeschoss und zu den Schlafräumen. Zur Gartenseite wurden die beiden Kinderzimmer geplant. Auf der gegenüberliegenden Seite befindet sich das Hauptschlafzimmer mit separater Ankleide. Das gemeinsame Badezimmer wurde mittig im Grundriss geplant und ist für alle über den Flur erreichbar. 

Trotz der geringen Größe von rund 8 qm bietet das Badezimmer alles was nötig ist. Neben einer Dusche, einem Waschtisch und einem WC, findet sich im kleinen Badezimmer auch noch Platz für eine Badewanne.

Zusätzlicher Stauraum bietet der Keller. Hier befindet sich neben Hauswirtschafts- und Technikraum, auch ein zusätzlicher Kellerraum. Ein weiterer Raum mit knapp 30 qm bietet noch einmal Platz, um als Gäste- oder Arbeitszimmer genutzt werden zu können. Über ein größeres Lichtschachtfenster wird der Raum mit etwas zusätzlichem Tageslicht versorgt.

Auf den ersten Blick erscheint das Doppelhaus mit seinen fünf Zimmern und den 120 qm nicht sehr groß, doch ist der verfügbare Platz clever ausgenutzt. Und durch das Flachdach lebt es sich ohne Dachschrägen. Dies bedeutet, dass auch in der obersten Etage keine wertvolle Wohnfläche durch Dachschrägen verschenkt wird.

Hausdaten

Hausart Icon
HausartDoppelhaus
Bauweise Icon
BauweiseHolz-Tafelbau
Anzahl Räume Icon
Anzahl Räume5
Baustil Icon
BaustilKubushäuser im Bauhausstil
Außenmaße Icon
Außenmaße6.15 m x 12.5 m
Wohnfläche Icon
Wohnfläche116 m²
Dachform Icon
DachformFlachdach
Etagen Icon
Etagen1.5
Immobilientyp Icon
ImmobilientypPlanungsidee
Hausdämmstoff Icon
HausdämmstoffHolzfaser- und Zellulosedämmstoffe
Pfeil nach unten linksWir schaffen Platz für Ihre Träume

Grundriss

d.159-Untergeschoss.jpg
d.159 Doppelhaushälfte mit Flachdach Grundriss (Keller)Wohnfläche KG: 57 m²
d.159-Erdgeschoss.jpg
d.159 Doppelhaushälfte mit Flachdach Grundriss (EG)Wohnfläche EG: 58 m²
d.159-Dachgeschoss.jpg
d.159 Doppelhaushälfte mit Flachdach Grundriss (DG)Wohnfläche DG: 59 m²

Kataloge

TALBAU-Haus: Prospekt
TALBAU-Haus GmbH

TALBAU-Haus: Prospekt


TALBAU-Haus: Hauskatalog
TALBAU-Haus GmbH

TALBAU-Haus: Hauskatalog


House and TreeParksHouse and PinMusterhausHouse on HandAnbieter