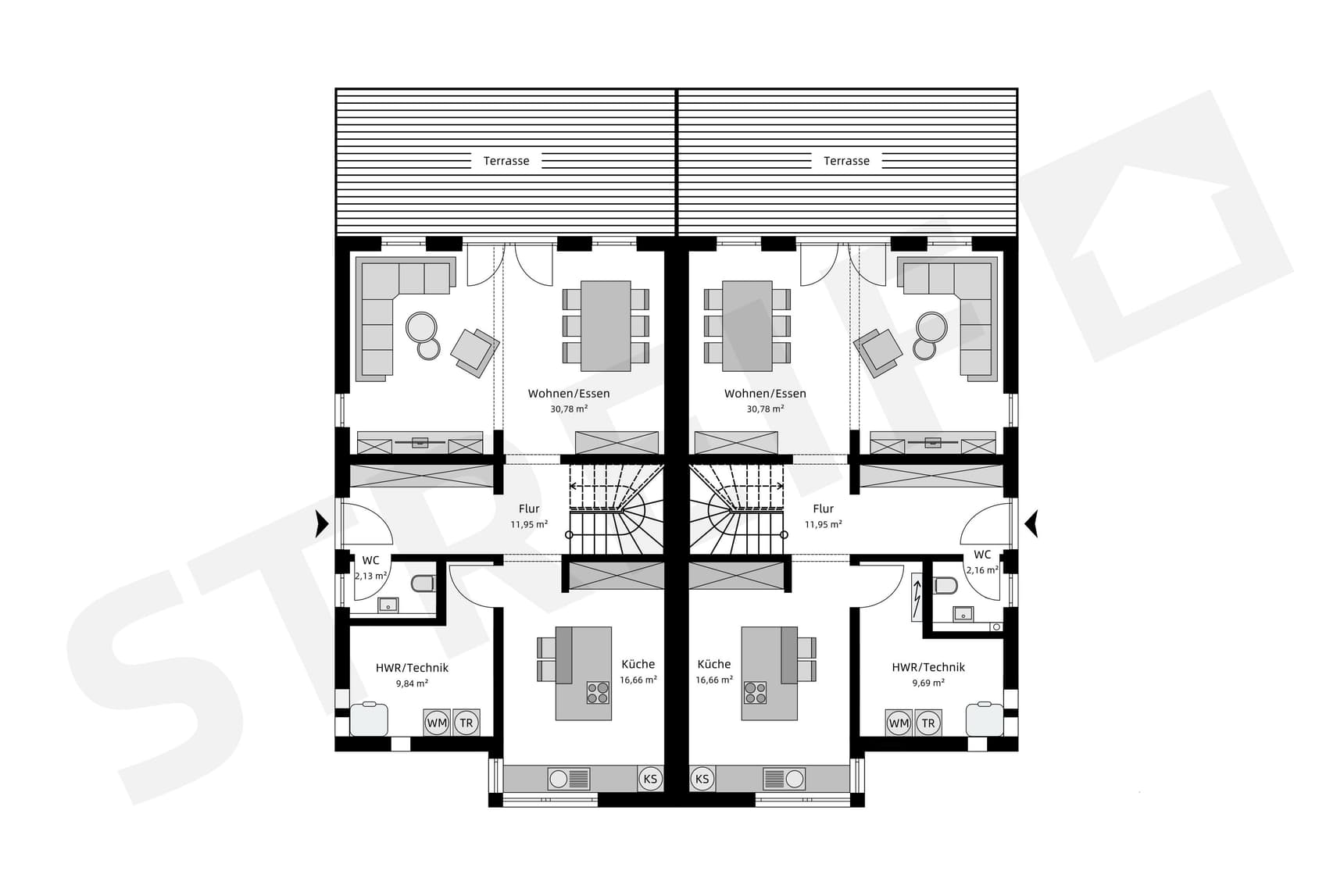
Der repräsentative Doppelhausentwurf mit Satteldach (STREIF-Haus-ID: TH-DH-SD-143) besticht durch seine moderne Kombination aus Zwerchgiebel und Erker – beide mit Flachdach ausgeführt. Die geräumige Küche mit 16 m² liegt zur Straßenseite und verfügt über ein markantes Übereckfenster, das viel Licht hereinlässt und den Blick ins Freie öffnet. Direkt angrenzend befindet sich der praktische Hauswirtschaftsraum. Der großzügige Wohn- und Essbereich zur Gartenseite wird durch fünf bodentiefe Fenster lichtdurchflutet und schafft ein einladendes Wohnambiente.
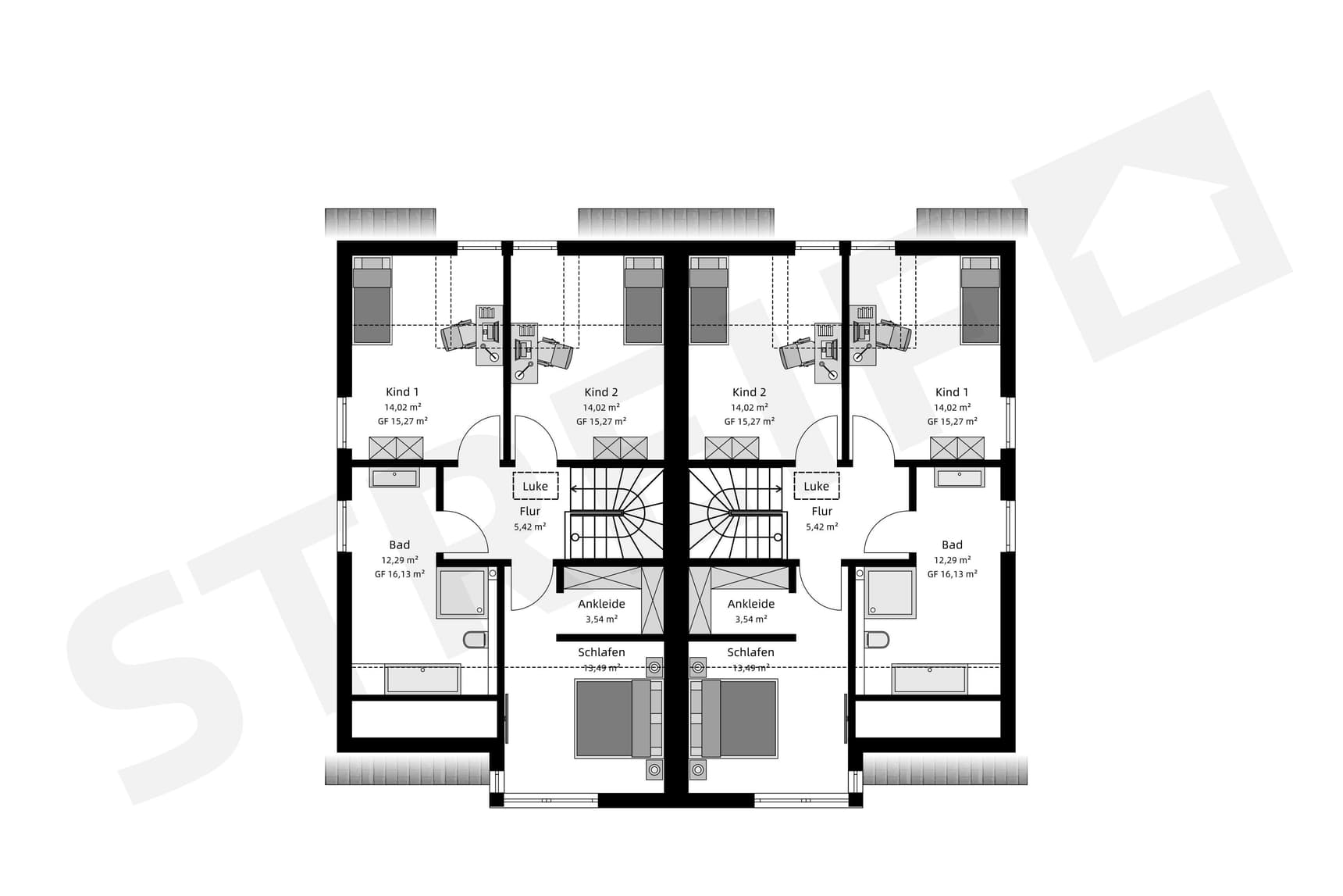
Im Dachgeschoss bieten die beiden Kinderzimmer dank Zwerchgiebel ebenfalls bodentiefe Fenster. Der Elternbereich verfügt über eine separate Ankleide, ergänzt durch ein großes Familienbad. Mit rund 143 m² Wohnfläche bietet der Entwurf idealen Raum für eine vierköpfige Familie. Wie jedes STREIF-Haus wird auch dieses Doppelhaus individuell nach den Wünschen der Bauherren geplant und realisiert.
Alle STREIF-Häuser entsprechen den Vorgaben des Gebäudeenergiegesetzes (GEG) und erfüllen standardmäßig die Kriterien eines KfW-Effizienzhauses 40.
Bauen Sie Ihr Haus nachhaltig und zukunftsorientiert: Auf Wunsch bieten wir Ihnen für Ihr STREIF-Haus eine Ökobilanzierung oder eine Nachhaltigkeitszertifizierung (z. B. QNG-Zertifizierung) an. Diese Zusatzleistungen sind gegen Aufpreis erhältlich und unterstützen Sie dabei, den ökologischen Fußabdruck Ihres Hauses transparent zu machen und staatliche Fördermöglichkeiten optimal zu nutzen.
Wenn Sie Ihren Hausbau nachhaltig planen möchten, beraten wir Sie gerne individuell. Vor Beginn der Planung ist eine separate Nachhaltigkeitsberatung erforderlich, in der wir gemeinsam die nachhaltigen Planungsziele für Ihr Bauprojekt festlegen. So entsteht ein energieeffizientes, umweltfreundliches und zukunftssicheres Zuhause – ganz nach Ihren Vorstellungen.
Weitere Informationen zu dieser Hausbaureihe finden Sie auf unserer Webseite unter Doppelhaus.

