Das Aktionshaus City (STREIF-Haus-ID: AH-SV-WD-125) aus der Reihe "Unsere Besten" vereint modernes Design mit durchdachter Funktionalität. Die 2-geschossige Stadtvilla mit Walmdach überzeugt mit lichtdurchfluteten Räumen und einer flexiblen Raumaufteilung.
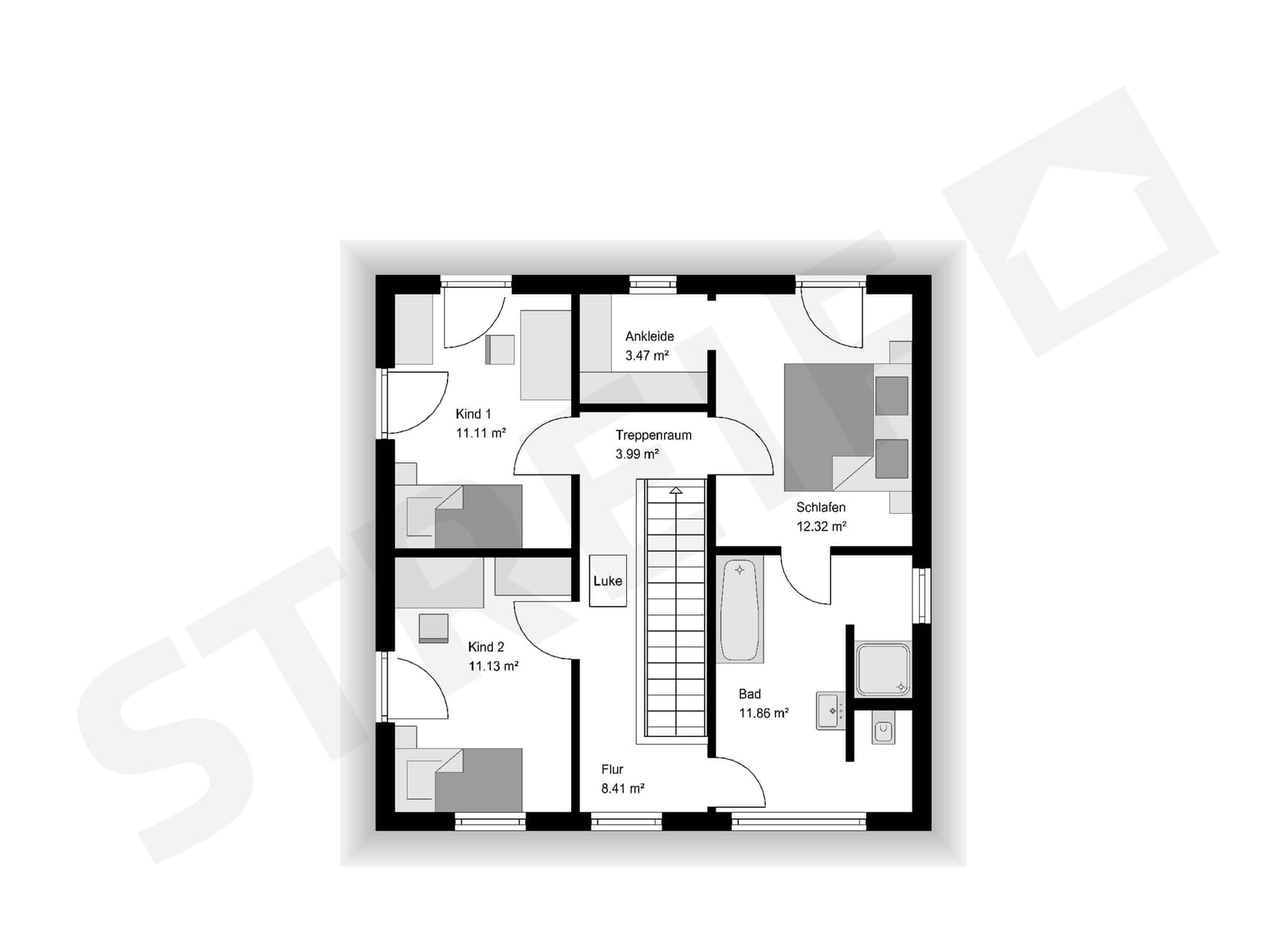
Im Erdgeschoss bietet ein Zusatzraum Platz für Büro, Gäste oder Hobby, zudem ist eine optionale Dusche möglich. Eine geradläufige Treppe führt ins Obergeschoss, das perfekt auf Familienbedürfnisse abgestimmt ist. Die City-Linie ist auch mit anderen Treppen-Varianten erhältlich.
Das Aktionshaus “Unsere Besten - City” ist in drei Größen verfügbar:
L – 125,27 m²
XL – 144,36 m²
XXL – 175,56 m²
Planen Sie jetzt Ihre Zukunft in einem energieeffizienten Zuhause und sichern sich einen unserer Bestseller zu Bestpreisen.
STREIF-Fertighäuser sind förderfähig. Fragen Sie Ihre persönliche STREIF-Bauberatung in der Region. Diese informiert Sie gerne über die aktuellen KfW-Fördermöglichkeiten.
Die präsentierten Grundrissdarstellungen sind als Beispiele zu verstehen und können individuell angepasst werden. Abhängig von der gewählten technischen Ausstattung und den jeweiligen Bauvorgaben vor Ort kann es notwendig sein, bestimmte Änderungen vorzunehmen. Alle angegebenen Maße verstehen sich als ungefähre Richtwerte.
Unter Berücksichtigung der gewählten Dachform und Grundrissstruktur ist eine ökologische Bewertung nach KFWG-Standard bei den Ausstattungsserien Premium und Queensline unter Umständen realisierbar.
Gestalterische Freiheiten bestehen grundsätzlich, jedoch bleiben die Position der Sanitärbereiche sowie die Dimension und Platzierung des Technikraums fix. Für ausführliche Informationen zu aktuellen Förderprogrammen stehen Ihnen unsere STREIF-Bauberatungen gerne zur Verfügung.
Bitte beachten Sie, dass einige der dargestellten Visualisierungen optionale Ausstattungen oder Zusatzbauteile enthalten können, die nicht zum Lieferumfang gehören.
Folgende STREIF-Leistungen sind im Bestpreis unserer Bestseller enthalten – bei Ausbaustufe fastfertig+ in der Ausstattungslinie Smartline:
•Inklusive Fundamentplatte
•Inklusive STREIF-Luft-Luft-Wärmepumpen-Technologie, mit integrierter Lüftungsanlage mit Wärmerückgewinnung
•Inklusive Kunststoffhaustür
•Inklusive hocheffizienten Kunststoff-Fenstern von Porta/Kömmerling
•Inklusive Treppe in Buche natur aus eigener Produktion (außer Bungalow)
•Inklusive Sanitärobjekten von Markenherstellern in Bad/WC
•Inklusive Elektroinstallation u.v.m.
•Inklusive Vorbereitung zur Installation einer Photovoltaik-Anlage
•Individuelle Grundrissgestaltung und Raumaufteilung möglich | Die Position der Bäder, die Größe der Haustechnikräume und der Treppen sind bei „Unsere Besten“ nicht veränderbar.
Die gezeigten Abbildungen können Sonderausstattungen oder Anbauteile enthalten, die nicht im Standard-Lieferumfang enthalten sind.

