1. AnbieterArrow Icon
  2. Stommel HausArrow Icon
  3. Stark im Detail
Slide 1
Slide 2
Slide 3
Slide 4
Slide 5
Slide 6
Slide 7
Slide 8
no description
Stommel HausStark im Detail
homeKubushäuser im Bauhausstil
livingArea222 m²
energyStandardEffizienzhaus 40
Preis anfragen
Katalog bestellen

Stark im Detail

Ein Haus wie ein Baum

Ein Haus, stimmig bis ins letzte Detail! Zunächst jedoch zum großen Ganzen. Auch bei der „Magnolie“ handelt es sich um ein Massivholzhaus in modern
interpretierter Bauhaus-Architektur, dem man den hölzernen Kern zunächst nicht ansieht. Geplant wurde das Haus für eine fünfköpfige Familie, deren Lebensmittelpunkt der fast 50 Quadratmeter große Ess-Wohn-Bereich plus 18-Quadratmeter-Küche ist. Im Haus deutet sich die besondere Bauweise optisch nur in Form der sichtbaren Holzbalkendecke an, ansonsten sind die Wände in reinem Weiß gehalten. Zu den Details: Da ist die Ganzscheibenverglasung der Terrasse als Windschutz, die sich in Form einer Absturzsicherung an der Geschosstreppe innen wieder findet. Ebenso stimmig sind die Haustür, die Parkettböden und die Treppe mit einem in die Wand eingelassenen, passenden Handlauf aus Eichenholz. Gezielte Akzente setzen die in Wände und Decken eingelassen LED-Leuchten, die die klare, durchgängige Handschrift der Einrichtung perfekt in Szene setzt.

Hausdaten

Hausart Icon
HausartEinfamilienhaus
Bauweise Icon
BauweiseHolz-Tafelbau
Anzahl Räume Icon
Anzahl Räume7
Baustil Icon
BaustilKubushäuser im Bauhausstil
Fassade Icon
FassadePutz
Wohnfläche Icon
Wohnfläche222 m²
Dachform Icon
DachformFlachdach
Energiestandard Icon
EnergiestandardEffizienzhaus 40
Immobilientyp Icon
ImmobilientypKundenhaus
Hauseigenschaften Icon
HauseigenschaftenGästezimmer
Heizungsart Icon
HeizungsartWärmepumpe (Luft, Wasser, oder beides)
Pfeil nach unten linksWir schaffen Platz für Ihre Träume

Grundriss

no description
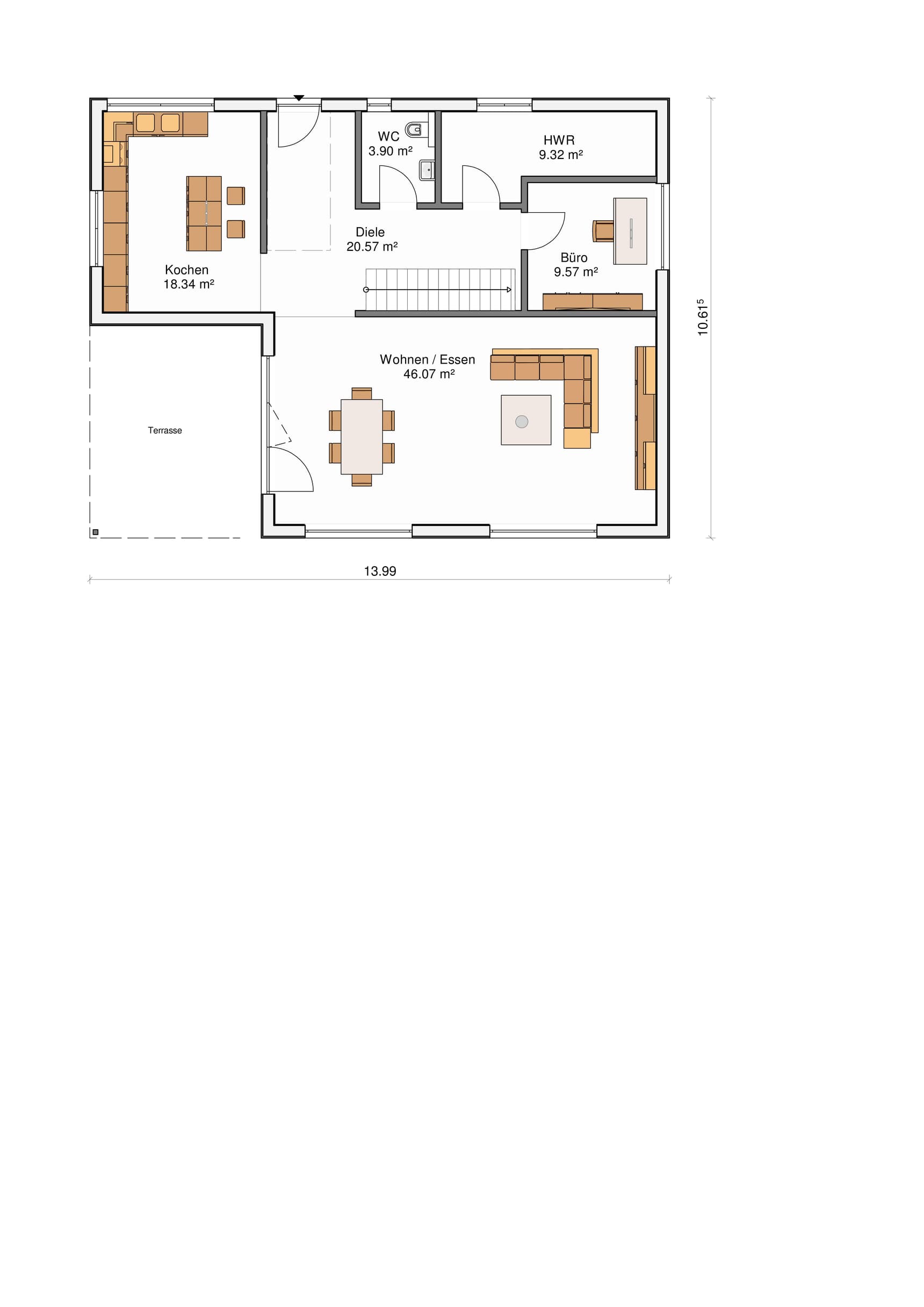
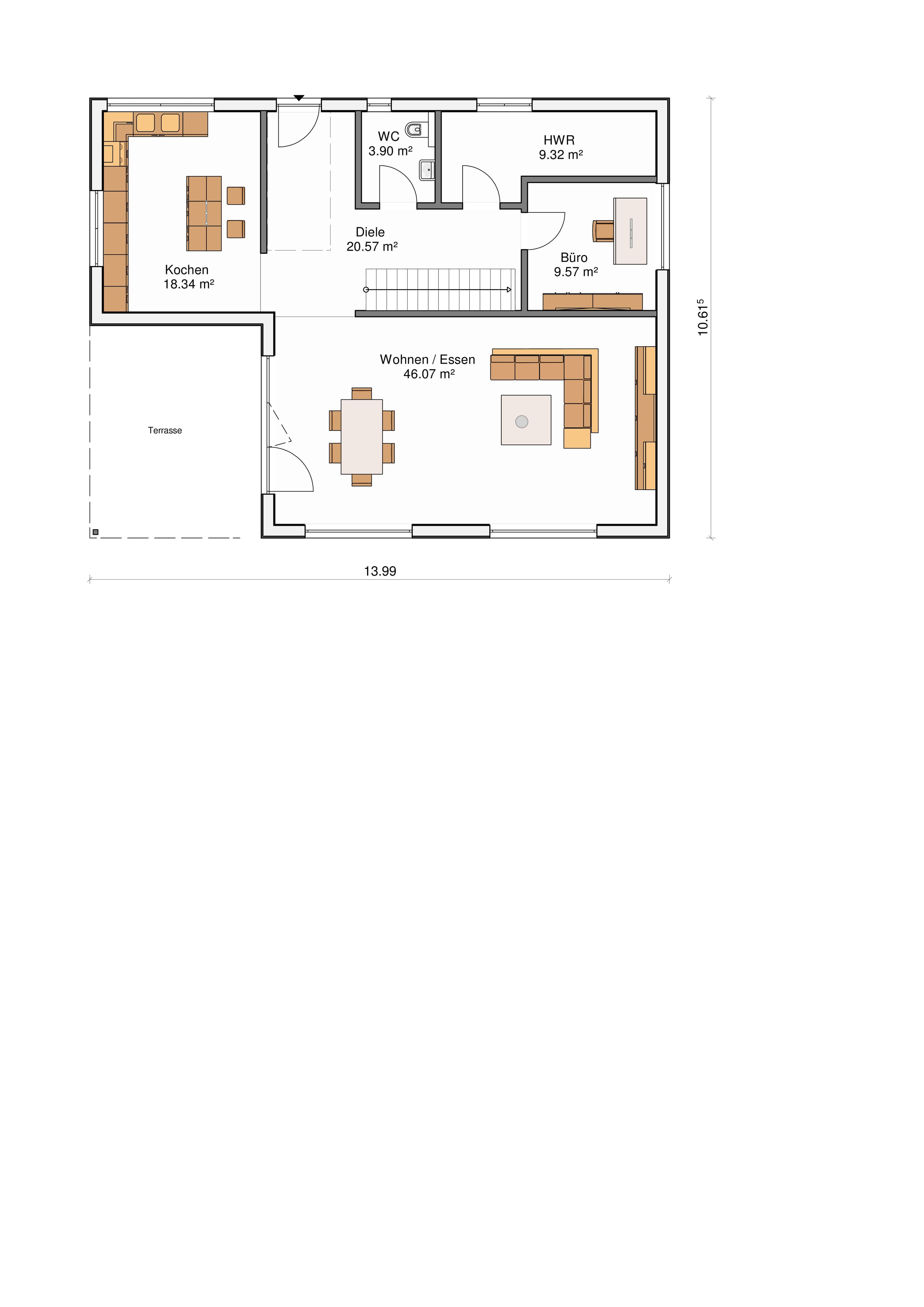
Stark im Detail Grundriss (EG)Wohnfläche EG: 107 m²
no description
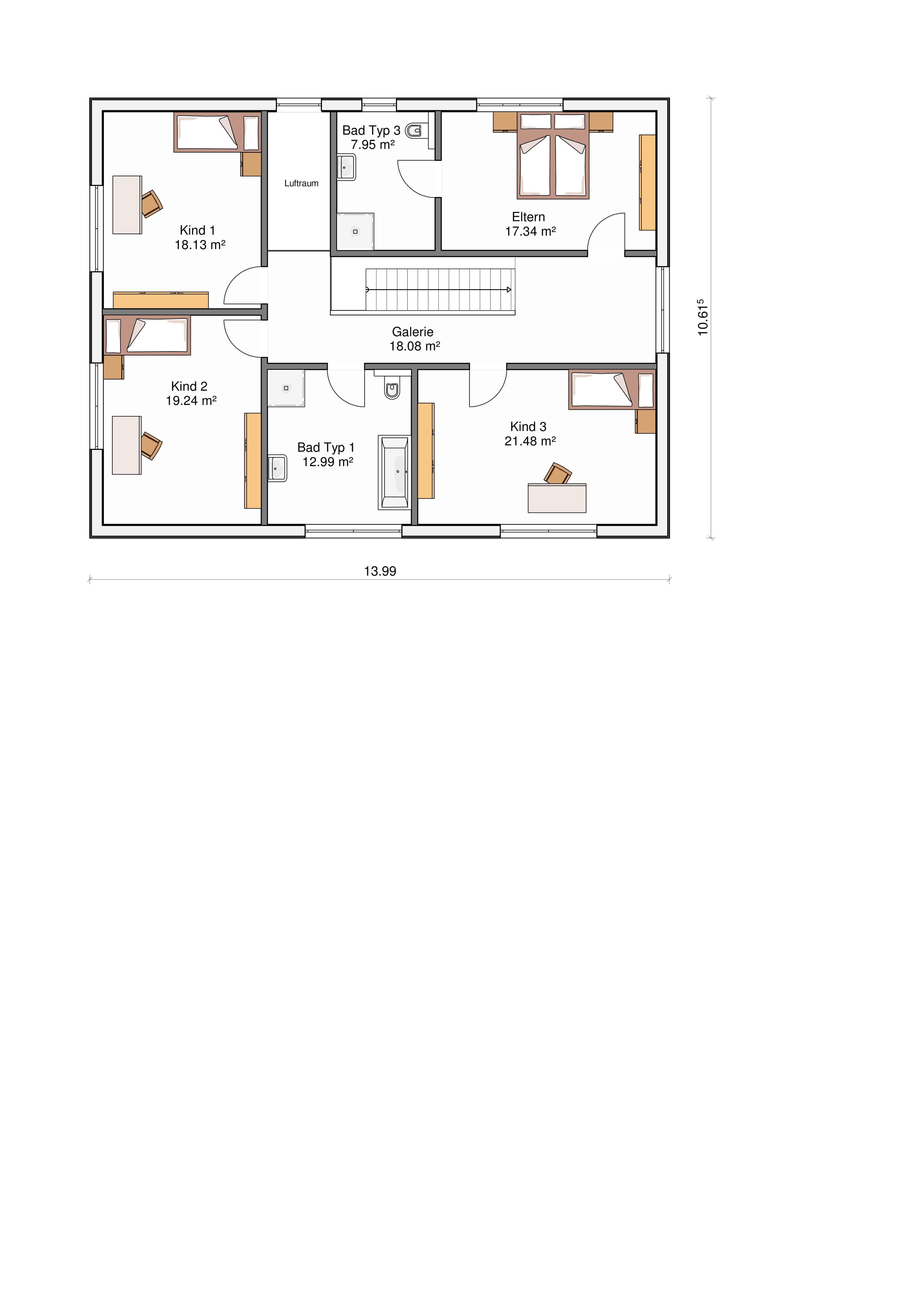
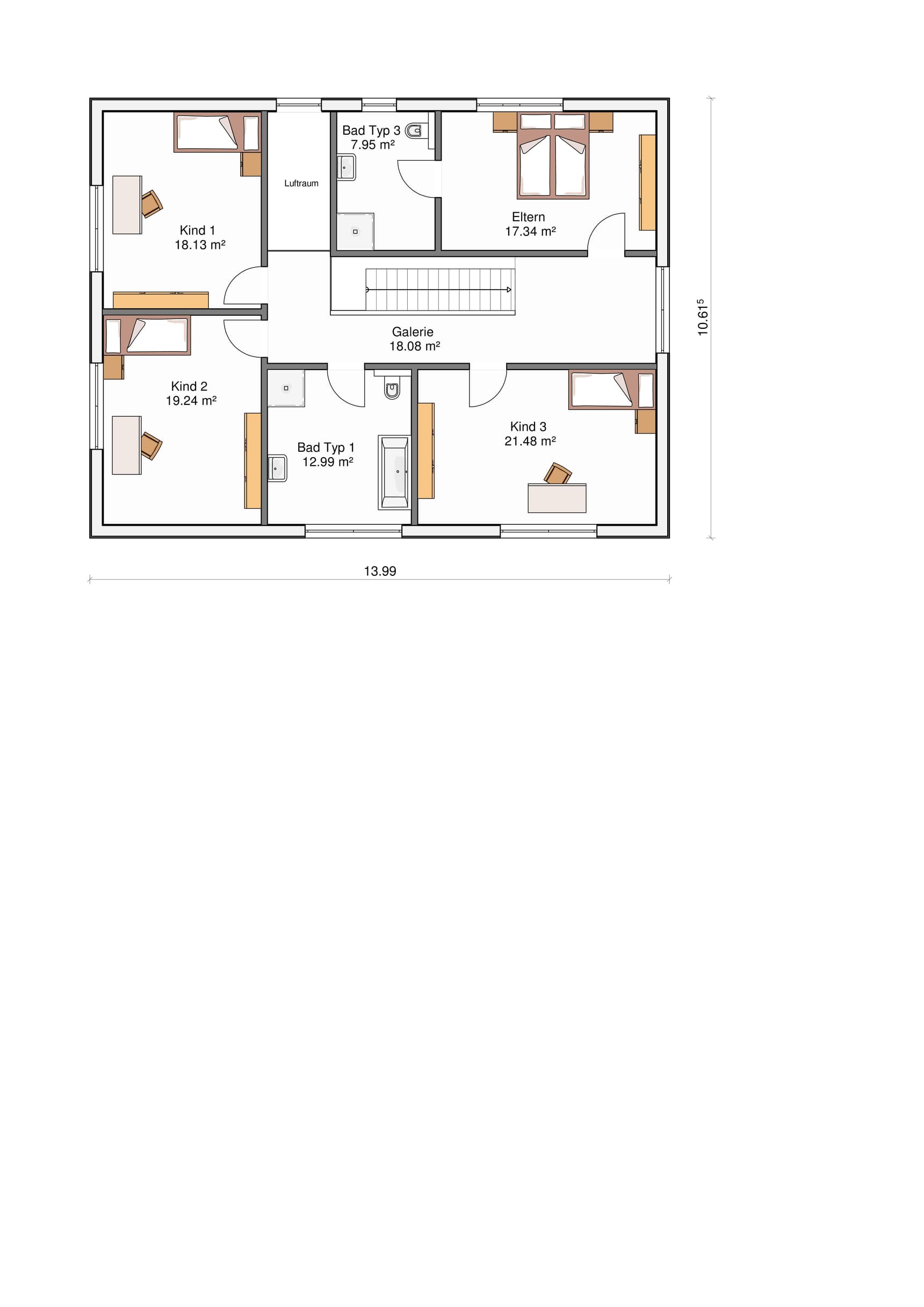
Stark im Detail Grundriss (DG)Wohnfläche DG: 115 m²
House and TreeParksHouse and PinMusterhausHouse on HandAnbieter