1. AnbieterArrow Icon
  2. Stommel HausArrow Icon
  3. Hortensie, ein modernes Landhaus aus Holz
Slide 1
Slide 2
Slide 3
Slide 4
Slide 5
Slide 6
no description
Stommel HausHortensie, ein modernes Landhaus aus Holz
homeKlassische Familienhäuser
livingArea164 m²
energyStandardEffizienzhaus 40
Preis anfragen
Katalog bestellen

Hortensie, ein modernes Landhaus aus Holz

Ein Haus wie ein Baum

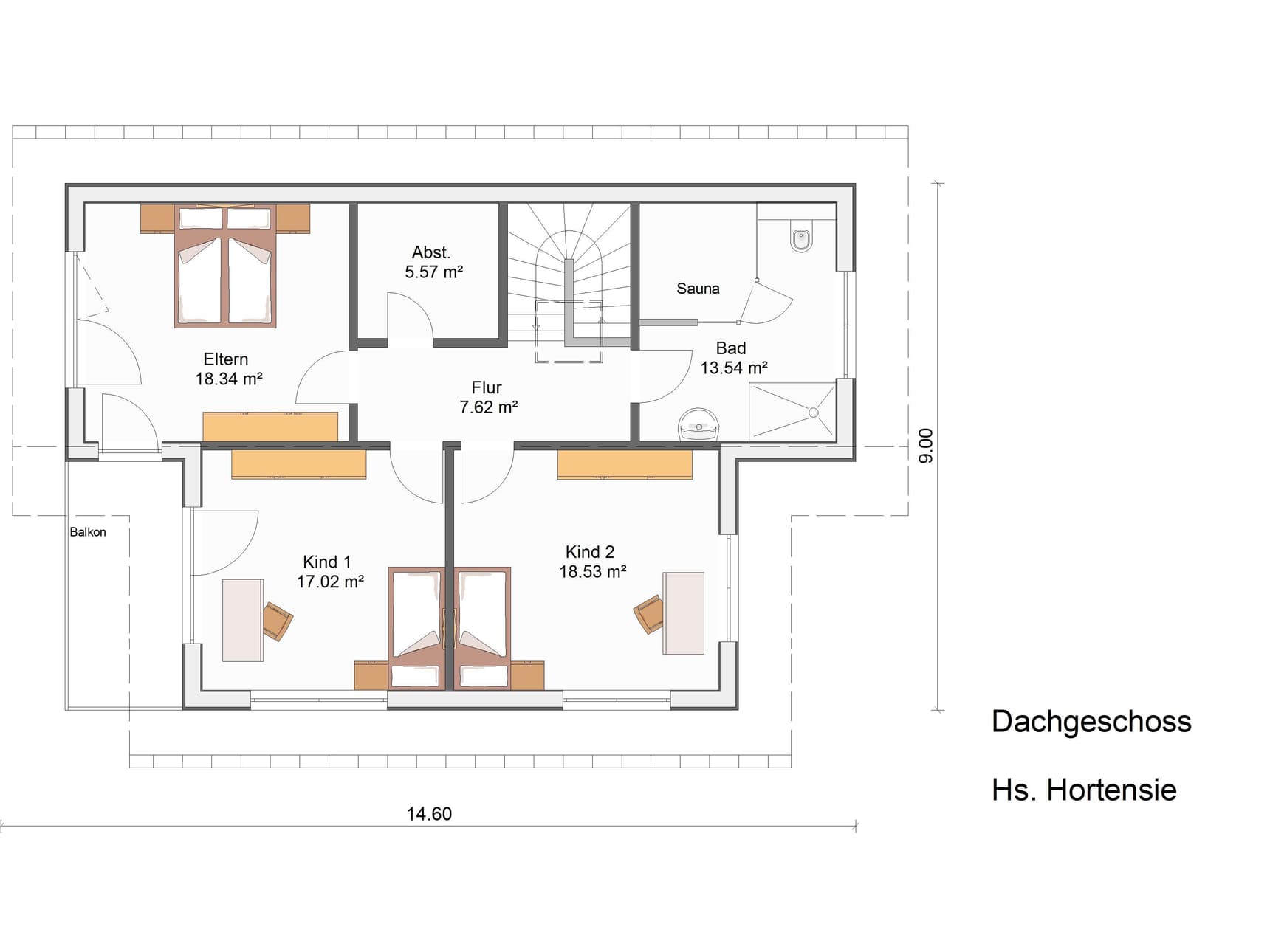
Der spezielle Grundriss, bei dem zwei unterschiedlich große Baukörper an der zentralen Giebelachse entlang zusammenkommen, führt zu spannenden Blickachsen zwischen Wohnzimmer und dem großzügigen, offenen Küchen-Esszimmerbereich im Holzhaus. Dank geschickter Raumanordnung auf gut 100 qm Grundfläche gibt es im Obergeschoss drei Zimmer, einen kleinen Abstellraum und das Highlight: ein Wellness-Bad, bei dem sich eine verglaste Sauna vollständig in die Dachschräge einfügt. Ein Anbau mit direkter Verbindung zum Hauswirtschaftraum macht einen Keller überflüssig. Unsere Baufamilie wählte bei Innenwänden und Decken eine Kombination aus Naturholz, lasierten Holzflächen und weiß gestrichenen Wänden, was dem Landhaus einen modernen Charakter verleiht. Ein schönes Zuhause, gemütlich und ein klein wenig repräsentativ. 

Hausdaten

Hausart Icon
HausartEinfamilienhaus
Bauweise Icon
BauweiseMassivholzkonstruktion
Baustil Icon
BaustilKlassische Familienhäuser
Fassade Icon
FassadeHolz
Wohnfläche Icon
Wohnfläche163.51 m²
Dachform Icon
DachformSattel-/Giebeldach
Energiestandard Icon
EnergiestandardEffizienzhaus 40
Immobilientyp Icon
ImmobilientypKundenhaus
Dachneigung Icon
Dachneigung25°
Kniestock Icon
Kniestock1.52 m
Hauseigenschaften Icon
HauseigenschaftenViel Glas
Heizungsart Icon
HeizungsartWärmepumpe (Luft, Wasser, oder beides)
Pfeil nach unten linksWir schaffen Platz für Ihre Träume

Grundriss

no description
Hortensie, ein modernes Landhaus aus Holz Grundriss (EG)
no description
Hortensie, ein modernes Landhaus aus Holz Grundriss (DG)
House and TreeParksHouse and PinMusterhausHouse on HandAnbieter