1. AnbieterArrow Icon
  2. Sonnleitner HolzbauwerkeArrow Icon
  3. Kundenhaus 'Abert'
Slide 1
Slide 2
Slide 3
Slide 4
Slide 5
Slide 6
Slide 7
Slide 8
Slide 9
Sonnleitner_Logo_2.jpg
Sonnleitner HolzbauwerkeKundenhaus 'Abert'
homeKlassische Familienhäuser
livingArea143 m²
energyStandardEffizienzhaus 55
Preis anfragen
Katalog bestellen

Kundenhaus 'Abert'

Attraktive Mischung

Was hier nach viel Tradition aussieht, ist in Wirklichkeit eine Kombination aus traditioneller Formensprache und modernem Konstruktionsverständnis. Holzhausbau von heute mit einer zeitgemäßen Konstruktion und bewährten Details der Vergangenheit.

Auf den ersten Blick ist erkennbar, dass dieses Einfamilienhaus in leichter Hanglage an die regionalen Bautraditionen des bayerischen Voralpenlandes anknüpft. Der kompakte Baukörper (10,28 x 9,98 m) mit flachem Satteldach (25 Grad) und klassisch roter Ziegeldeckung, mit hohem Kniestock (170 cm), breiten Dachüberständen und der typischen Holz-/Putzfassade zeigt die Wesensmerkmale einer bewährten Bauweise. Auch die relativ kleinen Fensterformate passen ganz gut in dieses Bild. Nur der verglaste Querbau, mit dem Charakter eines dritten Giebels, ist als Beitrag an die heutige Zeit zu verstehen.

Weitere Infos und Impressionen

Hausdaten

Hausart Icon
HausartEinfamilienhaus
Bauweise Icon
BauweiseMassivholzkonstruktion
Baustil Icon
BaustilKlassische Familienhäuser
Fassade Icon
FassadeMaterialkombination, Putz, Holz
Außenmaße Icon
Außenmaße10.28 m x 9.98 m
Wohnfläche Icon
Wohnfläche142.56 m²
Dachform Icon
DachformSattel-/Giebeldach
Energiestandard Icon
EnergiestandardEffizienzhaus 55
Immobilientyp Icon
ImmobilientypKundenhaus
Dachneigung Icon
Dachneigung25°
Kniestock Icon
Kniestock1.7 m
Hauseigenschaften Icon
HauseigenschaftenDritter Giebel, Terasse
Hausdämmstoff Icon
HausdämmstoffHolzfaser- und Zellulosedämmstoffe
Heizungsart Icon
HeizungsartGas-Brennwertheizung
Pfeil nach unten linksWir schaffen Platz für Ihre Träume

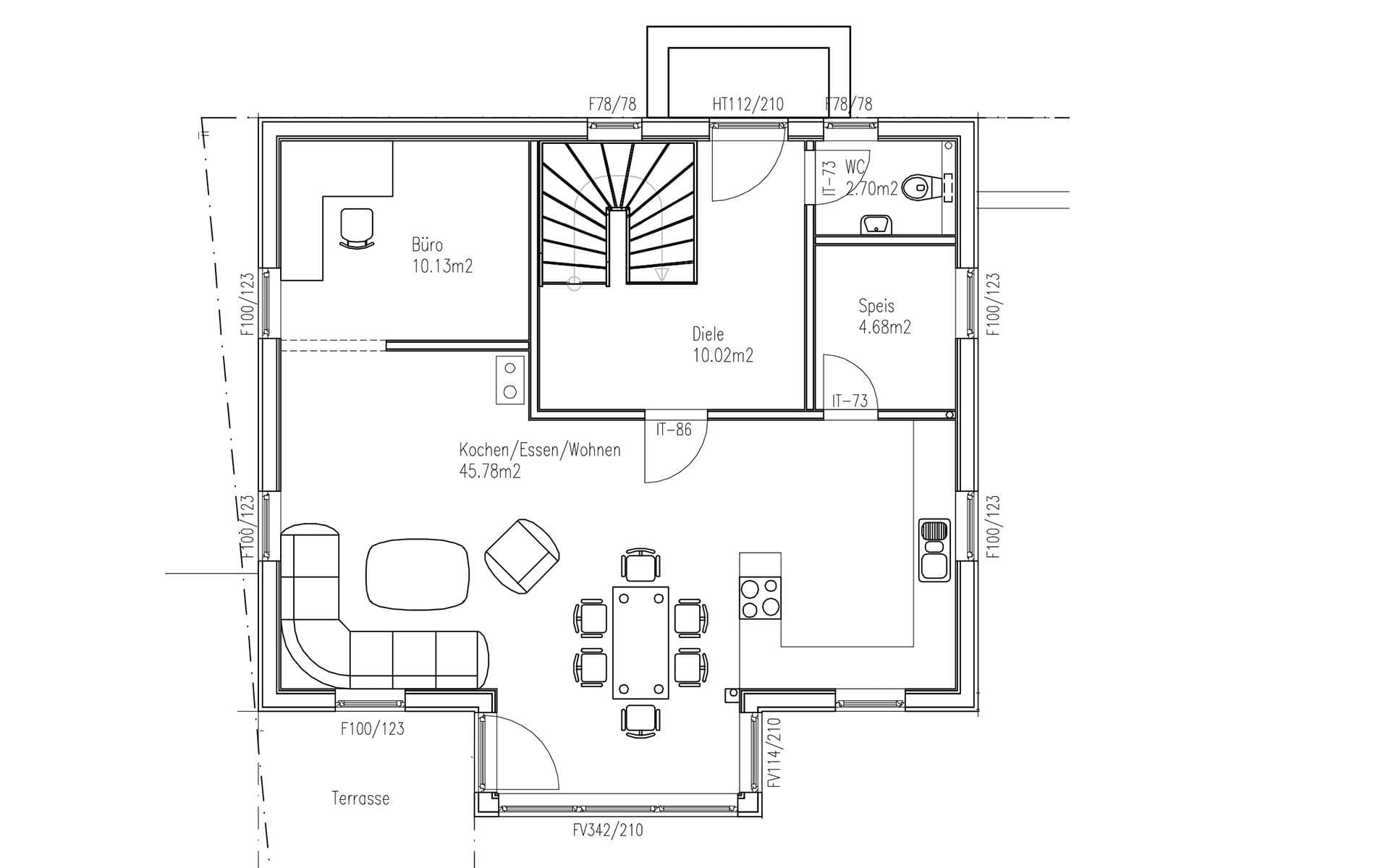
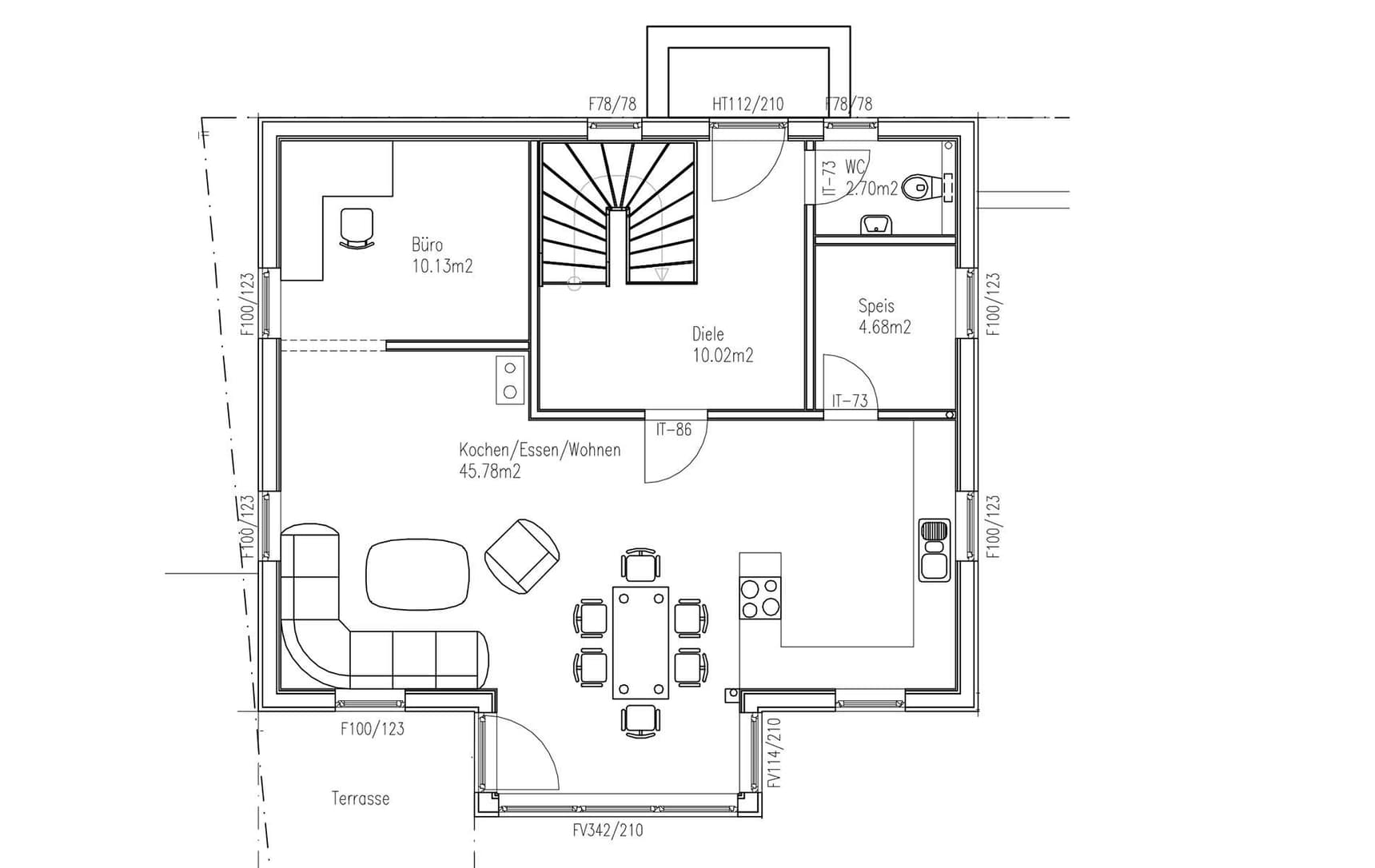
Grundriss

Der Grundriss des Erdgeschosses des Holzhauses im Landhausstil mit gemischter Fassade aus mineralischem Putz und Holz
Kundenhaus 'Abert' Grundriss (EG)Wohnfläche EG: 73,31 m²
Der Grundriss des Obergeschosses des Holzhauses im Landhausstil mit gemischter Fassade aus mineralischem Putz und Holz
Kundenhaus 'Abert' Grundriss (DG)Wohnfläche DG: 69,25 m²
House and TreeParksHouse and PinMusterhausHouse on HandAnbieter