1. AnbieterArrow Icon
  2. Sonnleitner HolzbauwerkeArrow Icon
  3. Gewerbebau 'Baumhaus Unterreiner'
Slide 1
Slide 2
Slide 3
Slide 4
Slide 5
Slide 6
Slide 7
Slide 8
Sonnleitner_Logo_2.jpg
Sonnleitner HolzbauwerkeGewerbebau 'Baumhaus Unterreiner'
homeBungalow
livingArea75 m²
energyStandardEffizienzhaus 55
Preis anfragen
Katalog bestellen

Gewerbebau 'Baumhaus Unterreiner'

Erholung der gehobenen Art

Sich direkt am Wasser vom Arbeitsalltag erholen – wer kann das schon seinen Mitarbeitern bieten? Die auf Forstgeräte spezialisierte Firma Unterreiner weiß zu schätzen, was sie an ihren Mitarbeitern hat – schließlich hat sie unter anderem auch seinem motivierten Unterreiner-Team zu verdanken, dass sie auf dem Forstgerätesektor so erfolgreich agiert. So entschied sich die Firmenleitung dazu, für ihre Mitarbeiter eine Erholungszone der besonderen Art zu schaffen.

Der in Holzbauweise errichtete Pfahlbau befindet sich über dem Niederschlagsauffangbecken des Firmengeländes. Innen dominiert die Farbe Weiß als Kontrast zu den hellen Massivholzoberflächen aus Fichte – eine geschmackvoll harmonische Kombination. Die fröhlich wirkende Innenausstattung dieser einzigartigen Erholungszone ist minimalistisch und gekonnt modern gehalten: Bunte Relaxstühle und Fauteuils, in Zonen unterteilt.

Aktuelle Wellnesshotels bieten kaum mehr. Bestens geeignet zum gemeinsamen essen, feiern, erholen, ruhen, miteinander reden uvm. Die großzügige, anthrazitfarbene Küche bietet jeden erdenklichen Komfort und lädt zur Nutzung geradezu ein. Besonders auffällig und noch dazu schön anzusehen: Die unterschiedlich hoch angeordneten Beleuchtungskörper aus Glas lassen fast Partystimmung aufkommen.

Auch die breit angelegte Terrasse schreit förmlich danach, genutzt zu werden. Egal ob man es sich im Sitzsack, dem Hängekorb oder an den stilvoll gehaltenen Terrassenmöbeln gemütlich macht. Man spürt, die Macher haben ihrer Kreativität freien Lauf gelassen. Die eingesetzten Materialien sind vorwiegend aus Holz, unbehandelt und naturbelassen.

Fassadengestaltung hin oder her, diese Lösung lockert das gesamte Erscheinungsbild gekonnt auf. Die unterschiedlich dimensionierte, vertikal verbaute Lärchenverschalung verleiht  dieser eigentlich streng wirkenden Architektur eine gewollte Leichtigkeit. Der Materialmix aus Edelstahl und verschieden hohen Terrassenbrüstungen aus witterungsbeständiger Lärche unterstreicht dies zusätzlich.

Weitere Infos und Impressionen

Hausdaten

Hausart Icon
HausartObjektbau
Bauweise Icon
BauweiseMassivholzkonstruktion
Anzahl Räume Icon
Anzahl Räume2
Baustil Icon
BaustilBungalow
Fassade Icon
FassadeHolz
Außenmaße Icon
Außenmaße9.35 m x 11.65 m
Wohnfläche Icon
Wohnfläche75.42 m²
Dachform Icon
DachformFlachdach
Energiestandard Icon
EnergiestandardEffizienzhaus 55
Immobilientyp Icon
ImmobilientypKundenhaus
Dachneigung Icon
Dachneigung
Kniestock Icon
Kniestock3.75 m
Hauseigenschaften Icon
HauseigenschaftenTerasse
Hausdämmstoff Icon
HausdämmstoffHolzfaser- und Zellulosedämmstoffe
Heizungsart Icon
HeizungsartWärmepumpe (Luft, Wasser, oder beides)
Pfeil nach unten linksWir schaffen Platz für Ihre Träume

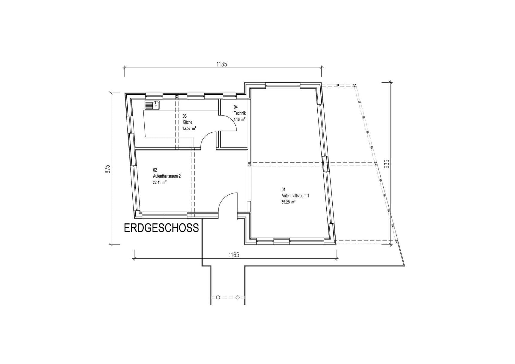
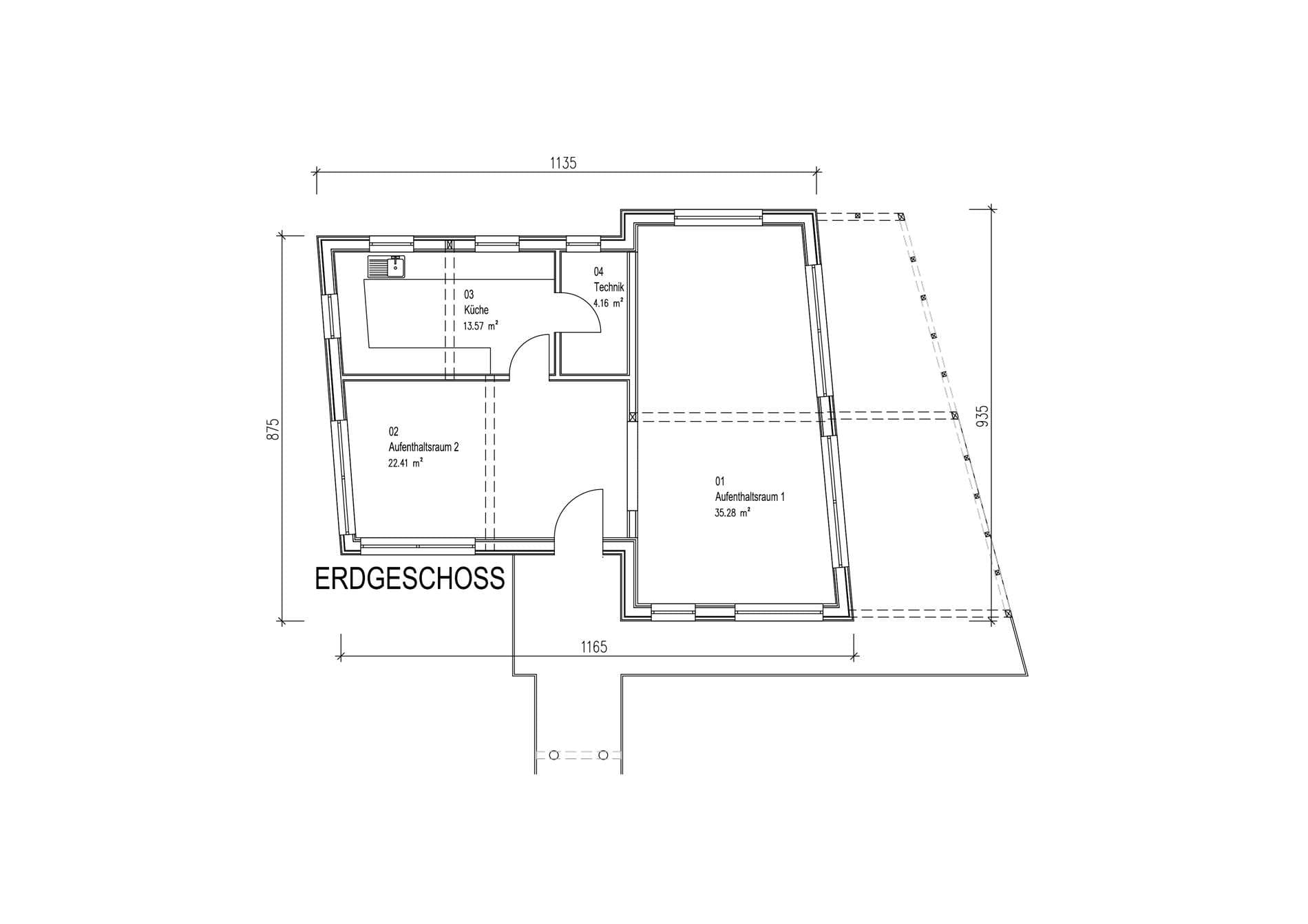
Grundriss

Der Grundriss des modernen Pfahlbaus aus Holz mit vertikaler Lärchenverschalung, der als Mitarbeiterlounge dient
Gewerbebau 'Baumhaus Unterreiner' Grundriss (EG)Wohnfläche EG: 75,42 m²
House and TreeParksHouse and PinMusterhausHouse on HandAnbieter