1. AnbieterArrow Icon
  2. SchwörerHausArrow Icon
  3. Premiumhaus
Slide 1
Slide 2
Slide 3
Slide 4
Slide 5
Slide 6
Slide 7
Slide 8
Slide 9
no description
SchwörerHaus Premiumhaus
homeKubushäuser im Bauhausstil
livingArea199 m²
energyStandardEffizienzhaus 55 EE
Preis anfragen
Katalog bestellen

Premiumhaus

E 20-199.2

Dieses SCHÖNER WOHNEN-Haus hat eine klare Struktur in der Außen- und Innengestaltung. Direkt vom Eingang kann man quer durchs Haus bis hinaus auf die Terasse blicken. Im Erdgeschoss ist der Wohn-, Ess- und Küchenbereich offen gehalten und durch einen Panoramakamin gegliedert. Abgetrennt von diesem offenen Bereich liegt ein Arbeitszimmer, dass dank eines gegenüberliegenden Dusch-Bades einfach in ein Gästezimmer umgewandelt werden kann.

Hausdaten

Hausart Icon
HausartEinfamilienhaus
Bauweise Icon
BauweiseHolz-Tafelbau
Baustil Icon
BaustilKubushäuser im Bauhausstil
Fassade Icon
FassadePutz
Außenmaße Icon
Außenmaße9.71 m x 12.09 m
Wohnfläche Icon
Wohnfläche199.14 m²
Dachform Icon
DachformFlachdach
Energiestandard Icon
EnergiestandardEffizienzhaus 55 EE
Immobilientyp Icon
ImmobilientypKundenhaus
Hauseigenschaften Icon
HauseigenschaftenTerasse
Hausdämmstoff Icon
HausdämmstoffMineralfaser (Glaswolle, Steinwolle)
Heizungsart Icon
HeizungsartWärmepumpe (Luft, Wasser, oder beides)
Pfeil nach unten linksWir schaffen Platz für Ihre Träume

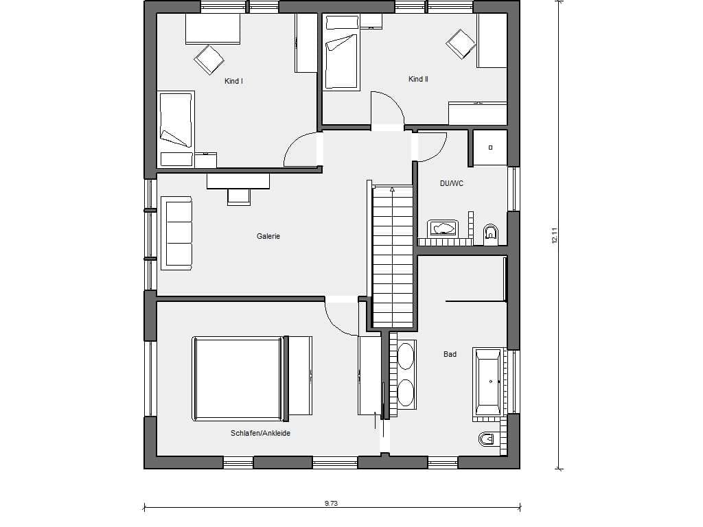
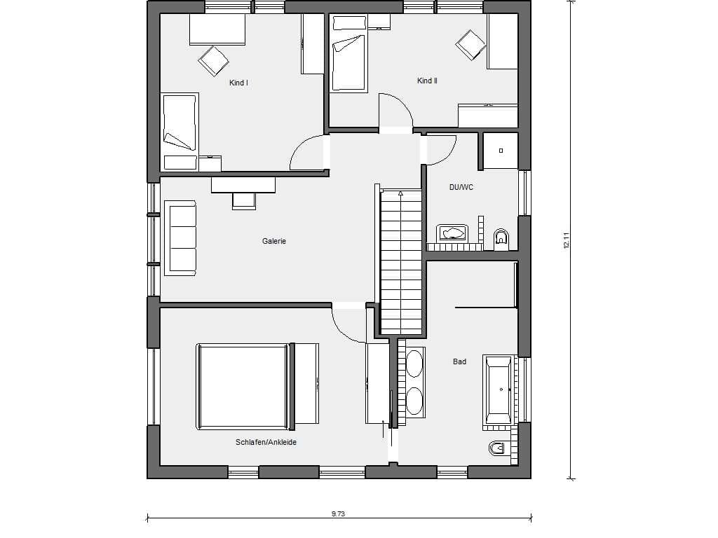
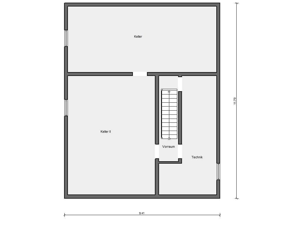
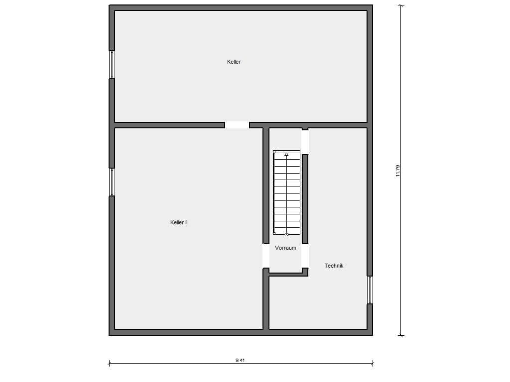
Grundriss

no description
Premiumhaus Grundriss (Keller)
no description
Premiumhaus Grundriss (EG)Wohnfläche EG: 99,58 m²
no description
Premiumhaus Grundriss (OG)Wohnfläche OG: 99,56 m²

Kataloge

SchwörerHaus: Raumwunder
SchwörerHaus

SchwörerHaus: Raumwunder


SchwörerHaus: Hausideen
SchwörerHaus

SchwörerHaus: Hausideen


SchwörerHaus: FlyingSpace
SchwörerHaus

SchwörerHaus: FlyingSpace


SchwörerHaus: Doppelhäuser
SchwörerHaus

SchwörerHaus: Doppelhäuser


House and TreeParksHouse and PinMusterhausHouse on HandAnbieter