1. AnbieterArrow Icon
  2. SchwörerHausArrow Icon
  3. Haus mit moderner Architektur
Slide 1
Slide 2
Slide 3
Slide 4
Slide 5
Slide 6
Slide 7
Slide 8
Slide 9
no description
SchwörerHaus Haus mit moderner Architektur
homeStadtvillen
livingArea179 m²
energyStandardEffizienzhaus 55 EE
Preis anfragen
Katalog bestellen

Haus mit moderner Architektur

E 20-179.3

Ein Haus, dass durch die moderne Architektur eine offene Struktur gibt. Der Wohn-Ess- und Kochbereich ist ein großer L-förmiger Raum. Dennoch ist die Küche etwas abgetrennt, sodass man nicht direkt von der Essecke auf die Herdplatte schauen kann. Im Obergeschoss gibt es eine klare Raumaufteilung, alle Kinder- und Schlafzimmer sind nebeneinander, die jeweiligen Bäder sind gegenüber untergebracht. Außerdem gibt dieses Haus noch Platz für ein Musik- und Arbeitszimmer.

Hausdaten

Hausart Icon
HausartEinfamilienhaus
Bauweise Icon
BauweiseHolz-Tafelbau
Baustil Icon
BaustilStadtvillen
Fassade Icon
FassadePutz
Außenmaße Icon
Außenmaße11.81 m x 8.46 m
Wohnfläche Icon
Wohnfläche178.66 m²
Dachform Icon
DachformFlachdach
Energiestandard Icon
EnergiestandardEffizienzhaus 55 EE
Immobilientyp Icon
ImmobilientypKundenhaus
Hauseigenschaften Icon
HauseigenschaftenTerasse
Hausdämmstoff Icon
HausdämmstoffMineralfaser (Glaswolle, Steinwolle)
Heizungsart Icon
HeizungsartWärmepumpe (Luft, Wasser, oder beides)
Pfeil nach unten linksWir schaffen Platz für Ihre Träume

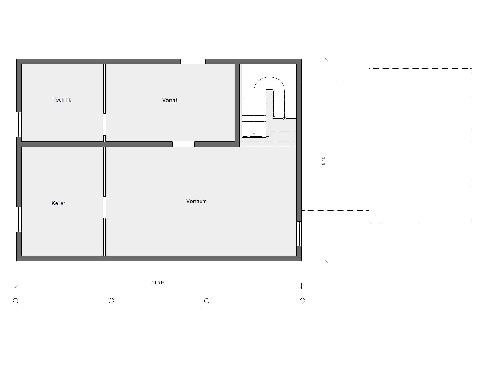
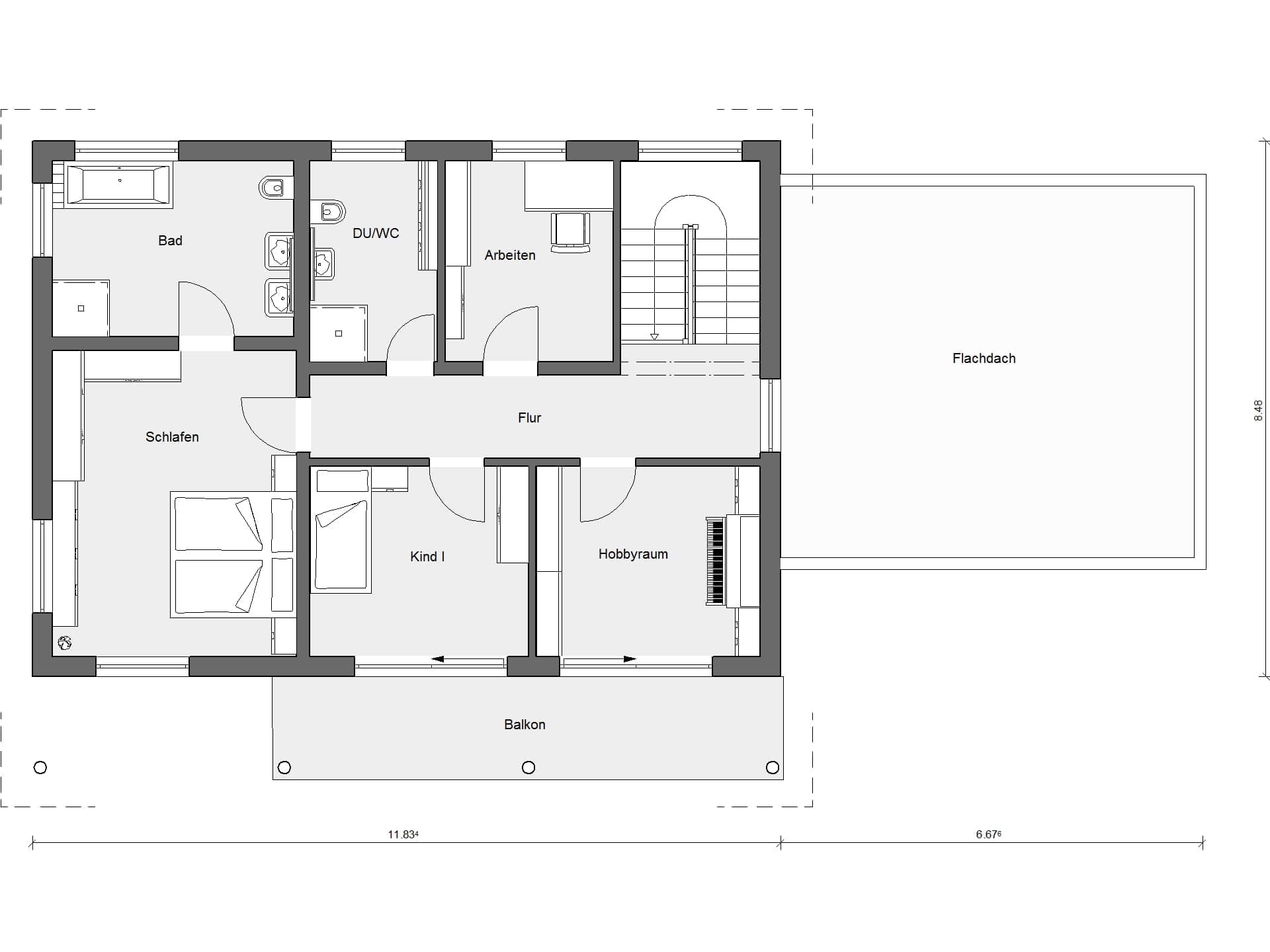
Grundriss

no description
Haus mit moderner Architektur Grundriss (Keller)Wohnfläche KG: 83,08 m²
no description
Haus mit moderner Architektur Grundriss (EG)Wohnfläche EG: 96,53 m²
no description
Haus mit moderner Architektur Grundriss (OG)Wohnfläche OG: 82,13 m²

Kataloge

SchwörerHaus: Raumwunder
SchwörerHaus

SchwörerHaus: Raumwunder


SchwörerHaus: Hausideen
SchwörerHaus

SchwörerHaus: Hausideen


SchwörerHaus: FlyingSpace
SchwörerHaus

SchwörerHaus: FlyingSpace


SchwörerHaus: Doppelhäuser
SchwörerHaus

SchwörerHaus: Doppelhäuser


House and TreeParksHouse and PinMusterhausHouse on HandAnbieter