1. AnbieterArrow Icon
  2. SchwörerHausArrow Icon
  3. Fertighaus mit 120 qm
Slide 1
Slide 2
Slide 3
Slide 4
Slide 5
Slide 6
Slide 7
no description
SchwörerHausFertighaus mit 120 qm
homeStadtvillen
livingArea128 m²
energyStandardEffizienzhaus 55 EE
Preis anfragen
Katalog bestellen

Fertighaus mit 120 qm

E 20-128.3

Schön wohnen auf kleinem Raum - das war den Bauherren dieses Fertighauses ein besonderes Kriterium. Daraus ist nun ein modernes Haus mit architektonischen Besonderheiten, wie einer geradläufigen Treppe, mehrere Galerien und wechselnden Raumhöhen, entstanden.

Hausdaten

Hausart Icon
HausartEinfamilienhaus
Bauweise Icon
BauweiseHolz-Tafelbau
Baustil Icon
BaustilStadtvillen
Fassade Icon
FassadePutz
Außenmaße Icon
Außenmaße8.46 m x 9.89 m
Wohnfläche Icon
Wohnfläche127.73 m²
Dachform Icon
DachformWalm-/Zeltdach
Energiestandard Icon
EnergiestandardEffizienzhaus 55 EE
Immobilientyp Icon
ImmobilientypKundenhaus
Dachneigung Icon
Dachneigung18°
Hauseigenschaften Icon
HauseigenschaftenTerasse
Hausdämmstoff Icon
HausdämmstoffMineralfaser (Glaswolle, Steinwolle)
Heizungsart Icon
HeizungsartWärmepumpe (Luft, Wasser, oder beides)
Pfeil nach unten linksWir schaffen Platz für Ihre Träume

Grundriss

no description
Fertighaus mit 120 qm Grundriss (Keller)Wohnfläche KG: 0,69 m²
no description
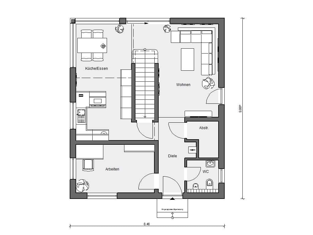
Fertighaus mit 120 qm Grundriss (EG)Wohnfläche EG: 67,73 m²
no description
Fertighaus mit 120 qm Grundriss (OG)Wohnfläche OG: 60 m²

Kataloge

SchwörerHaus: Raumwunder
SchwörerHaus

SchwörerHaus: Raumwunder


SchwörerHaus: Hausideen
SchwörerHaus

SchwörerHaus: Hausideen


SchwörerHaus: FlyingSpace
SchwörerHaus

SchwörerHaus: FlyingSpace


SchwörerHaus: Doppelhäuser
SchwörerHaus

SchwörerHaus: Doppelhäuser


House and TreeParksHouse and PinMusterhausHouse on HandAnbieter