1. AnbieterArrow Icon
  2. SchwörerHausArrow Icon
  3. Markantes Fertighaus als Kubus
Slide 1
Slide 2
Slide 3
no description
SchwörerHausMarkantes Fertighaus als Kubus
homeKubushäuser im Bauhausstil
livingArea176 m²
energyStandardEffizienzhaus 55 EE
Preis anfragen
Katalog bestellen

Markantes Fertighaus als Kubus

E 20-176.2

Dieses Designerhaus in der Schweiz ist angelehnt an den Baustil der Moderne. Es lässt durch die klare Struktur viel Raum für Kreativität. Durch die Schwebebalken bekommt dieses Bauobjekt einen sehr modernen und offenen Stil.

Hausdaten

Hausart Icon
HausartEinfamilienhaus
Bauweise Icon
BauweiseHolz-Tafelbau
Baustil Icon
BaustilKubushäuser im Bauhausstil
Fassade Icon
FassadeHolz
Außenmaße Icon
Außenmaße11.74 m x 9.08 m
Wohnfläche Icon
Wohnfläche176.02 m²
Dachform Icon
DachformFlachdach
Energiestandard Icon
EnergiestandardEffizienzhaus 55 EE
Immobilientyp Icon
ImmobilientypKundenhaus
Hausdämmstoff Icon
HausdämmstoffMineralfaser (Glaswolle, Steinwolle)
Heizungsart Icon
HeizungsartLüftungsheizung
Pfeil nach unten linksWir schaffen Platz für Ihre Träume

Grundriss

no description
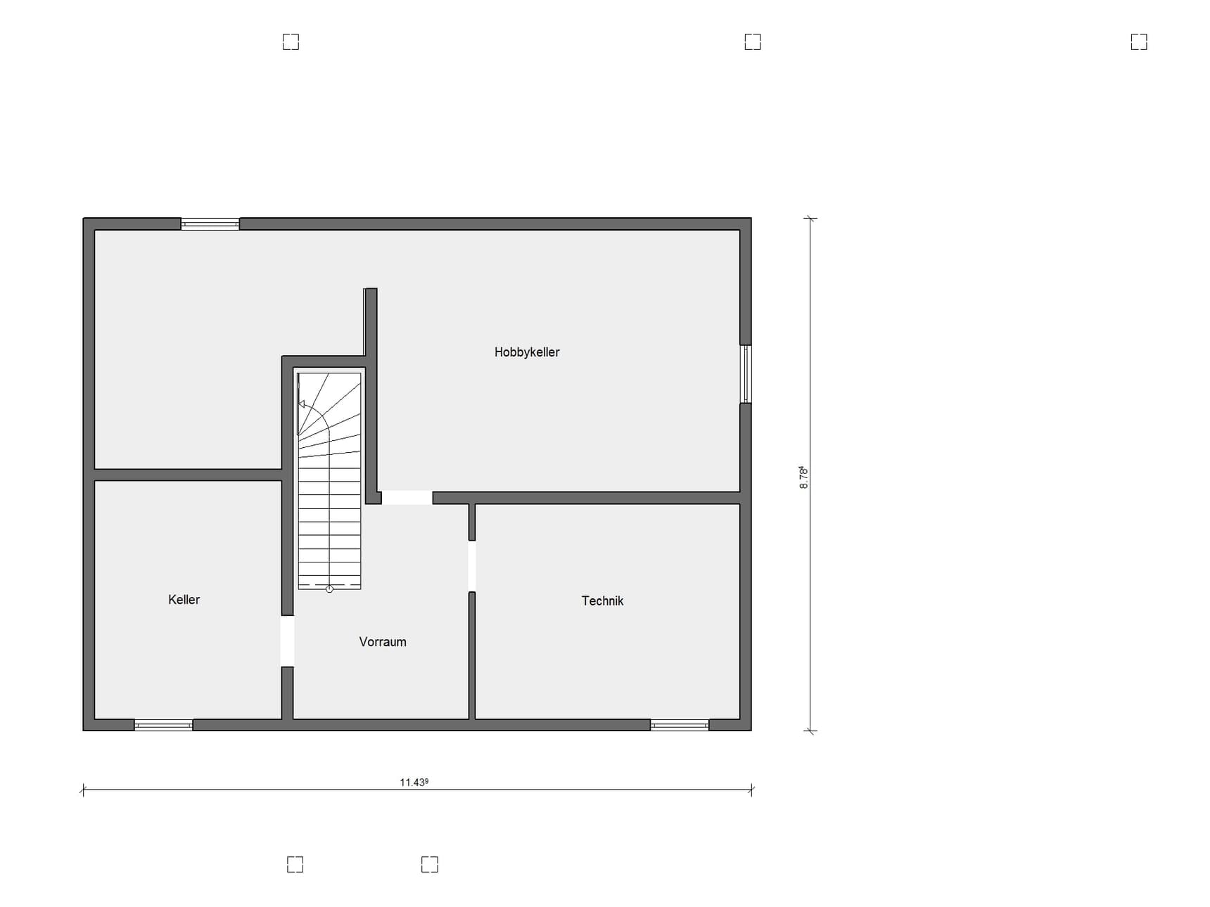
Markantes Fertighaus als Kubus Grundriss (Keller)
no description
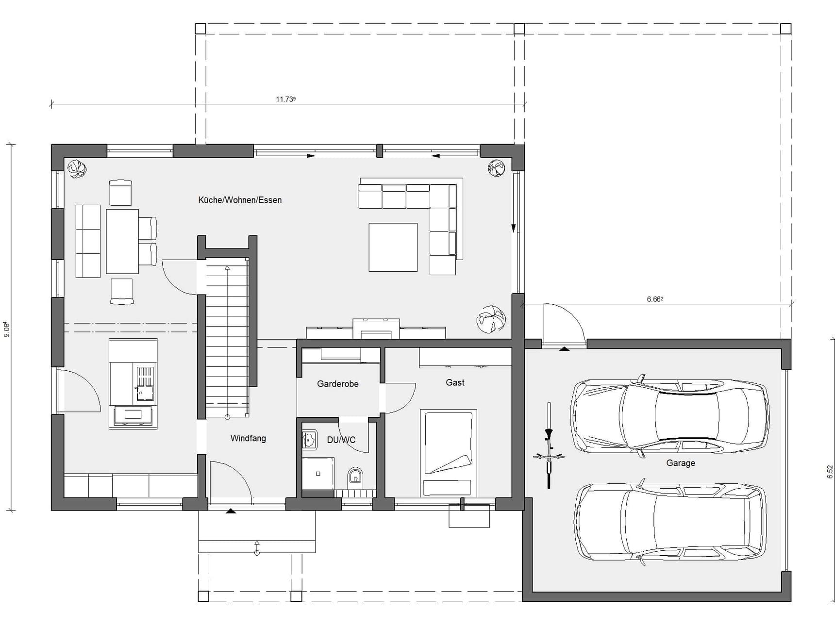
Markantes Fertighaus als Kubus Grundriss (EG)Wohnfläche EG: 89,08 m²
no description
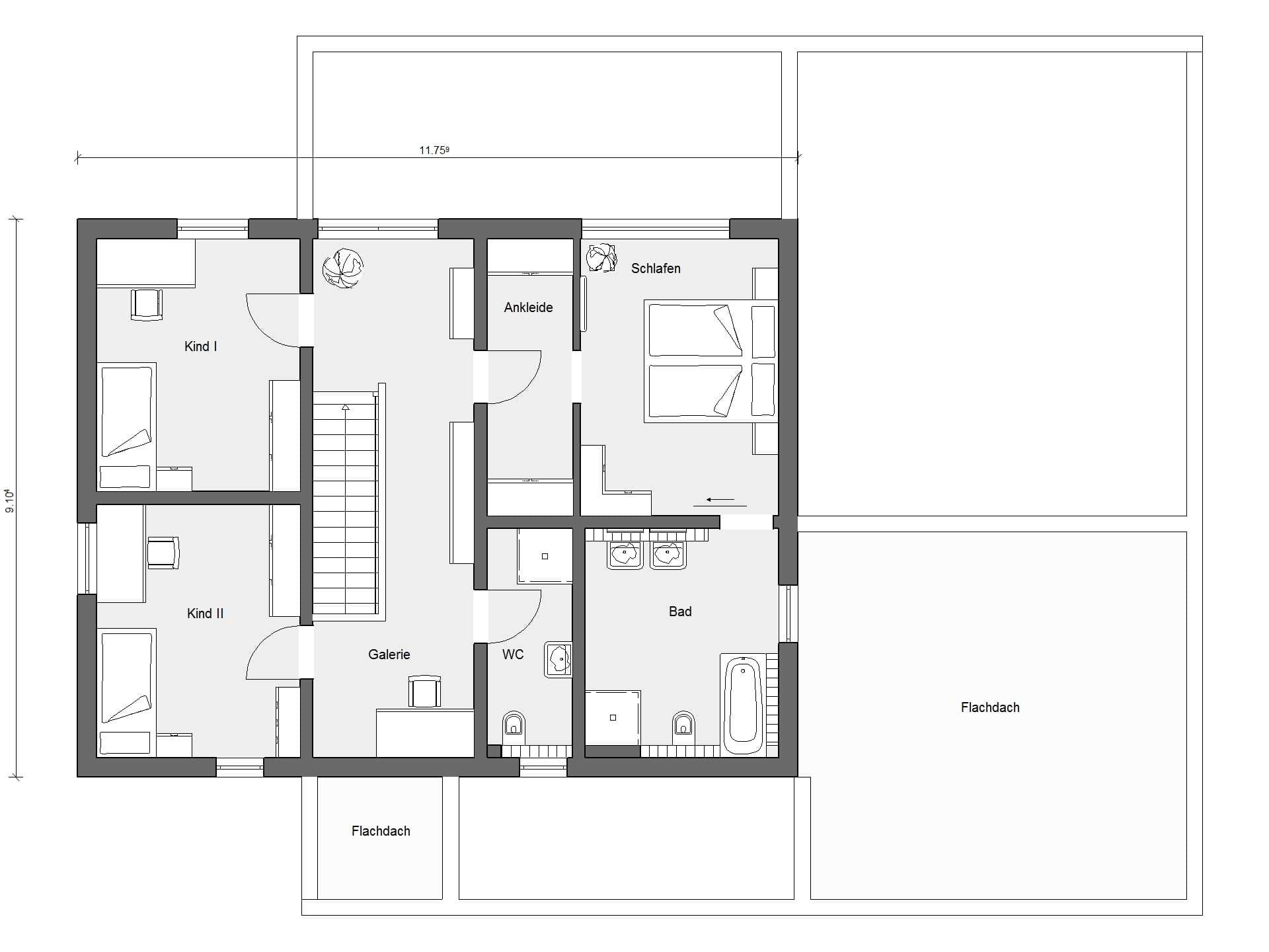
Markantes Fertighaus als Kubus Grundriss (OG)Wohnfläche OG: 86,94 m²
no description
Markantes Fertighaus als Kubus Grundriss (DG)

Kataloge

SchwörerHaus: Raumwunder
SchwörerHaus

SchwörerHaus: Raumwunder


SchwörerHaus: Hausideen
SchwörerHaus

SchwörerHaus: Hausideen


SchwörerHaus: FlyingSpace
SchwörerHaus

SchwörerHaus: FlyingSpace


SchwörerHaus: Doppelhäuser
SchwörerHaus

SchwörerHaus: Doppelhäuser


House and TreeParksHouse and PinMusterhausHouse on HandAnbieter