1. AnbieterArrow Icon
  2. SchwörerHausArrow Icon
  3. Fertighaus mit Aufzug
Slide 1
Slide 2
Slide 3
no description
SchwörerHaus Fertighaus mit Aufzug
homeKubushäuser im Bauhausstil
livingArea193 m²
energyStandardEffizienzhaus 55 EE
Preis anfragen
Katalog bestellen

Fertighaus mit Aufzug

E 20-194.2

Dieses barrierefreie Haus zeigt, dass sich in einem rollstuhlgängigen Haus Kinder und Eltern wohlfühlen können. Zudem ist dieses Bauobjekt in Minergie A Standard Bauweise erstellt. Dies bedeutet, dass das Haus mehr Energie erzeugt, wie für die Heizung, das Warmwasser und Haushaltsgeräte benötigt wird.

Hausdaten

Hausart Icon
HausartEinfamilienhaus
Bauweise Icon
BauweiseHolz-Tafelbau
Baustil Icon
BaustilKubushäuser im Bauhausstil
Fassade Icon
FassadeHolz
Außenmaße Icon
Außenmaße12.91 m x 9.08 m
Wohnfläche Icon
Wohnfläche193.48 m²
Dachform Icon
DachformFlachdach
Energiestandard Icon
EnergiestandardEffizienzhaus 55 EE
Immobilientyp Icon
ImmobilientypKundenhaus
Hausdämmstoff Icon
HausdämmstoffMineralfaser (Glaswolle, Steinwolle)
Heizungsart Icon
HeizungsartLüftungsheizung
Pfeil nach unten linksWir schaffen Platz für Ihre Träume

Grundriss

no description
Fertighaus mit Aufzug Grundriss (Keller)Wohnfläche KG: 95,67 m²
no description
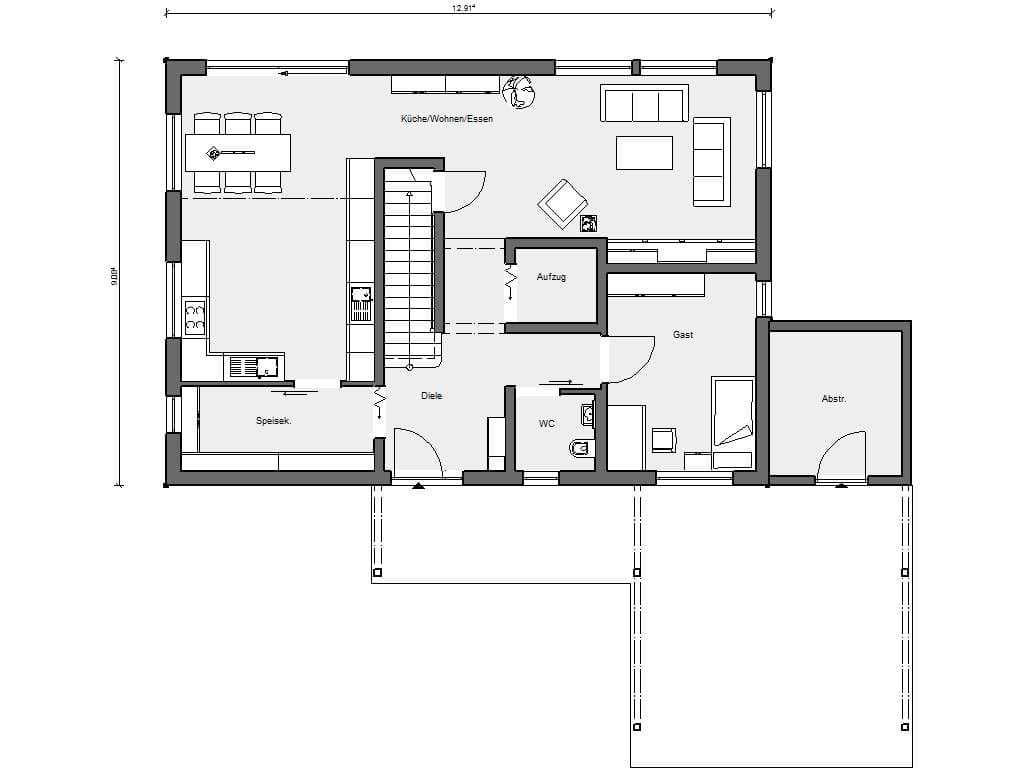
Fertighaus mit Aufzug Grundriss (EG)Wohnfläche EG: 97,62 m²
no description
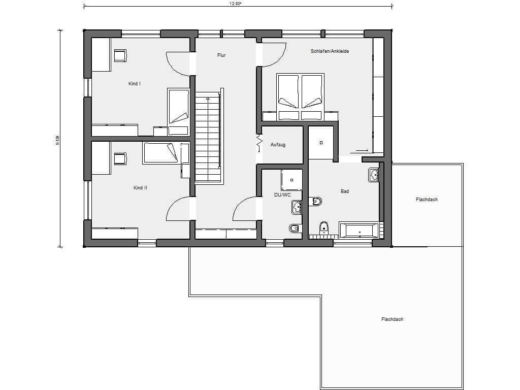
Fertighaus mit Aufzug Grundriss (OG)Wohnfläche OG: 95,86 m²

Kataloge

SchwörerHaus: Raumwunder
SchwörerHaus

SchwörerHaus: Raumwunder


SchwörerHaus: Hausideen
SchwörerHaus

SchwörerHaus: Hausideen


SchwörerHaus: FlyingSpace
SchwörerHaus

SchwörerHaus: FlyingSpace


SchwörerHaus: Doppelhäuser
SchwörerHaus

SchwörerHaus: Doppelhäuser


House and TreeParksHouse and PinMusterhausHouse on HandAnbieter