1. AnbieterArrow Icon
  2. SchwörerHausArrow Icon
  3. Musterhaus in Heßdorf
Slide 1
Location Icon
Slide 2
Location Icon
Slide 3
Location Icon
Slide 4
Location Icon
Slide 5
Location Icon
Slide 6
Location Icon
no description
SchwörerHausMusterhaus in Heßdorf
homeKlassische Familienhäuser
livingArea142 m²
energyStandardEffizienzhaus 55 EE
Preis anfragen

Musterhaus in Heßdorf

Modernes Wohnkonzept

Hinter der ansprechenden Holzverschalung der Fassade verbirgt sich ein modernes Wohnkonzept für junge Familien im förderfähigen KfW-Effizienzhaus 55 EE Standard. Hauptmerkmale: Viel Platz und Licht bei sehr geringem Energieverbrauch. Schnitt, Größe und Anordnung der Räume sind besonders familienfreundlich gestaltet. Die lichtdurchflutete Sonneninsel fungiert dabei als Kommunikationszentrum und lässt kostenlose Sonnenenergie ins Haus.

Hausdaten

Hausart Icon
HausartEinfamilienhaus
Bauweise Icon
BauweiseHolz-Tafelbau
Baustil Icon
BaustilKlassische Familienhäuser
Fassade Icon
FassadeMaterialkombination
Außenmaße Icon
Außenmaße11.44 m x 10 m
Wohnfläche Icon
Wohnfläche141.56 m²
Dachform Icon
DachformSattel-/Giebeldach
Energiestandard Icon
EnergiestandardEffizienzhaus 55 EE
Immobilientyp Icon
ImmobilientypMusterhaus
Dachneigung Icon
Dachneigung33°
Kniestock Icon
Kniestock1.45 m
Hausdämmstoff Icon
HausdämmstoffMineralfaser (Glaswolle, Steinwolle)
Heizungsart Icon
HeizungsartLüftungsheizung
Pfeil nach unten linksWir schaffen Platz für Ihre Träume

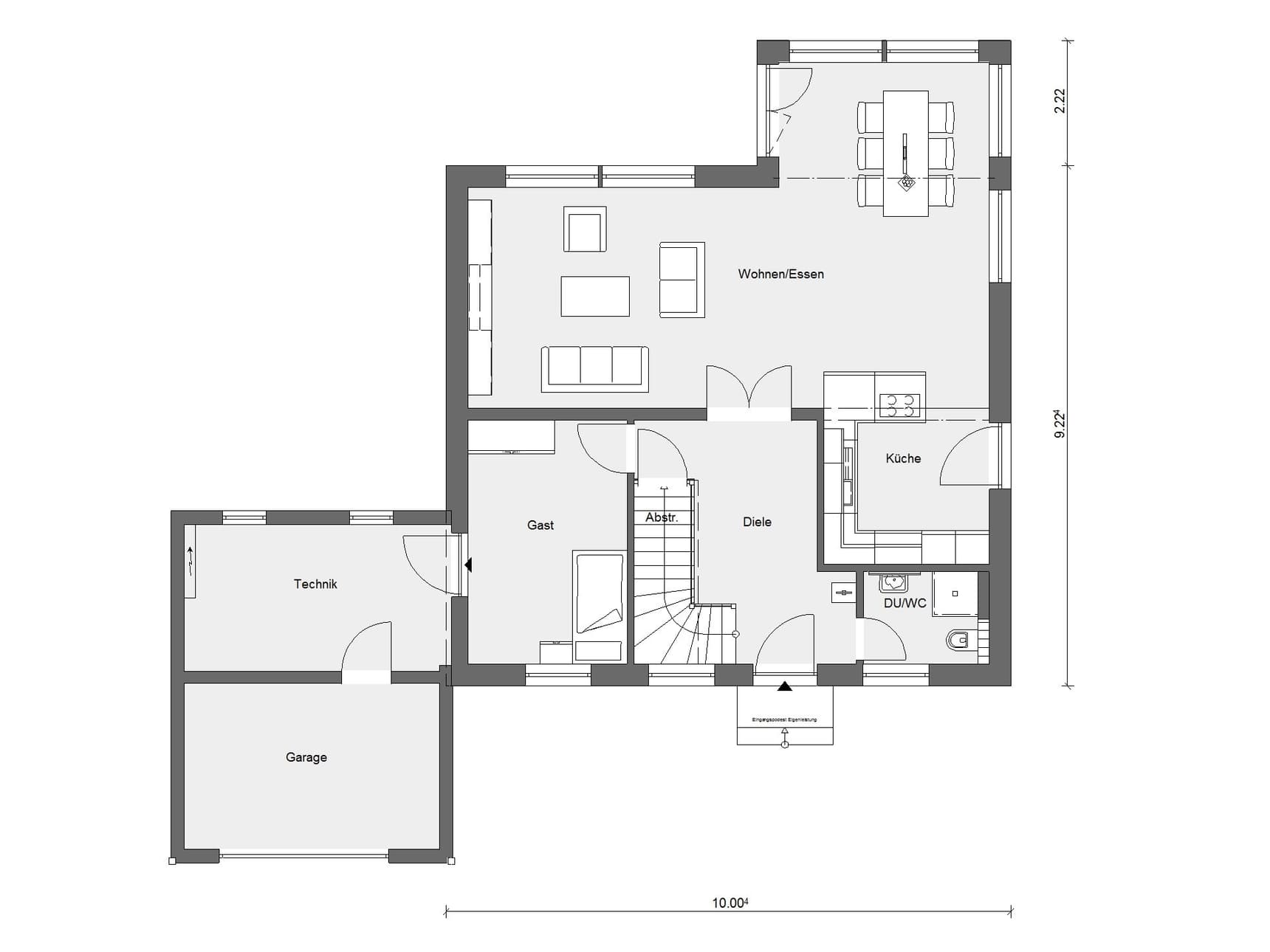
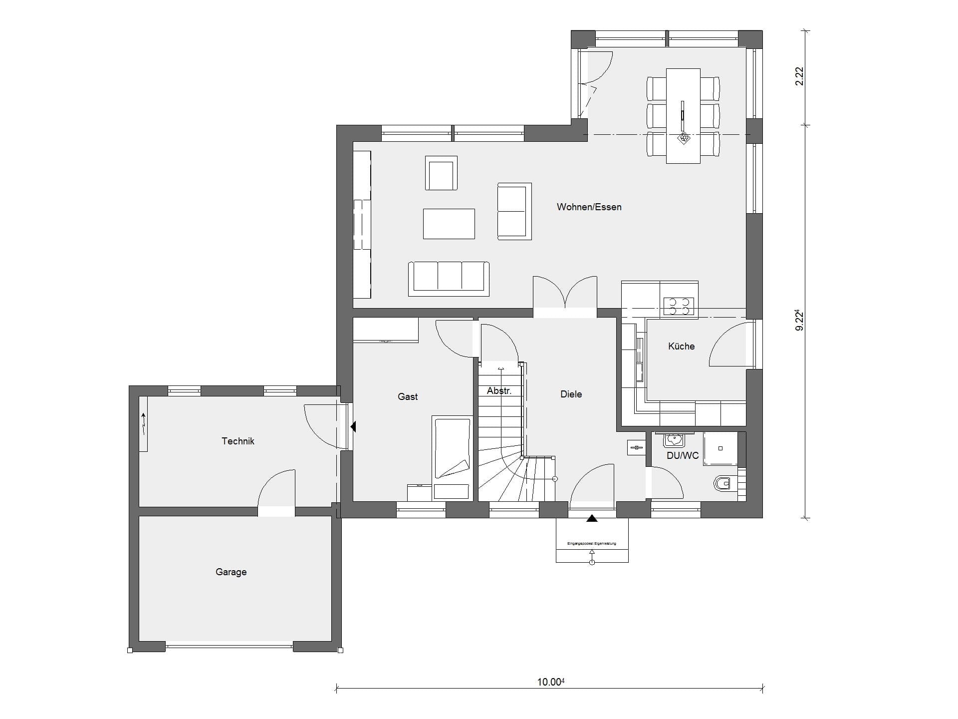
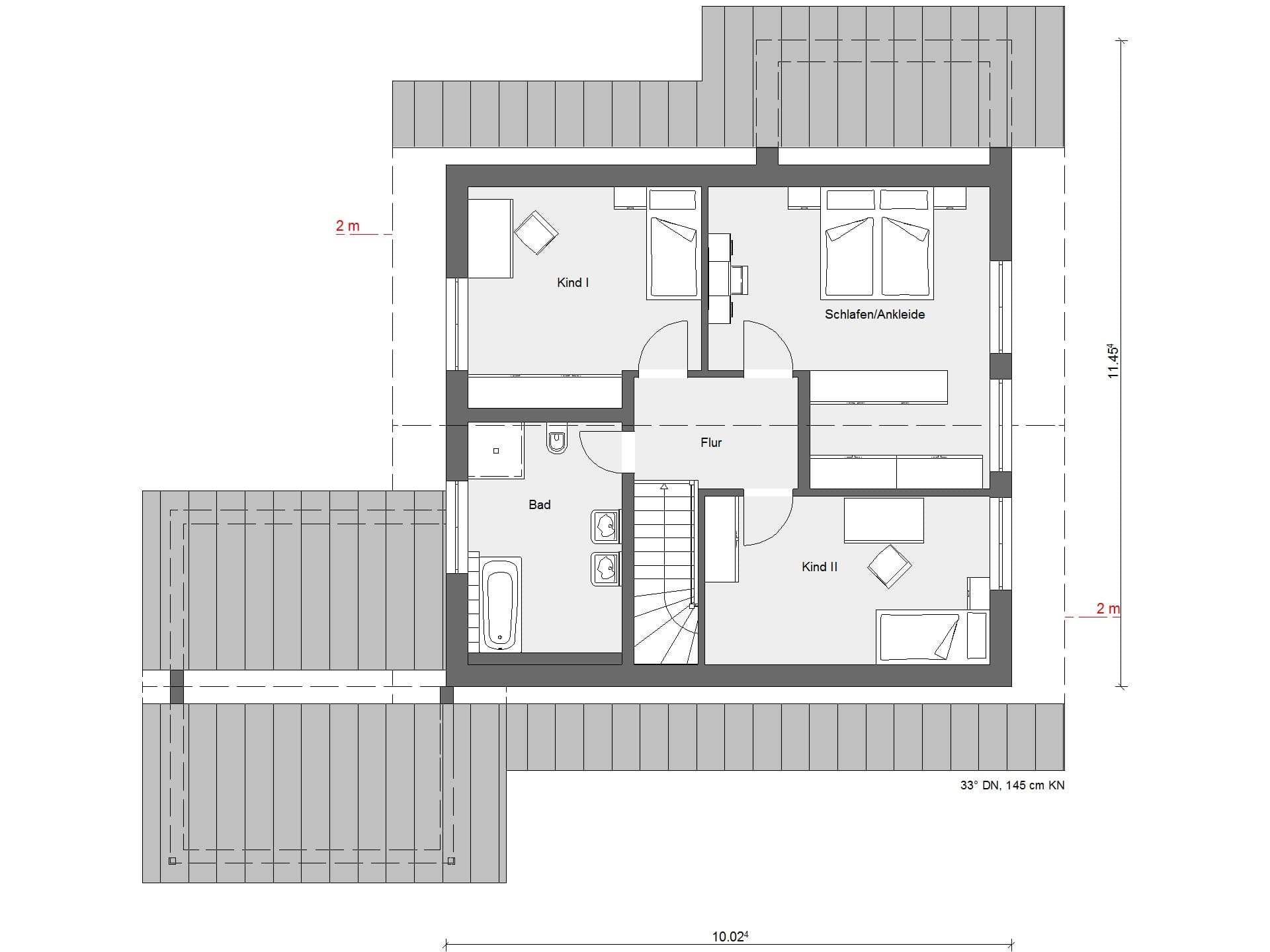
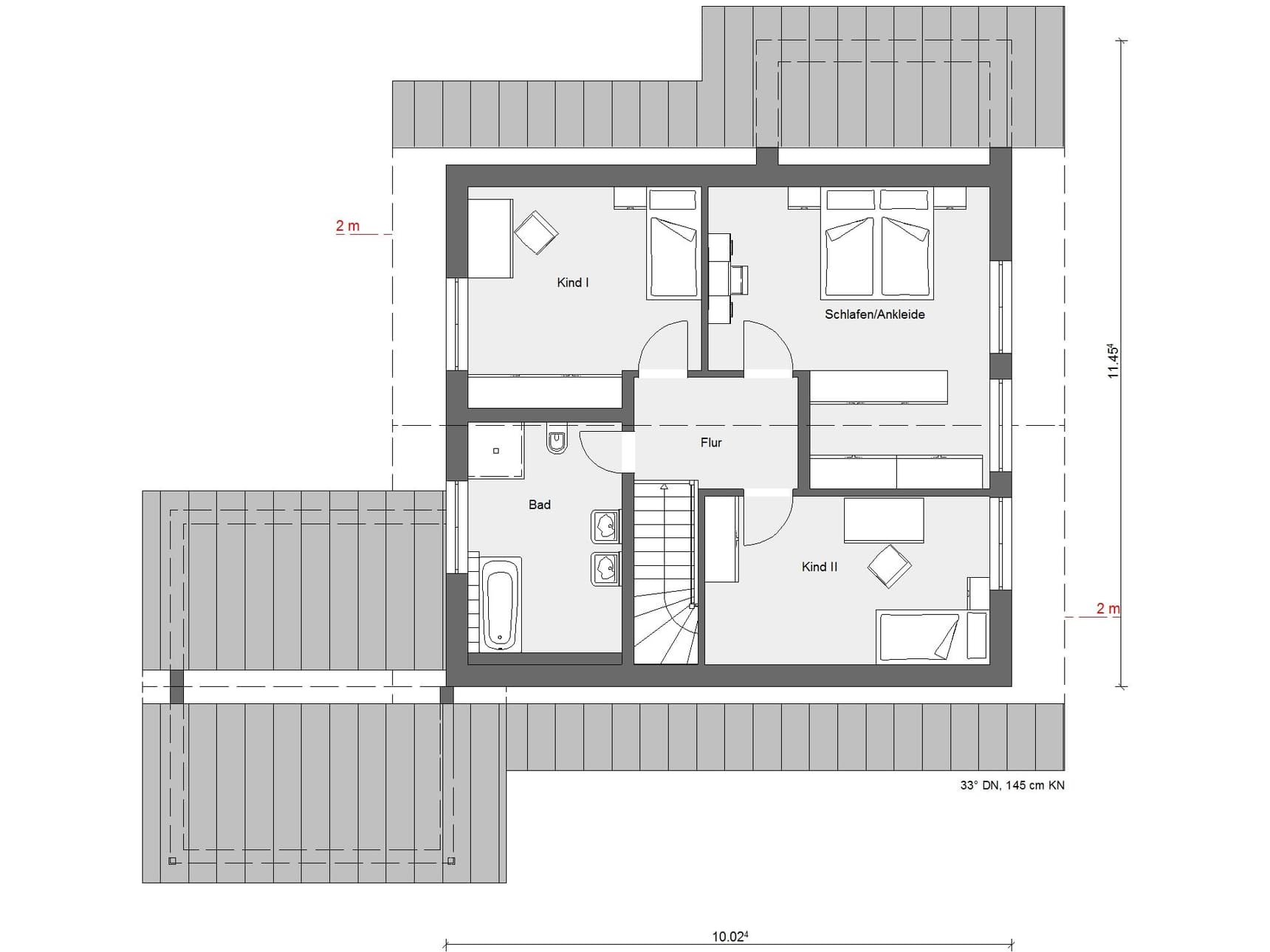
Grundriss

Grundriss Erdgeschoss mit offenem Wohn-Essbereich, Küche, Diele, Gästezimmer, Technikraum, WC und Garage
Musterhaus in Heßdorf Grundriss (EG)Wohnfläche EG: 78,9 m²
Grundriss Dachgeschoss mit Elternschlafzimmer, Ankleide, zwei Kinderzimmern, Bad, Flur und Dachterrassen
Musterhaus in Heßdorf Grundriss (DG)Wohnfläche DG: 62,66 m²

Öffnungszeiten

Montag:Geschlossen
Dienstag:Geschlossen
Mittwoch:09:00 - 16:00 Uhr
Donnerstag:09:00 - 16:00 Uhr
Freitag:09:00 - 16:00 Uhr
Samstag:09:00 - 16:00 Uhr
Sonntag:09:00 - 16:00 Uhr

(öffnet Donnerstag um 13:00 Uhr)

Pfingstsonntag
10:00 - 17:00 Uhr
Pfingstmontag
10:00 - 17:00 Uhr

Adresse

Im Gewerbepark 30
Heßdorf 91093

Anfahrt planen

Beratungstermin

Fertighaus Team in Heßdorf

Musterhaus in Heßdorf

360°Rundgang starten
Virtueller-Rundgang-Musterhaus-Hessdorf.jpg

Unser Team vor Ort

Erwin ErhardFachberater*in bei SchwörerHaus
Erhard_E_7530-inet-1920px-breit-srgb.jpg
Wir beraten Sie gerne!Arrow Icon
Harald WunderFachberater*in bei SchwörerHaus
Wunder_H_8369-inet-1920px-breit-srgb.jpg
Michael RittnerFachberater*in bei SchwörerHaus
Rittner_M_8229-inet-1920px-breit-srgb.jpg
House and TreeParksHouse and PinMusterhausHouse on HandAnbieter