1. AnbieterArrow Icon
  2. SchwörerHausArrow Icon
  3. Musterhaus in Fellbach bei Stuttgart
Slide 1
Location Icon
Slide 2
Location Icon
Slide 3
Location Icon
Slide 4
Location Icon
Slide 5
Location Icon
Slide 6
Location Icon
Slide 7
Location Icon
no description
SchwörerHausMusterhaus in Fellbach bei Stuttgart
homeLandhäuser
livingArea201 m²
energyStandardEffizienzhaus 55 EE
Preis anfragen

Musterhaus in Fellbach bei Stuttgart

Modernes Fertighaus mit Galerie

Als Individualist in jeglicher Hinsicht präsentiert sich dieses Musterhaus. Von außen mit Satteldach und Lamellenfassade in Opak und großen, teilweise Über-Eck angeordneten Fensterflächen. Im Inneren mit einläufiger Treppe, Glasdach und Podest auf der großen Galerie im Dachgeschoss.

Hausdaten

Hausart Icon
HausartEinfamilienhaus
Bauweise Icon
BauweiseHolz-Tafelbau
Baustil Icon
BaustilLandhäuser
Fassade Icon
FassadeMaterialkombination
Außenmaße Icon
Außenmaße13.19 m x 10.63 m
Wohnfläche Icon
Wohnfläche200.61 m²
Dachform Icon
DachformSattel-/Giebeldach
Energiestandard Icon
EnergiestandardEffizienzhaus 55 EE
Pfeil nach unten linksWir schaffen Platz für Ihre Träume

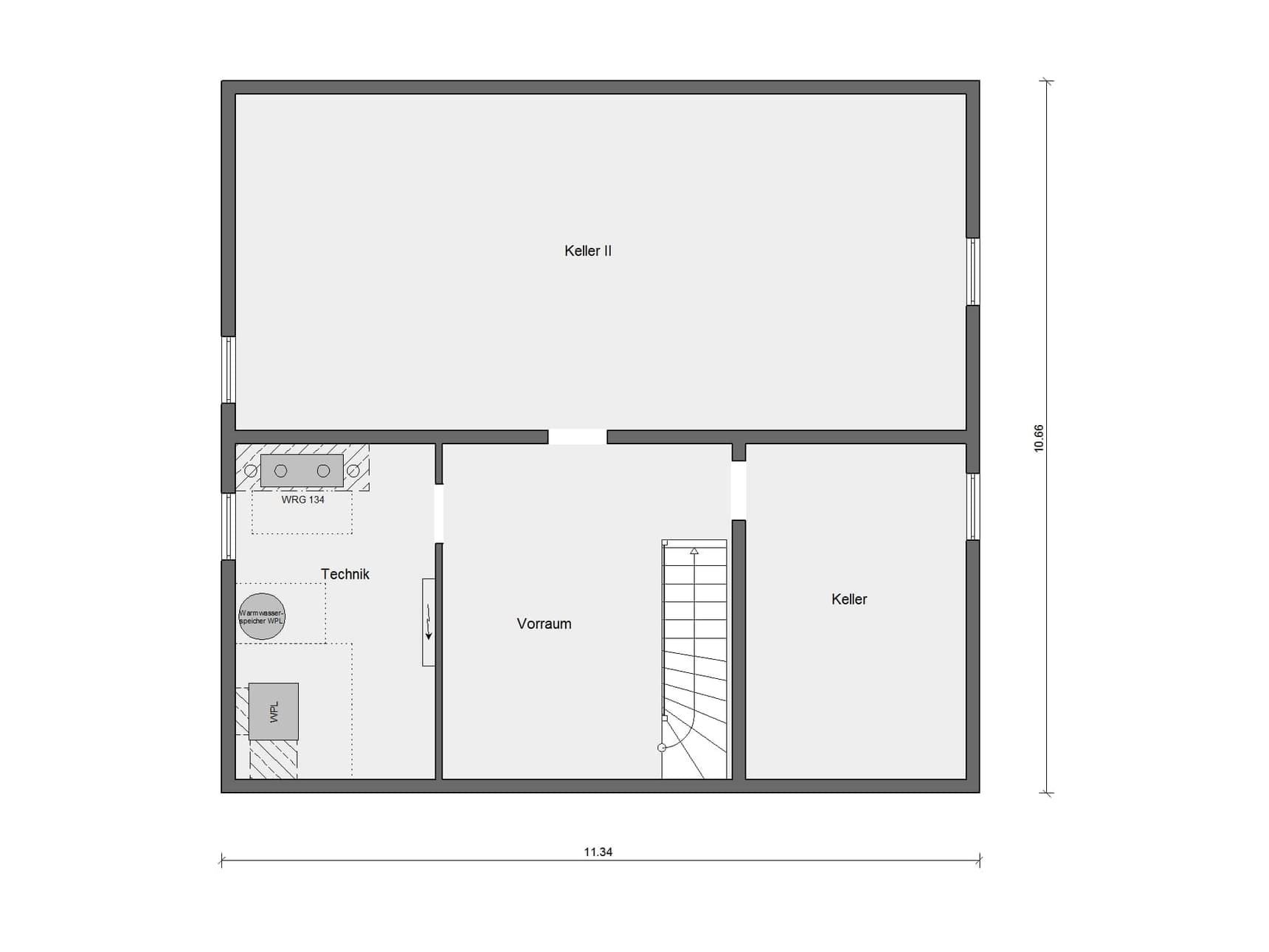
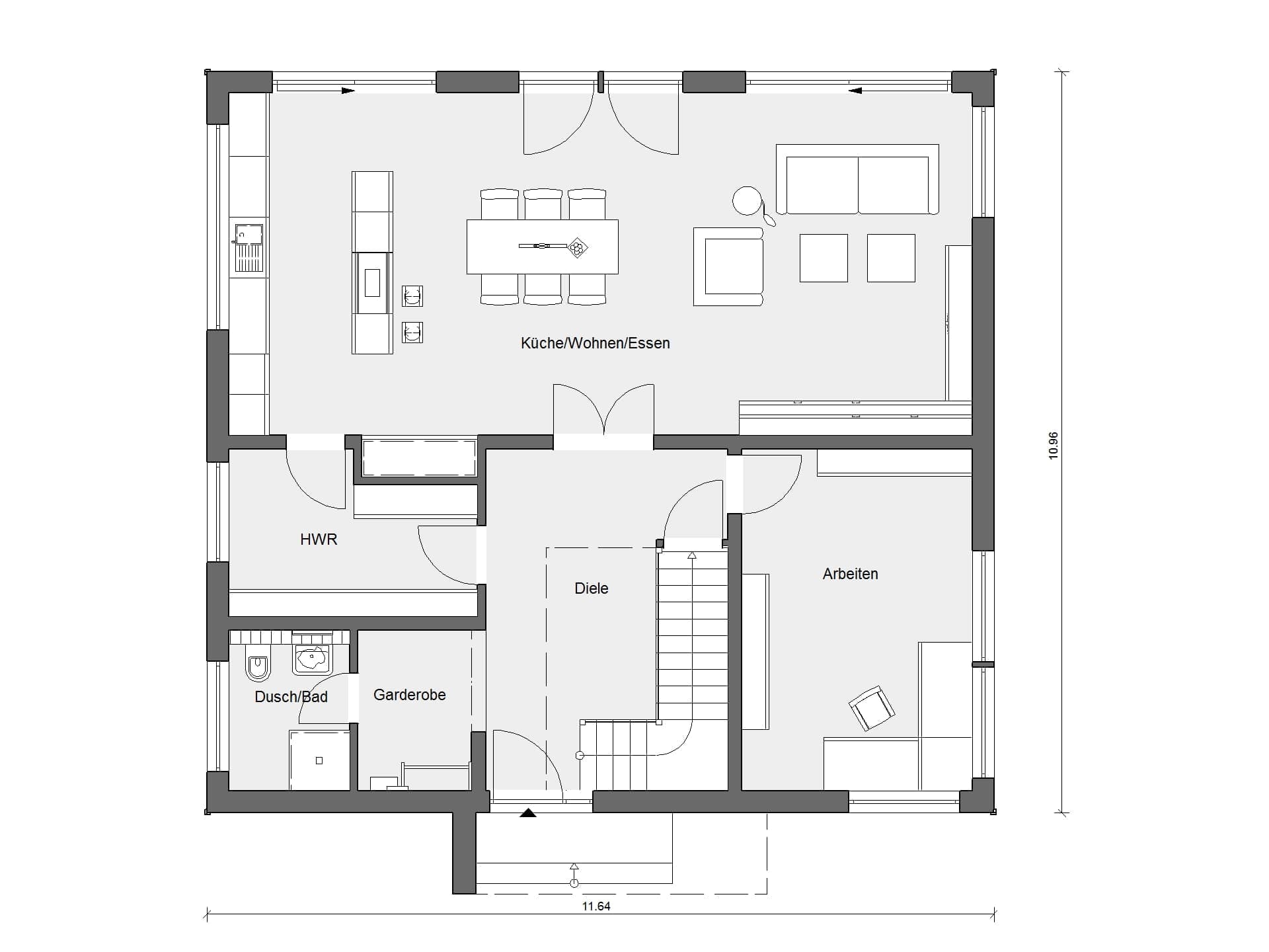
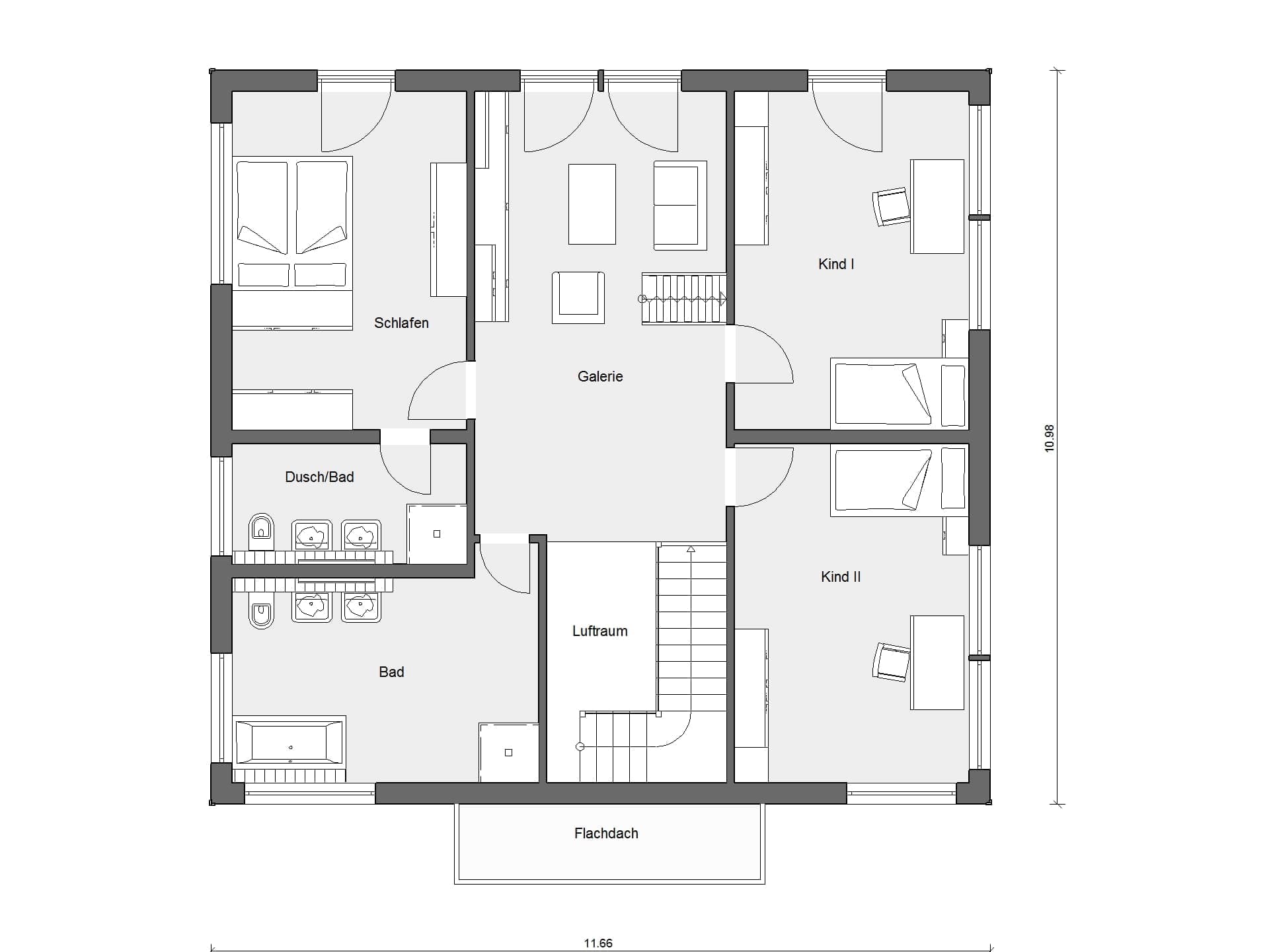
Grundriss

no description
Musterhaus in Fellbach bei Stuttgart Grundriss (Keller)
no description
Musterhaus in Fellbach bei Stuttgart Grundriss (EG)
no description
Musterhaus in Fellbach bei Stuttgart Grundriss (DG)

Öffnungszeiten

Montag:Geschlossen
Dienstag:Geschlossen
Mittwoch:09:00 - 16:00 Uhr
Donnerstag:09:00 - 16:00 Uhr
Freitag:09:00 - 16:00 Uhr
Samstag:09:00 - 16:00 Uhr
Sonntag:09:00 - 16:00 Uhr

(öffnet Samstag um 12:00 Uhr)

Adresse

Höhenstraße 21
Fellbach bei Stuttgart 70736

Anfahrt planen

Beratungstermin

Fertighaus Team in Fellbach bei Stuttgart
House and TreeParksHouse and PinHäuser liveHouse on HandAnbieter
SchwörerHaus - Modernes Fertighaus mit Galerie in Stuttgart