1. AnbieterArrow Icon
  2. SchwörerHausArrow Icon
  3. Berliner Stadthaus
Slide 1
Slide 2
Slide 3
no description
SchwörerHausBerliner Stadthaus
homeStadtvillen
livingArea188 m²
energyStandardEffizienzhaus 55 EE
Preis anfragen
Katalog bestellen

Berliner Stadthaus

Plan E 20-188.2

Dieses Stadthaus mit zwei Vollgeschossen, einem Zeltdach, einer Fassade aus Putz und Holz und anthrazitfarbenen Fensterrahmen wurde im Norden von Berlin erbaut. Im inneren wurde auf eine helle Farbgebung geachtet um ein tolles Ambiente für moderne Klassiker zu schaffen.

Hausdaten

Hausart Icon
HausartEinfamilienhaus
Bauweise Icon
BauweiseHolz-Tafelbau
Baustil Icon
BaustilStadtvillen
Fassade Icon
FassadePutz
Außenmaße Icon
Außenmaße10.49 m x 12.16 m
Wohnfläche Icon
Wohnfläche188.44 m²
Dachform Icon
DachformWalm-/Zeltdach
Energiestandard Icon
EnergiestandardEffizienzhaus 55 EE
Immobilientyp Icon
ImmobilientypKundenhaus
Dachneigung Icon
Dachneigung25°
Hausdämmstoff Icon
HausdämmstoffMineralfaser (Glaswolle, Steinwolle)
Heizungsart Icon
HeizungsartLüftungsheizung
Pfeil nach unten linksWir schaffen Platz für Ihre Träume

Grundriss

no description
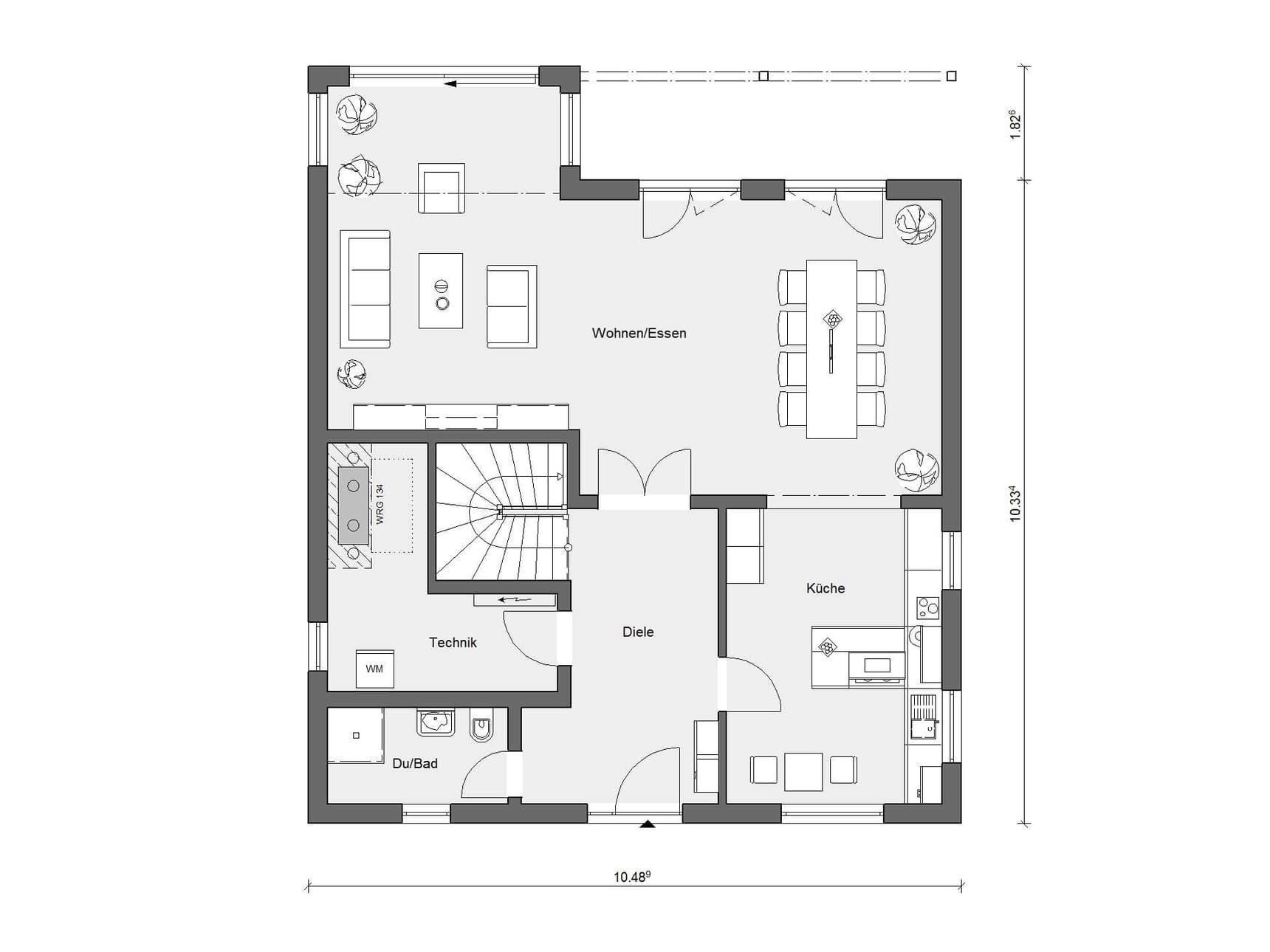
Berliner Stadthaus Grundriss (EG)Wohnfläche EG: 97,64 m²
no description
Berliner Stadthaus Grundriss (DG)Wohnfläche DG: 90,8 m²

Kataloge

SchwörerHaus: Raumwunder
SchwörerHaus

SchwörerHaus: Raumwunder


SchwörerHaus: Hausideen
SchwörerHaus

SchwörerHaus: Hausideen


SchwörerHaus: FlyingSpace
SchwörerHaus

SchwörerHaus: FlyingSpace


SchwörerHaus: Doppelhäuser
SchwörerHaus

SchwörerHaus: Doppelhäuser


House and TreeParksHouse and PinMusterhausHouse on HandAnbieter