1. AnbieterArrow Icon
  2. RENSCH-HAUSArrow Icon
  3. Innovation R Malmö
Slide 1
Slide 2
Slide 3
Slide 4
no description
RENSCH-HAUSInnovation R Malmö
homeSchwedenhäuser
livingArea207 m²
Preis anfragen
Katalog bestellen

Innovation R Malmö

Modernes Haus im Schwedenlook.

Dieses moderne Haus, hier im Schwedenlook, ist Sinnbild für ein idyllisches Landleben. Terrasse mit Seeblick und ein eigener Hausgarten zur Selbstversorgung? Wer kommt da nicht ins Schwärmen? Dieser Baustil mit 2,5 Etagen und steilem Satteldach verbindet gleich zwei hervorragende Eigenschaften miteinander, denn möglichst viel Wohnraum auf geringer Grundstücksfläche sind oft entscheidende Faktoren. Ein vollständiges und familienfreundliches Raumprogramm befindet sich bereits auf den ersten beiden Etagen und zusätzlich gibt es noch reichlich Platz für die unterschiedlichsten Nutzungsmöglichkeiten unter dem Dach. Auf diese Weise bietet dieser Entwurf ca. 177m² Wohnfläche plus reichlich Stauraum on Top.

Hausdaten

Hausart Icon
HausartEinfamilienhaus
Bauweise Icon
BauweiseHolz-Tafelbau
Anzahl Räume Icon
Anzahl Räume7
Baustil Icon
BaustilSchwedenhäuser
Außenmaße Icon
Außenmaße11.26 m x 8.26 m
Wohnfläche Icon
Wohnfläche207 m²
Dachform Icon
DachformSattel-/Giebeldach
Etagen Icon
Etagen3
Immobilientyp Icon
ImmobilientypPlanungsidee
Dachneigung Icon
Dachneigung40°
Kniestock Icon
Kniestock0.25 m
Pfeil nach unten linksWir schaffen Platz für Ihre Träume

Grundriss

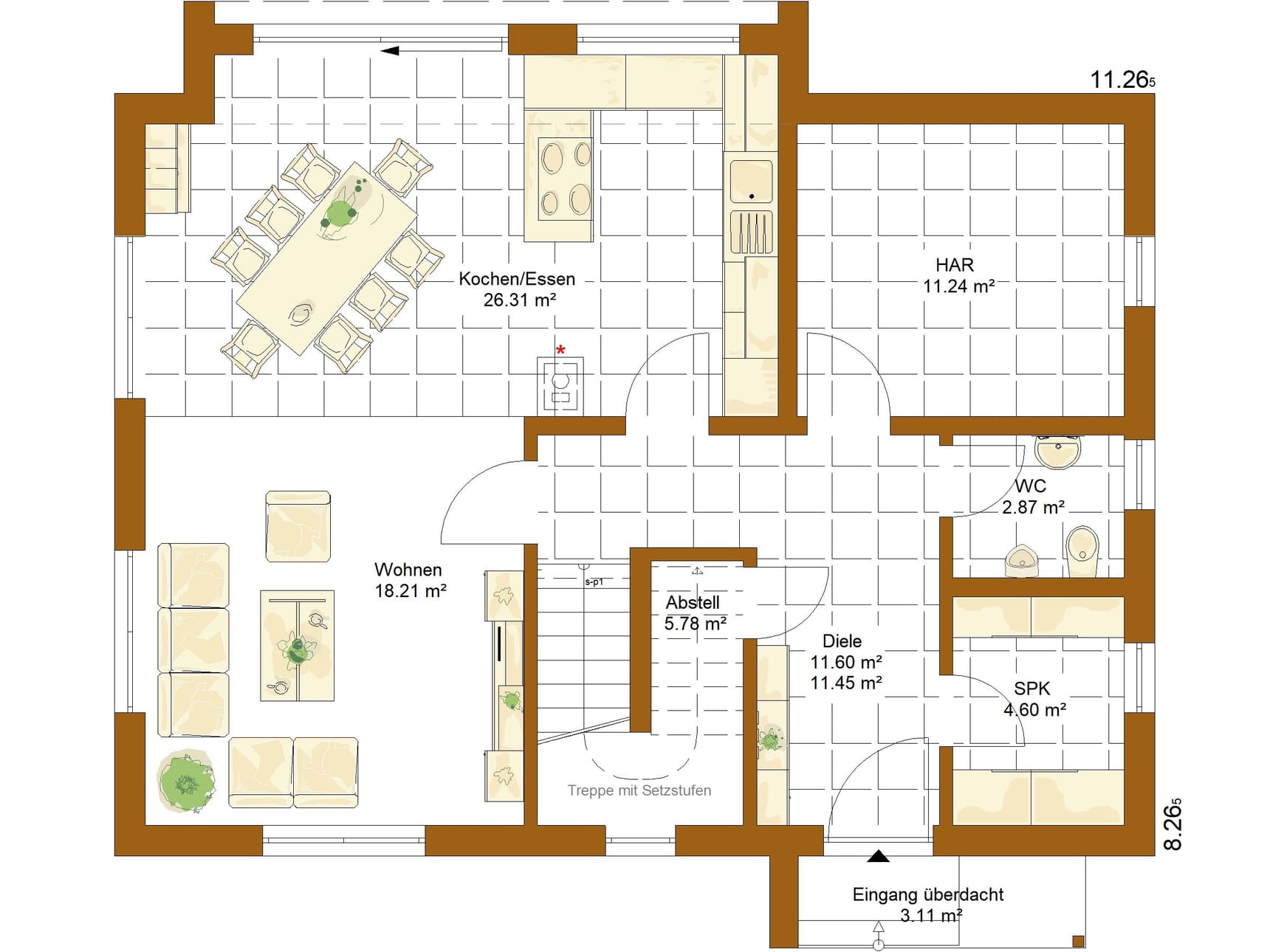
01_Malmö_EG.jpg
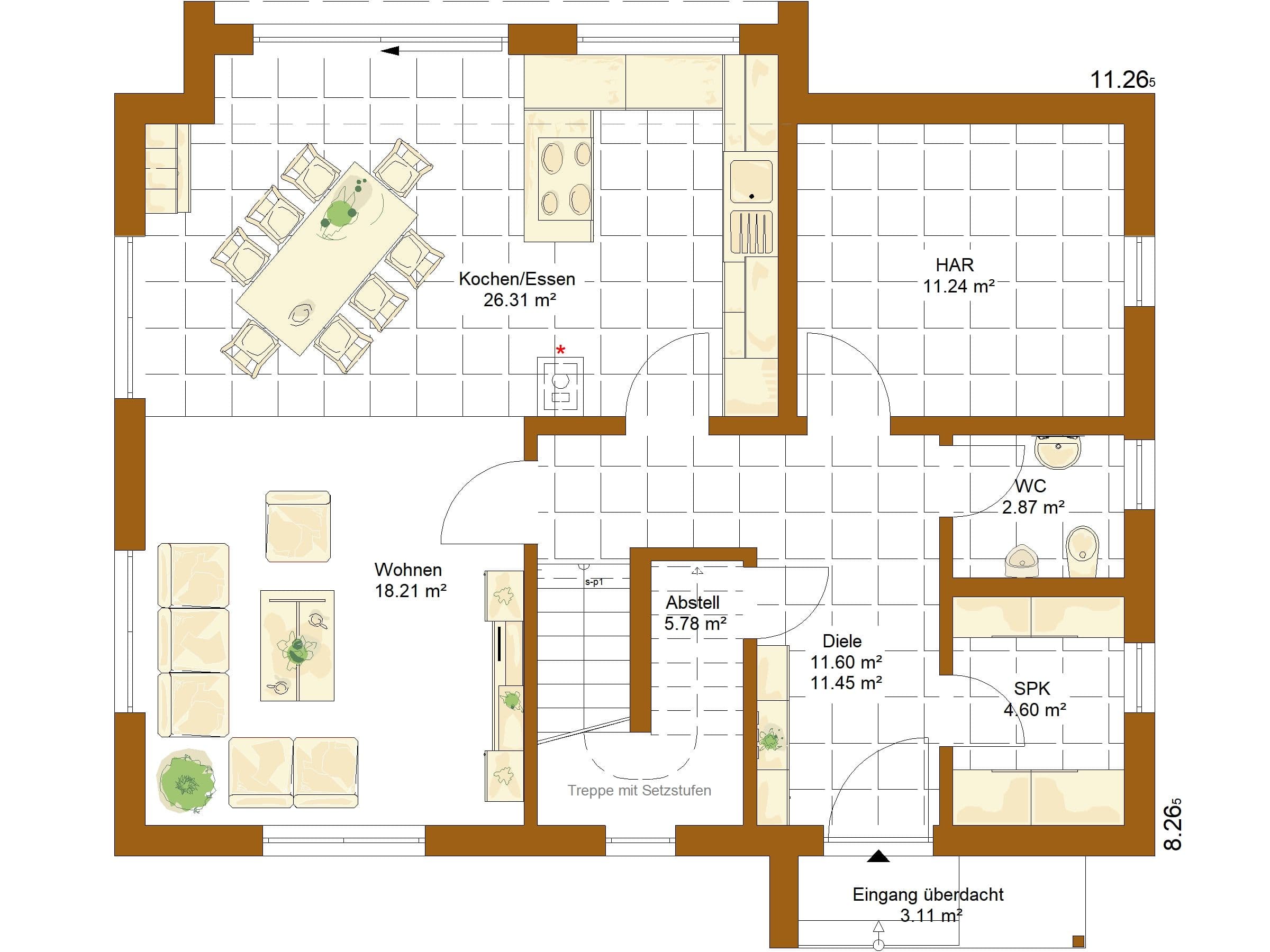
Innovation R Malmö Grundriss (EG)Wohnfläche EG: 81 m²
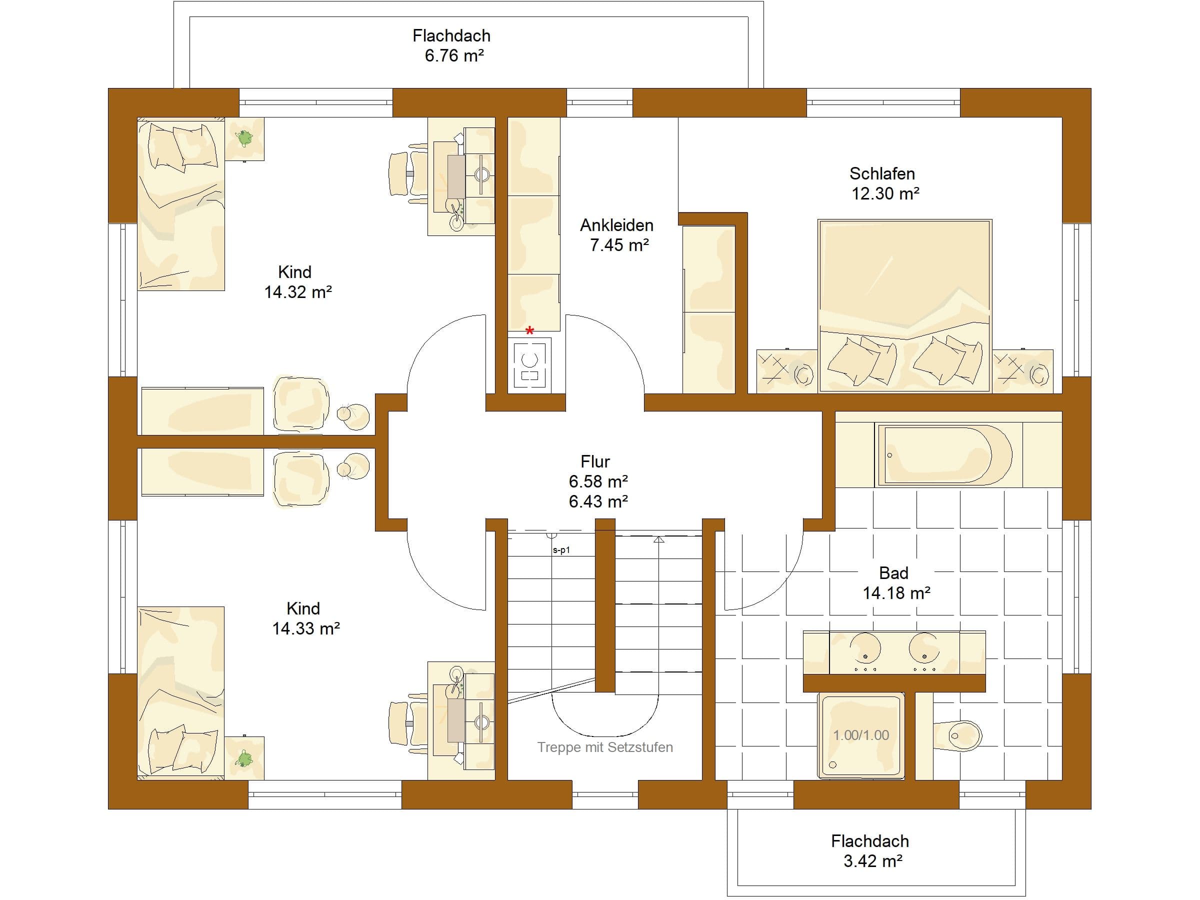
02_Malmö_OG.jpg
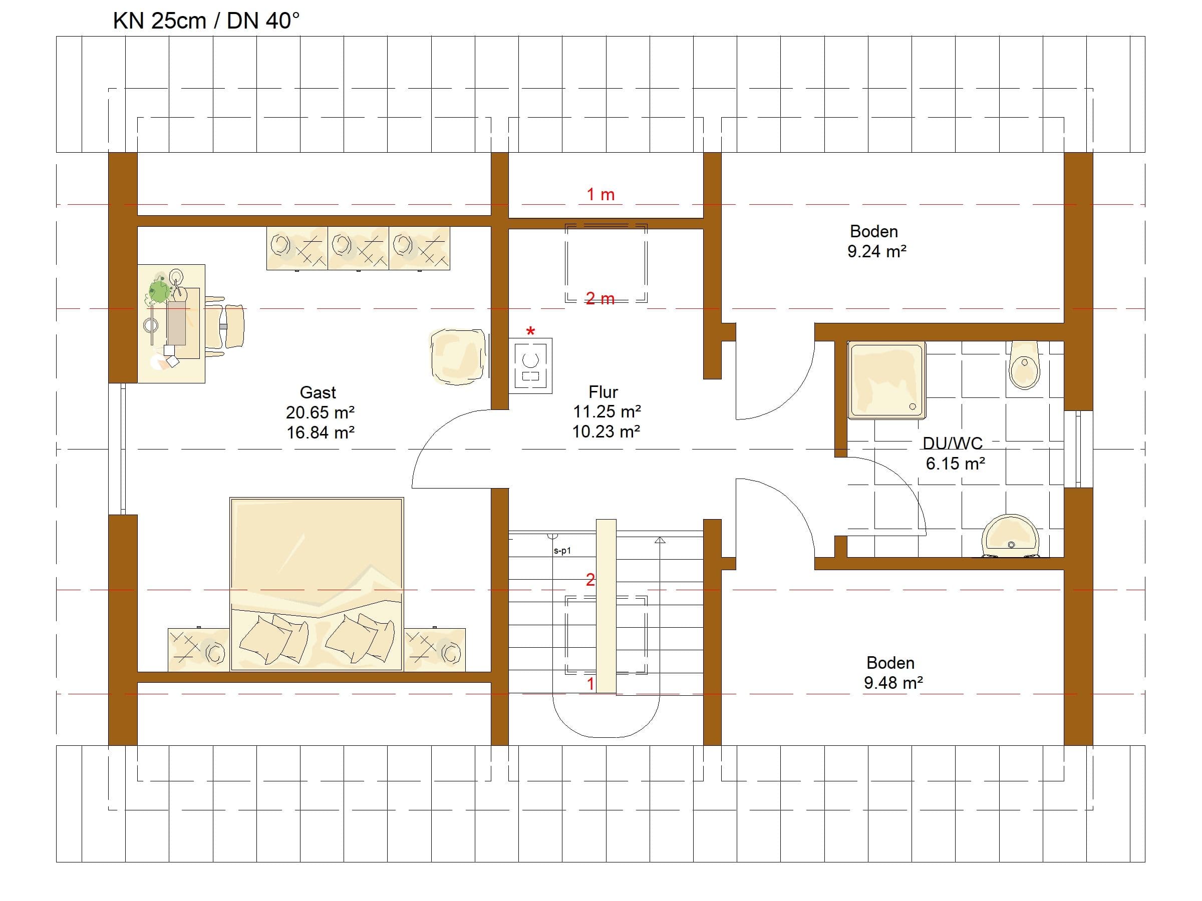
Innovation R Malmö Grundriss (OG)Wohnfläche OG: 69 m²
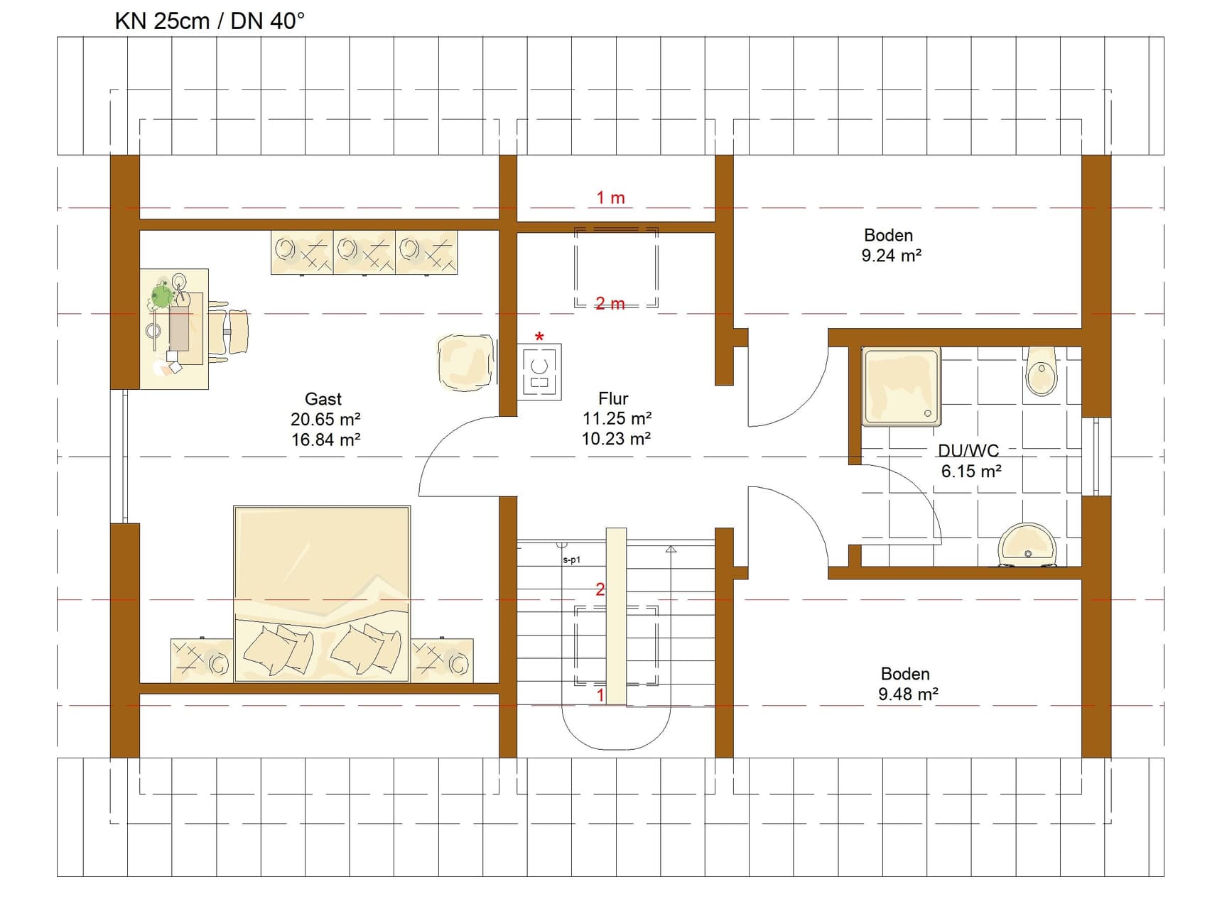
03_Malmö_DG.jpg
Innovation R Malmö Grundriss (DG)Wohnfläche DG: 57 m²

Kataloge

RENSCH-HAUS: Hauskatalog
RENSCH-HAUS

RENSCH-HAUS: Hauskatalog


House and TreeParksHouse and PinHäuser liveHouse on HandAnbieter