1. AnbieterArrow Icon
  2. RENSCH-HAUSArrow Icon
  3. Innovation R - Arosa
Slide 1
Slide 2
Slide 3
Slide 4
no description
RENSCH-HAUSInnovation R - Arosa
homeKlassische Familienhäuser
livingArea215 m²
energyStandardEffizienzhaus 40
Preis anfragen
Katalog bestellen

Innovation R - Arosa

Ein absolutes Wohnhighlight.

Arosa, das Haus mit den vier Giebeln ist ein stattliches und repräsentatives Anwesen mit über 210 m² Wohnfläche.

Einen ersten Eindruck davon bekommt man direkt in der Eingangshalle mit Luftraum, geradläufiger Treppe und direktem Blick in den Garten. Herzstück des Hauses ist der über 30 m² große Koch- und Essbereich sowie das zum Garten hin ausgerichtete und etwas separiert angeordnete Wohnzimmer mit großzügiger Verglasung.
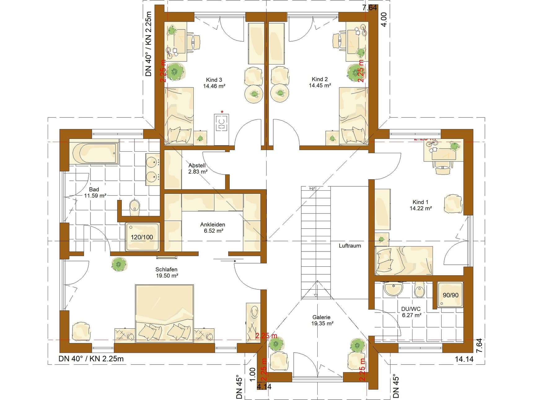
Die obere Etage ist in zwei Zonen gegliedert. Eine davon ist alleine den Eltern vorbehalten und besteht aus Schlaf-/ Ankleide- und Badezimmer. Die zweite Zone, mit eigenem DU/WC, steht den Kindern oder auch den Gästen der Familie zur Verfügung. Verbunden sind beide Zonen durch die beeindruckende Galerie.

Hausdaten

Hausart Icon
HausartEinfamilienhaus
Bauweise Icon
BauweiseHolz-Tafelbau
Anzahl Räume Icon
Anzahl Räume8
Baustil Icon
BaustilKlassische Familienhäuser
Fassade Icon
FassadeMaterialkombination
Wohnfläche Icon
Wohnfläche215 m²
Dachform Icon
DachformSattel-/Giebeldach
Etagen Icon
Etagen2
Energiestandard Icon
EnergiestandardEffizienzhaus 40
Immobilientyp Icon
ImmobilientypPlanungsidee
Dachneigung Icon
Dachneigung40°
Kniestock Icon
Kniestock2.25 m
Pfeil nach unten linksWir schaffen Platz für Ihre Träume

Grundriss

01_Arosa_EG.jpg
Innovation R - Arosa Grundriss (EG)Wohnfläche EG: 106 m²
02_Arosa_DG.jpg
Innovation R - Arosa Grundriss (DG)Wohnfläche DG: 109 m²

Kataloge

RENSCH-HAUS: Hauskatalog
RENSCH-HAUS

RENSCH-HAUS: Hauskatalog


House and TreeParksHouse and PinHäuser liveHouse on HandAnbieter