1. AnbieterArrow Icon
  2. RENSCH-HAUSArrow Icon
  3. Life 160.1
Slide 1
Slide 2
Slide 3
Slide 4
no description
RENSCH-HAUSLife 160.1
homeKlassische Familienhäuser
livingArea170 m²
energyStandardEffizienzhaus 40
Preis anfragen
Katalog bestellen

Life 160.1

Natürliche Holzbauweise für mehr Wohlfühlatmosphäre.

Das Life 160.1 ist die gelungene Interpretation eines modernen Landhauses. Kantige Linienführung in Kombination mit einer Fassadengestaltung in traditioneller Holzoptik, verleihen diesem Haus seinen unverwechselbaren Stil. Die Grundrissgestaltung mit der zentral angeordneten Treppe ist familienfreundlich und gleichermaßen modern. Unter der Treppe befindet sich ein praktischer Abstellraum und der Weg nach oben führt direkt in eine helle und freundliche Galerie, von der aus sämtliche Räume des Dachgeschosses erreichbar sind.

Variante mit „Technikerker mit Eingangsüberdachung, DU/WC und Zugang zur Küche“, „Rechteckerker“, „Panoramafenster,“ Abstellraum unter Treppe, Dachüberstand 40 cm umlaufend (optional gegen Aufpreis)

Hausdaten

Hausart Icon
HausartEinfamilienhaus
Bauweise Icon
BauweiseHolz-Tafelbau
Anzahl Räume Icon
Anzahl Räume7
Baustil Icon
BaustilKlassische Familienhäuser
Fassade Icon
FassadeMaterialkombination, Putz
Wohnfläche Icon
Wohnfläche170 m²
Dachform Icon
DachformSattel-/Giebeldach
Etagen Icon
Etagen2
Energiestandard Icon
EnergiestandardEffizienzhaus 40
Immobilientyp Icon
ImmobilientypPlanungsidee
Dachneigung Icon
Dachneigung25°
Kniestock Icon
Kniestock2.25 m
Pfeil nach unten linksWir schaffen Platz für Ihre Träume

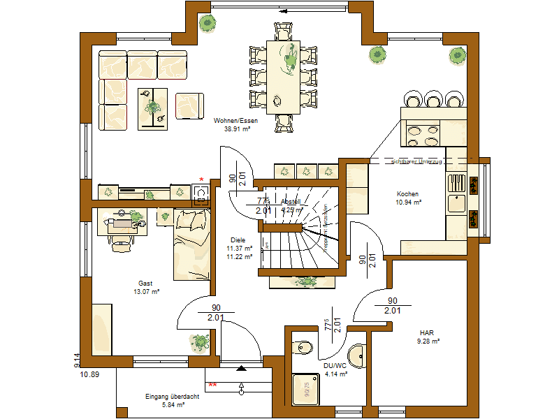
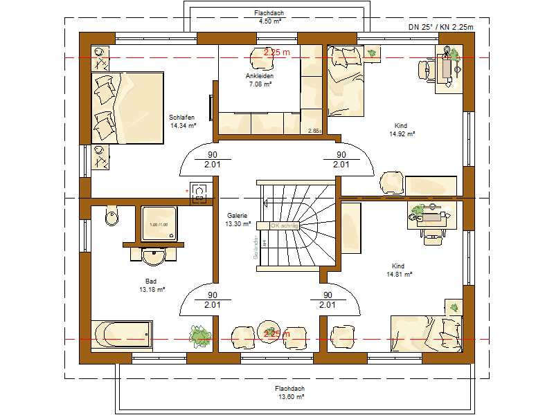
Grundriss

Life 160.1_EG.png
Life 160.1 Grundriss (EG)Wohnfläche EG: 92 m²
Life 160.1_DG.png
Life 160.1 Grundriss (DG)Wohnfläche DG: 78 m²

Kataloge

RENSCH-HAUS: Hauskatalog
RENSCH-HAUS

RENSCH-HAUS: Hauskatalog


House and TreeParksHouse and PinHäuser liveHouse on HandAnbieter