1. AnbieterArrow Icon
  2. RENSCH-HAUSArrow Icon
  3. Twinline R Torino
Slide 1
Slide 2
Slide 3
Slide 4
no description
RENSCH-HAUSTwinline R Torino
homeKlassische Familienhäuser
livingArea152 m²
energyStandardEffizienzhaus 40 EE
Preis anfragen
Katalog bestellen

Twinline R Torino

Traditionelle Satteldacharchitektur

Das Haus Torino verfügt über ca. 152 m² nutzbare Fläche auf drei Wohnebenen. Zusätzlich erweitert ein Kellergeschoss das Raumangebot: Hier ist auch Platz für die gesamte Haustechnik. Die wichtigsten Wohnräume wie Kochen, Essen und Wohnen befinden sich im Erdgeschoss und stehen in direkter Verbindung zur Terrasse. Ein clever geplanter Windfang spart nicht nur Energie, sondern bietet auch Platz für eine über 3 Meter breite Garderobe. Familienbad, Elternschlafzimmer mit Ankleide sowie ein separates Büro befinden sich im Obergeschoss und die Kinder haben ihr eigenes und geräumiges Reich direkt unterm Dach.

Das äußere Erscheinungsbild ist geprägt durch die traditionelle Satteldacharchitektur. Durch geschickt
platzierte, mit Holzverschalung abgesetzte Flachdachanbauten erhält das Haus Torino seinen harmonischen und ausgewogenen Charakter.

Hausdaten

Hausart Icon
HausartZweifamilienhaus
Bauweise Icon
BauweiseHolz-Tafelbau
Baustil Icon
BaustilKlassische Familienhäuser
Fassade Icon
FassadePutz
Außenmaße Icon
Außenmaße7 m x 10.76 m
Wohnfläche Icon
Wohnfläche152 m²
Dachform Icon
DachformSattel-/Giebeldach
Etagen Icon
Etagen2
Energiestandard Icon
EnergiestandardEffizienzhaus 40 EE
Immobilientyp Icon
ImmobilientypPlanungsidee
Dachneigung Icon
Dachneigung35°
Kniestock Icon
Kniestock1.1 m
Hauseigenschaften Icon
HauseigenschaftenTerasse
Hausdämmstoff Icon
HausdämmstoffMineralfaser (Glaswolle, Steinwolle)
Heizungsart Icon
HeizungsartWärmepumpe (Luft, Wasser, oder beides)
Pfeil nach unten linksWir schaffen Platz für Ihre Träume

Grundriss

no description
Twinline R Torino Grundriss (EG)Wohnfläche EG: 53 m²
no description
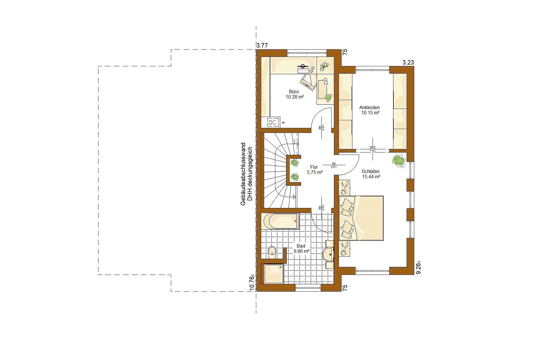
Twinline R Torino Grundriss (OG)Wohnfläche OG: 51 m²
no description
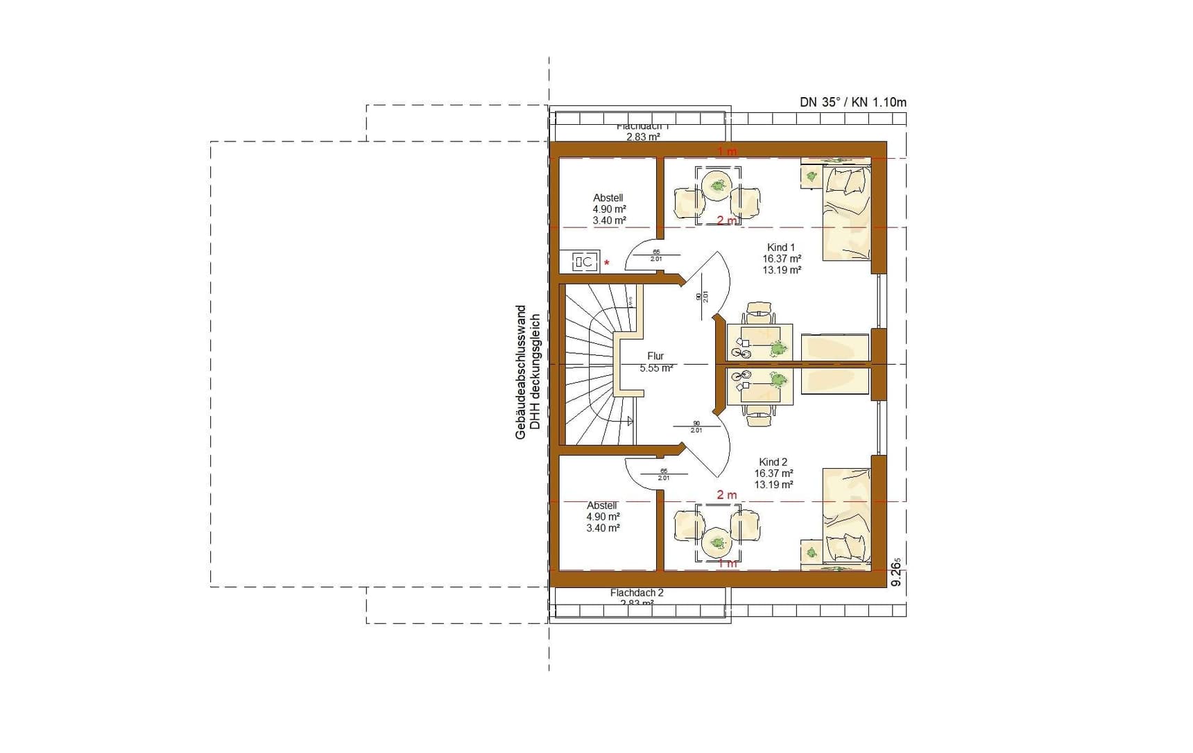
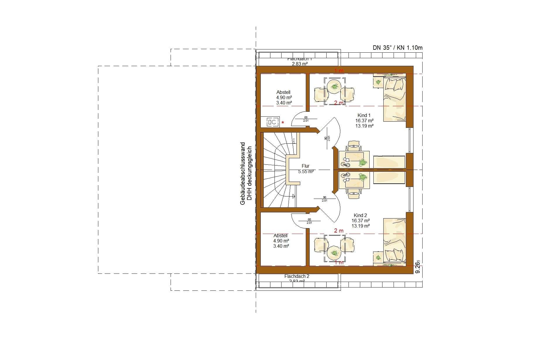
Twinline R Torino Grundriss (DG)Wohnfläche DG: 48 m²

Kataloge

RENSCH-HAUS: Hauskatalog
RENSCH-HAUS

RENSCH-HAUS: Hauskatalog


House and TreeParksHouse and PinHäuser liveHouse on HandAnbieter