1. AnbieterArrow Icon
  2. RENSCH-HAUSArrow Icon
  3. Sydney
Slide 1
Slide 2
Slide 3
Slide 4
no description
RENSCH-HAUSSydney
homeKubushäuser im Bauhausstil
livingArea229 m²
energyStandardEffizienzhaus 40 EE
Preis anfragen
Katalog bestellen

Sydney

Bauhausstil mit hoher Funktionalität.

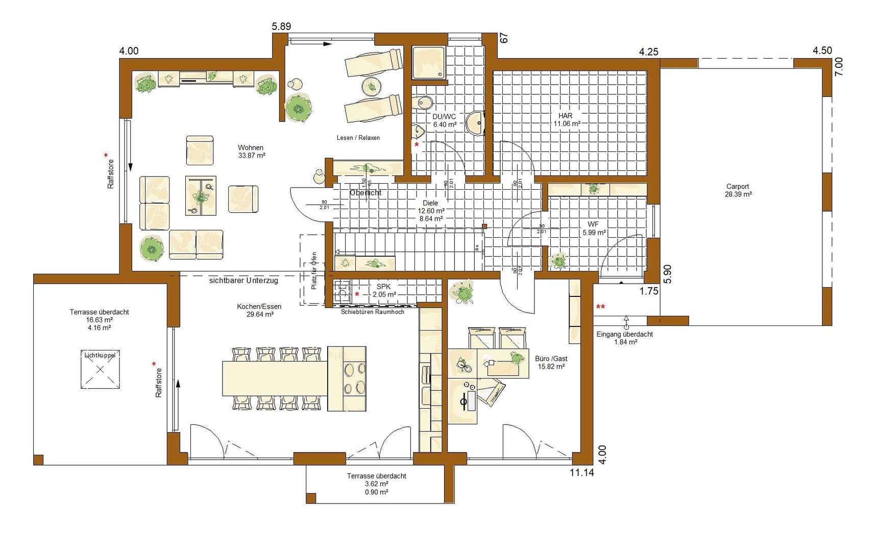
Haus Sydney ist ein imposantes Haus in kubischer Flachdacharchitektur. Große Glasfronten und klare, markante Formgebung sind prägend für die Ästhetik dieses Anwesens. Anbauten wie Carport, überdachte Terrasse und Loggia setzen formschöne und gleichzeitig nützliche Akzente. Auffallend weitläufig und repräsentativ beeindruckt der über 63 m² große Raumkombination von Kochen, Essen und Wohnen, in welchem ein eigener Bereich zum gemütlichen Relaxen zur Verfügung steht. Eine überdachte Terrasse verbindet Haus und Garten - ein schattiger Platz, an dem man auch bei einem warmen Sommerregen gemütlich entspannen kann.

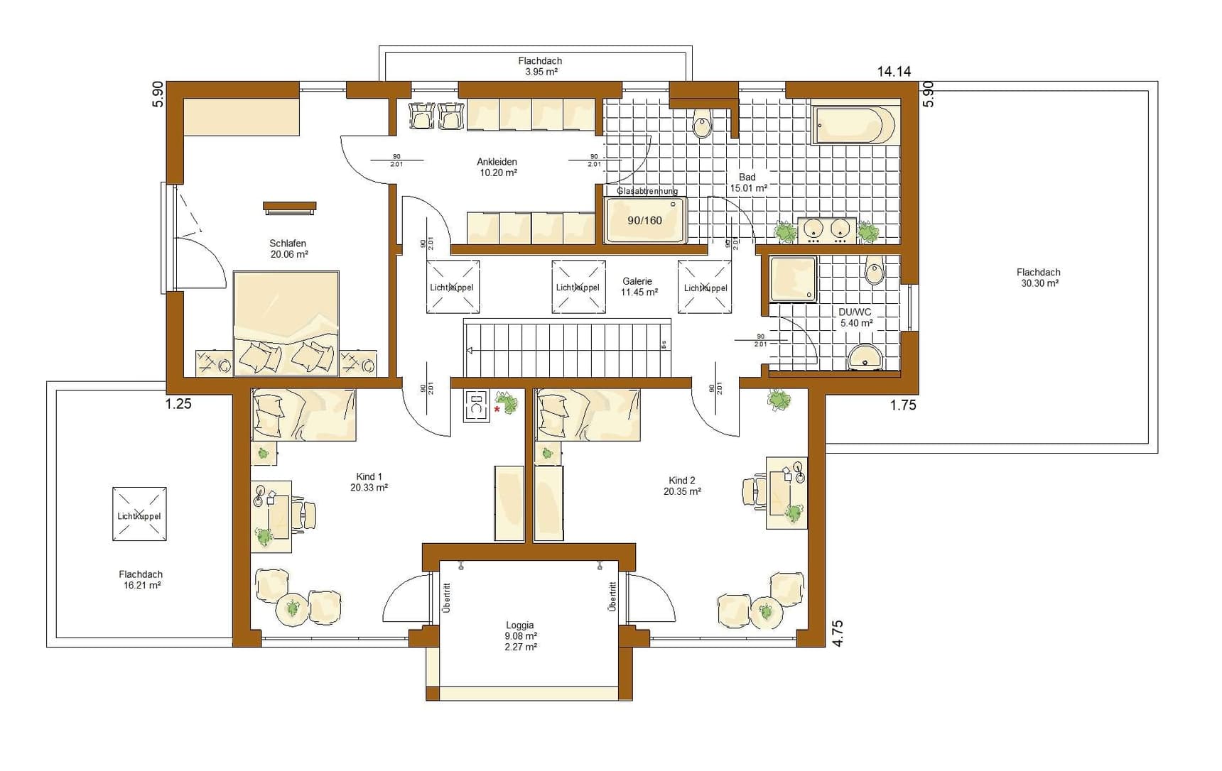
Das Obergeschoss ist voll und ganz auf Komfort für alle Familienmitglieder ausgerichtet. So steht für die beiden Kinder- oder Jugendzimmer neben einem eigenen DU/WC auch eine gemeinsame Loggia zur Verfügung. Der für die Eltern vorgesehene Bereich umfasst auf ca. 45 m² das Schlaf- und Ankleidezimmer sowie das große Familienbad.

Hausdaten

Hausart Icon
HausartEinfamilienhaus
Bauweise Icon
BauweiseHolz-Tafelbau
Baustil Icon
BaustilKubushäuser im Bauhausstil
Fassade Icon
FassadePutz
Außenmaße Icon
Außenmaße11.14 m x 9.9 m
Wohnfläche Icon
Wohnfläche229 m²
Dachform Icon
DachformFlachdach
Energiestandard Icon
EnergiestandardEffizienzhaus 40 EE
Immobilientyp Icon
ImmobilientypPlanungsidee
Hauseigenschaften Icon
HauseigenschaftenGästezimmer
Hausdämmstoff Icon
HausdämmstoffMineralfaser (Glaswolle, Steinwolle)
Heizungsart Icon
HeizungsartWärmepumpe (Luft, Wasser, oder beides)
Pfeil nach unten linksWir schaffen Platz für Ihre Träume

Grundriss

no description
Sydney Grundriss (EG)Wohnfläche EG: 117 m²
no description
Sydney Grundriss (OG)

Kataloge

RENSCH-HAUS: Hauskatalog
RENSCH-HAUS

RENSCH-HAUS: Hauskatalog


House and TreeParksHouse and PinMusterhausHouse on HandAnbieter