1. AnbieterArrow Icon
  2. RENSCH-HAUSArrow Icon
  3. Twinline R Pesaro
Slide 1
Slide 2
Slide 3
Slide 4
no description
RENSCH-HAUSTwinline R Pesaro
homeKlassische Familienhäuser
livingArea136 m²
energyStandardEffizienzhaus 40 EE
Preis anfragen
Katalog bestellen

Twinline R Pesaro

Konsequente und schnörkellose Symmetrie

Von außen besticht das Haus Pesaro durch konsequente und schnörkellose Symmetrie. Der hohe Kniestock und das flach geneigte Satteldach sorgen in Verbindung mit der modernen Eingangsüberdachung für ein attraktives Erscheinungsbild. Gleich mehrere aktuelle Trends werden hier unter einem Dach vereint und schaffen gemeinsam ein attraktives Wohnerlebnis.

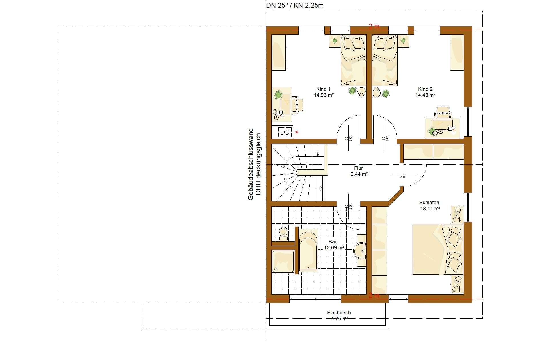
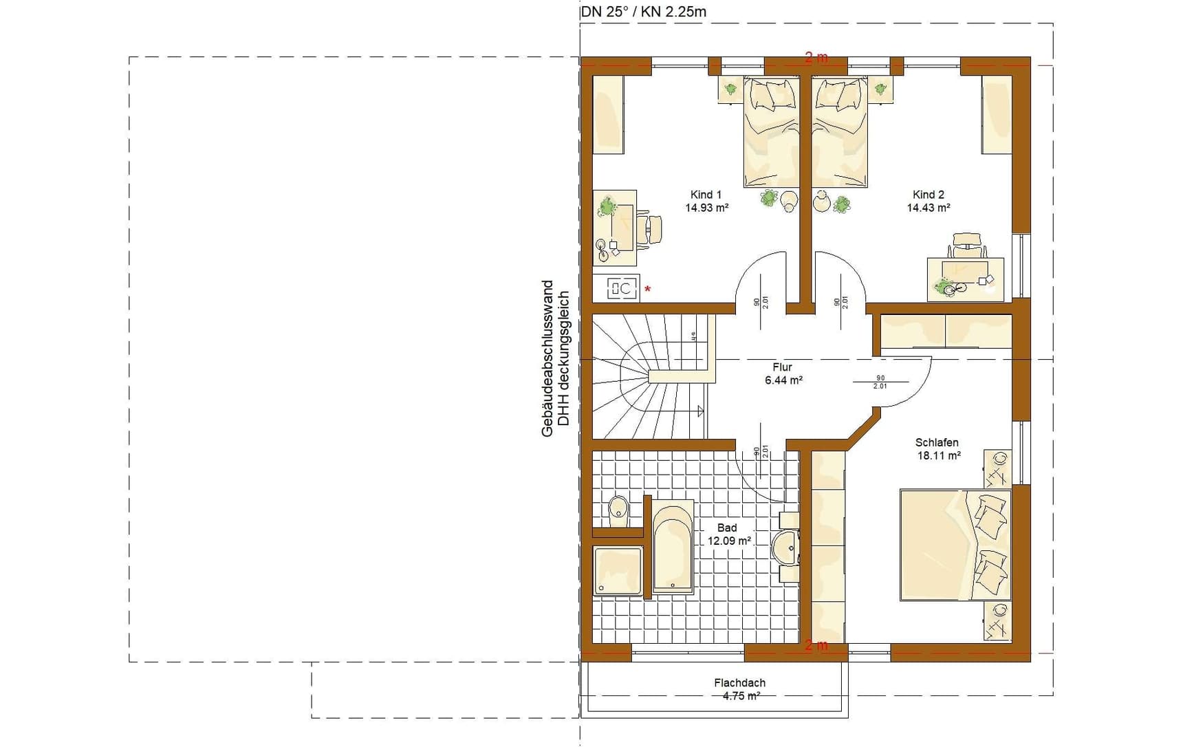
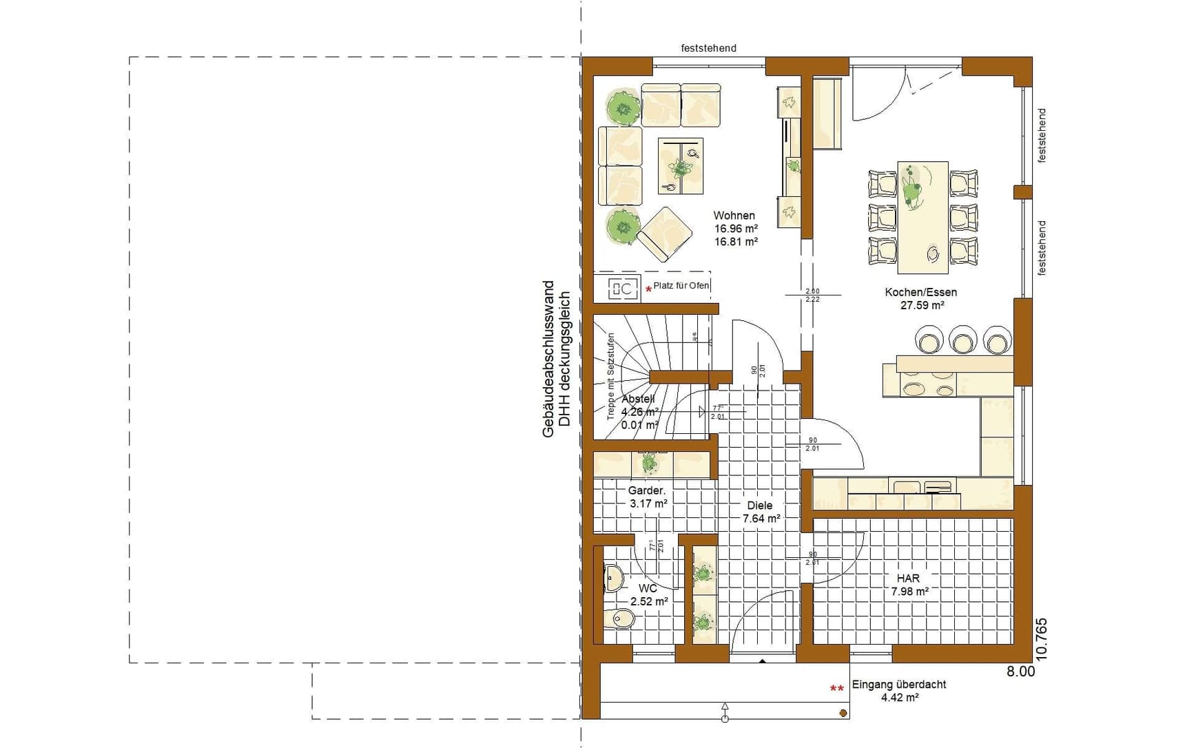
Die Küche und das Esszimmer im Erdgeschoss sind zu einem über 27 m² großen Raum zusammengefasst und bieten genügend Platz für die Familie und deren Gäste. Die großzügige Verglasung ermöglicht tolle Ausblicke in den Garten sowie einen direkten Zugang zur Terrasse. Im Wohnzimmer kann man gemütlich am Kaminfeuer relaxen und ist trotzdem mitten im Geschehen. Auf der gleichen Etage ist auch die Haustechnik sowie ein nützlicher Abstellraum unter der Geschosstreppe angeordnet.

Hausdaten

Hausart Icon
HausartZweifamilienhaus
Bauweise Icon
BauweiseHolz-Tafelbau
Baustil Icon
BaustilKlassische Familienhäuser
Fassade Icon
FassadePutz
Außenmaße Icon
Außenmaße8 m x 10.76 m
Wohnfläche Icon
Wohnfläche136 m²
Dachform Icon
DachformSattel-/Giebeldach
Etagen Icon
Etagen2
Energiestandard Icon
EnergiestandardEffizienzhaus 40 EE
Immobilientyp Icon
ImmobilientypPlanungsidee
Dachneigung Icon
Dachneigung25°
Hauseigenschaften Icon
HauseigenschaftenTerasse
Hausdämmstoff Icon
HausdämmstoffMineralfaser (Glaswolle, Steinwolle)
Heizungsart Icon
HeizungsartWärmepumpe (Luft, Wasser, oder beides)
Pfeil nach unten linksWir schaffen Platz für Ihre Träume

Grundriss

no description
Twinline R Pesaro Grundriss (EG)Wohnfläche EG: 70 m²
no description
Twinline R Pesaro Grundriss (DG)Wohnfläche DG: 66 m²

Kataloge

RENSCH-HAUS: Hauskatalog
RENSCH-HAUS

RENSCH-HAUS: Hauskatalog


House and TreeParksHouse and PinMusterhausHouse on HandAnbieter