1. AnbieterArrow Icon
  2. RENSCH-HAUSArrow Icon
  3. CLOU 149
Slide 1
Slide 2
Slide 3
Slide 4
no description
RENSCH-HAUSCLOU 149
homeKlassische Familienhäuser
livingArea158 m²
energyStandardEffizienzhaus 40 EE
Preis anfragen
Katalog bestellen

CLOU 149

Das CLOU 149 ist ein Traum vieler Familien mit tollem Raumprogramm

Das Einfamilienhaus liegt mit seinem hohen Kniestock bei zahlreichen Bauherren hoch im Trend. Im oberen Stockwerk ist Platz für zwei Kinderzimmer, das Elternschlafzimmer mit Ankleide und ein modernes Familienbad mit T-förmigem Zuschnitt. Das Erdgeschoss bietet genügend Raum für das tägliche Familienleben und außerdem noch ein zusätzliches Zimmer, welches als Homeoffice, Gäste- oder weiteres Kinderzimmer genutzt werden kann.

Verschiedene Grundrissvarianten und Architekturelemente sind möglich. Abgebildete Anbauteile gegebenenfalls gegen Aufpreis. Sprechen Sie bitte mit Ihrem Fachberater.

Hausdaten

Hausart Icon
HausartEinfamilienhaus
Bauweise Icon
BauweiseHolz-Tafelbau
Baustil Icon
BaustilKlassische Familienhäuser
Fassade Icon
FassadePutz
Außenmaße Icon
Außenmaße10.7 m x 8.76 m
Wohnfläche Icon
Wohnfläche158 m²
Dachform Icon
DachformSattel-/Giebeldach
Energiestandard Icon
EnergiestandardEffizienzhaus 40 EE
Immobilientyp Icon
ImmobilientypPlanungsidee
Dachneigung Icon
Dachneigung25°
Kniestock Icon
Kniestock2.25 m
Hauseigenschaften Icon
HauseigenschaftenGästezimmer
Hausdämmstoff Icon
HausdämmstoffMineralfaser (Glaswolle, Steinwolle)
Heizungsart Icon
HeizungsartLüftungsheizung
Pfeil nach unten linksWir schaffen Platz für Ihre Träume

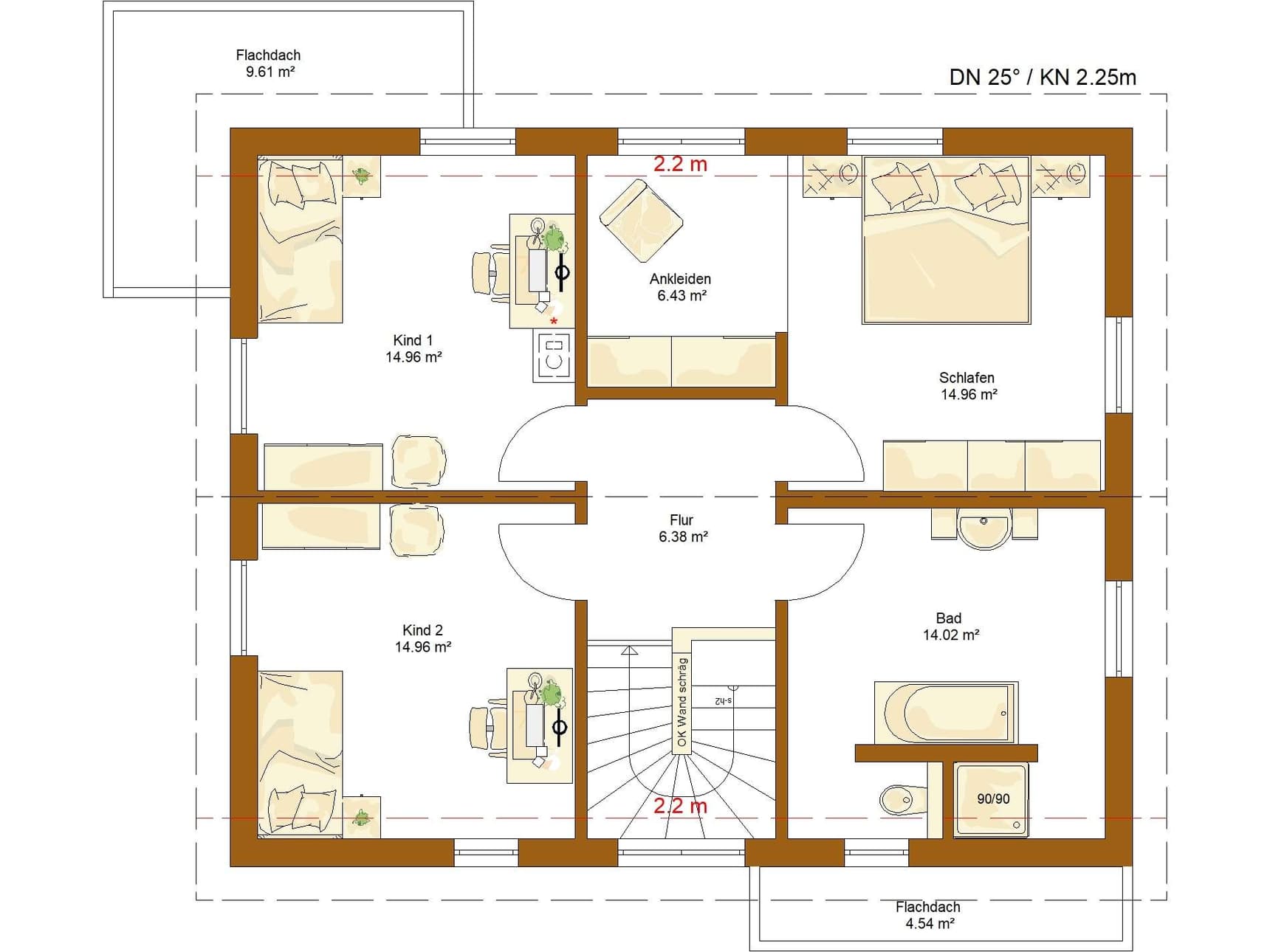
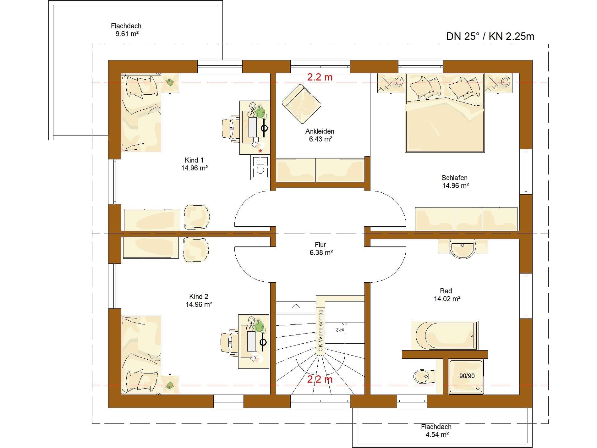
Grundriss

no description
CLOU 149 Grundriss (EG)Wohnfläche EG: 86 m²
no description
CLOU 149 Grundriss (DG)Wohnfläche DG: 72 m²

Kataloge

RENSCH-HAUS: Hauskatalog
RENSCH-HAUS

RENSCH-HAUS: Hauskatalog


House and TreeParksHouse and PinMusterhausHouse on HandAnbieter