1. AnbieterArrow Icon
  2. RENSCH-HAUSArrow Icon
  3. CLOU 145
Slide 1
Slide 2
Slide 3
Slide 4
no description
RENSCH-HAUSCLOU 145
homeKlassische Familienhäuser
livingArea152 m²
energyStandardEffizienzhaus 40 EE
Preis anfragen
Katalog bestellen

CLOU 145

Das CLOU 145 trifft mit seiner klassischen Architektur den Geschmack vieler Bauherren

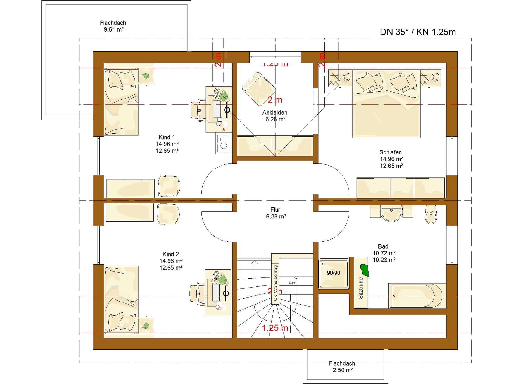
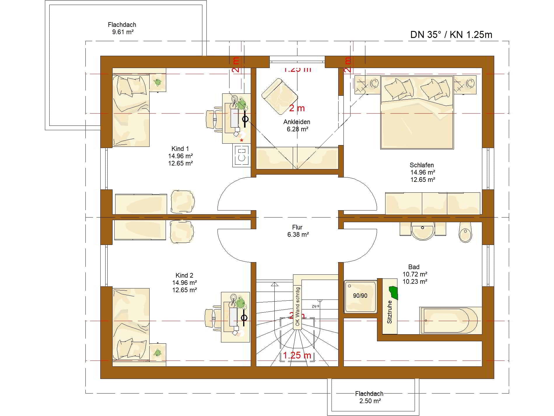
Ein traditionelles Satteldach in Verbindung mit einem dritten Giebel ist das prägende Gestaltungselement dieses Hauses. Unter dem Dach findet sich Platz für zwei Kinderzimmer, ein Elternschlafzimmer mit lichtdurchfluteter Ankleide sowie ein modernes Familienbad. Das Erdgeschoss bietet genügend Raum für das tägliche Familienleben und außerdem noch ein zusätzliches Zimmer, welches als Büro, Gästezimmer oder weiteres Kinderzimmer genutzt werden kann.

Verschiedene Grundrissvarianten und Architekturelemente sind möglich. Abgebildete Anbauteile gegebenenfalls gegen Aufpreis. Sprechen Sie bitte mit Ihrem Fachberater.

Hausdaten

Hausart Icon
HausartEinfamilienhaus
Bauweise Icon
BauweiseHolz-Tafelbau
Baustil Icon
BaustilKlassische Familienhäuser
Fassade Icon
FassadePutz
Außenmaße Icon
Außenmaße10.7 m x 8.76 m
Wohnfläche Icon
Wohnfläche152 m²
Dachform Icon
DachformSattel-/Giebeldach
Energiestandard Icon
EnergiestandardEffizienzhaus 40 EE
Immobilientyp Icon
ImmobilientypPlanungsidee
Dachneigung Icon
Dachneigung35°
Kniestock Icon
Kniestock1.25 m
Hauseigenschaften Icon
HauseigenschaftenGästezimmer
Hausdämmstoff Icon
HausdämmstoffMineralfaser (Glaswolle, Steinwolle)
Heizungsart Icon
HeizungsartLüftungsheizung
Pfeil nach unten linksWir schaffen Platz für Ihre Träume

Grundriss

no description
CLOU 145 Grundriss (EG)Wohnfläche EG: 84 m²
no description
CLOU 145 Grundriss (DG)Wohnfläche DG: 68 m²

Kataloge

RENSCH-HAUS: Hauskatalog
RENSCH-HAUS

RENSCH-HAUS: Hauskatalog


House and TreeParksHouse and PinMusterhausHouse on HandAnbieter