1. AnbieterArrow Icon
  2. RENSCH-HAUSArrow Icon
  3. CLOU 136 Doppelhaushälfte
Slide 1
Slide 2
no description
RENSCH-HAUSCLOU 136 Doppelhaushälfte
homeKlassische Familienhäuser
livingArea123 m²
energyStandardEffizienzhaus 40 EE
Preis anfragen
Katalog bestellen

CLOU 136 Doppelhaushälfte

Variante mit 3. Giebeln

Als Antwort auf steigende Grundstückspreise liegen Sie mit der Entscheidung für eine Doppelhaushälfte goldrichtig. Unsere Hauslinie CLOU präsentiert dazu gleich drei Vorschläge, gestaffelt nach Breite des Grundstücks. Die Abbildung zeigt CLOU 136 mit einer Hausbreite von 8 Metern.

Verschiedene Grundrissvarianten und Architekturelemente sind möglich. Abgebildete Anbauteile gegebenenfalls gegen Aufpreis. Sprechen Sie bitte mit Ihrem Fachberater.

Hausdaten

Hausart Icon
HausartDoppelhaus
Bauweise Icon
BauweiseHolz-Tafelbau
Baustil Icon
BaustilKlassische Familienhäuser
Fassade Icon
FassadePutz
Außenmaße Icon
Außenmaße8 m x 107.65 m
Wohnfläche Icon
Wohnfläche122.94 m²
Dachform Icon
DachformSattel-/Giebeldach
Energiestandard Icon
EnergiestandardEffizienzhaus 40 EE
Immobilientyp Icon
ImmobilientypPlanungsidee
Dachneigung Icon
Dachneigung40°
Kniestock Icon
Kniestock0.9 m
Hausdämmstoff Icon
HausdämmstoffMineralfaser (Glaswolle, Steinwolle)
Heizungsart Icon
HeizungsartLüftungsheizung
Pfeil nach unten linksWir schaffen Platz für Ihre Träume

Grundriss

no description
CLOU 136 Doppelhaushälfte Grundriss (EG)Wohnfläche EG: 65,84 m²
no description
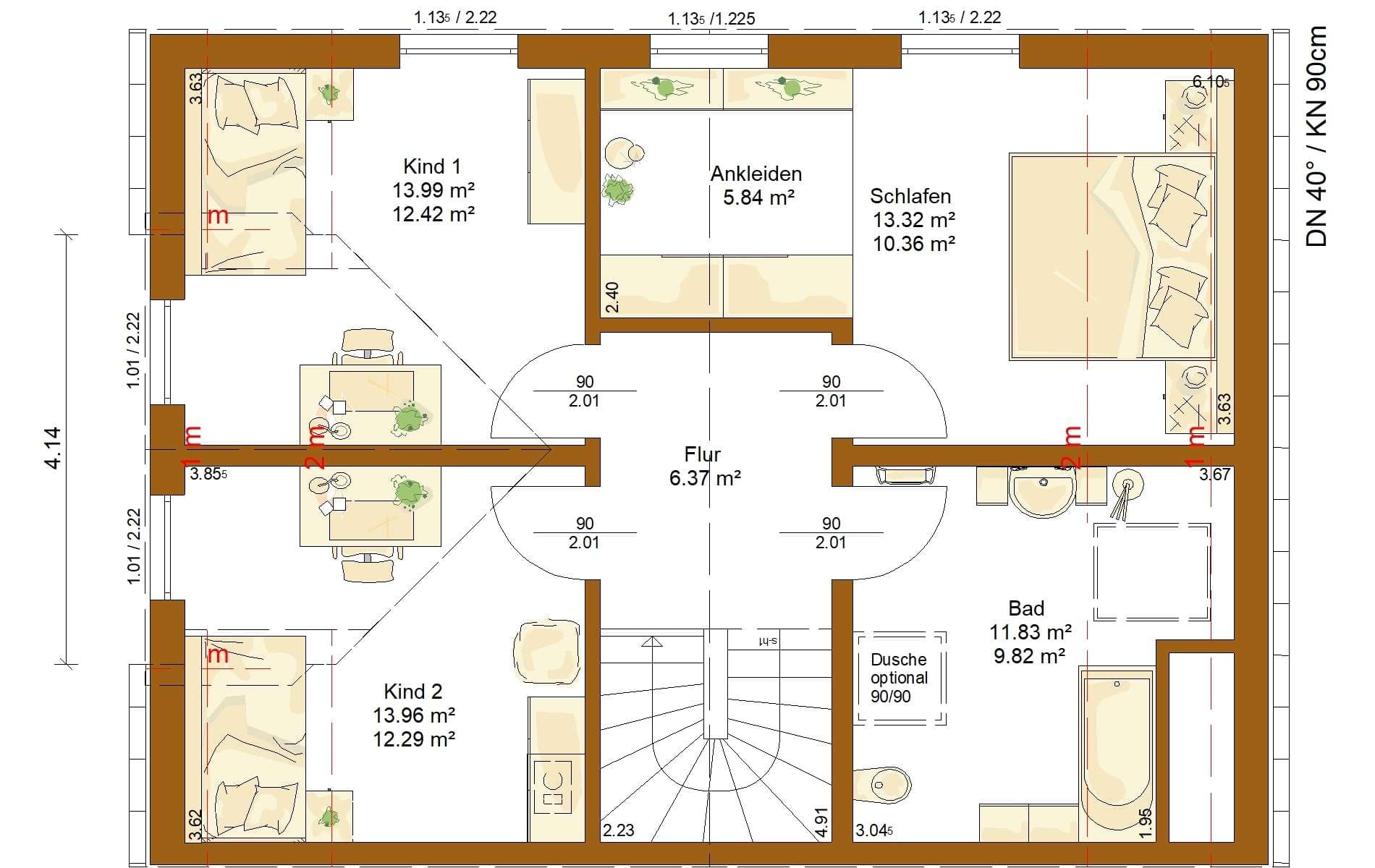
CLOU 136 Doppelhaushälfte Grundriss (DG)Wohnfläche DG: 57,1 m²

Kataloge

RENSCH-HAUS: Hauskatalog
RENSCH-HAUS

RENSCH-HAUS: Hauskatalog


House and TreeParksHouse and PinMusterhausHouse on HandAnbieter