1. AnbieterArrow Icon
  2. RENSCH-HAUSArrow Icon
  3. CLOU 134
Slide 1
Slide 2
Slide 3
Slide 4
no description
RENSCH-HAUSCLOU 134
homeKlassische Familienhäuser
livingArea145 m²
energyStandardEffizienzhaus 40 EE
Preis anfragen
Katalog bestellen

CLOU 134

Variante mit "Panoramacube-Plus", "Komforterker Gast" und Eingangsvordach auf Stützen

Die raffinierte Raumaufteilung gibt Ihnen viele gestalterische Möglichkeiten. Der Panorama-Cube Plus und der Komforterker Gast erweitern den Basisgrundriss und machen das äußere Erscheinungsbild des Hauses CLOU 134 zu einem Blickfang. Dafür sorgt auch das klassische Satteldach. Das Büro im Erdgeschoss kann ein charmanter Rückzugsort für Gäste sein. Der großzügige Ess- und Wohnbereich, die Kinderzimmer und das Elternschlafzimmer im Obergeschoss sind geradezu wie für eine vierköpfige Familie gemacht.

Verschiedene Grundrissvarianten und Architekturelemente sind möglich. Abgebildete Anbauteile gegebenenfalls gegen Aufpreis. Sprechen Sie bitte mit Ihrem Fachberater.

Hausdaten

Hausart Icon
HausartEinfamilienhaus
Bauweise Icon
BauweiseHolz-Tafelbau
Baustil Icon
BaustilKlassische Familienhäuser
Fassade Icon
FassadePutz
Außenmaße Icon
Außenmaße976 m x 876 m
Wohnfläche Icon
Wohnfläche145.19 m²
Dachform Icon
DachformSattel-/Giebeldach
Energiestandard Icon
EnergiestandardEffizienzhaus 40 EE
Immobilientyp Icon
ImmobilientypPlanungsidee
Dachneigung Icon
Dachneigung25°
Kniestock Icon
Kniestock2.25 m
Hausdämmstoff Icon
HausdämmstoffMineralfaser (Glaswolle, Steinwolle)
Heizungsart Icon
HeizungsartLüftungsheizung
Pfeil nach unten linksWir schaffen Platz für Ihre Träume

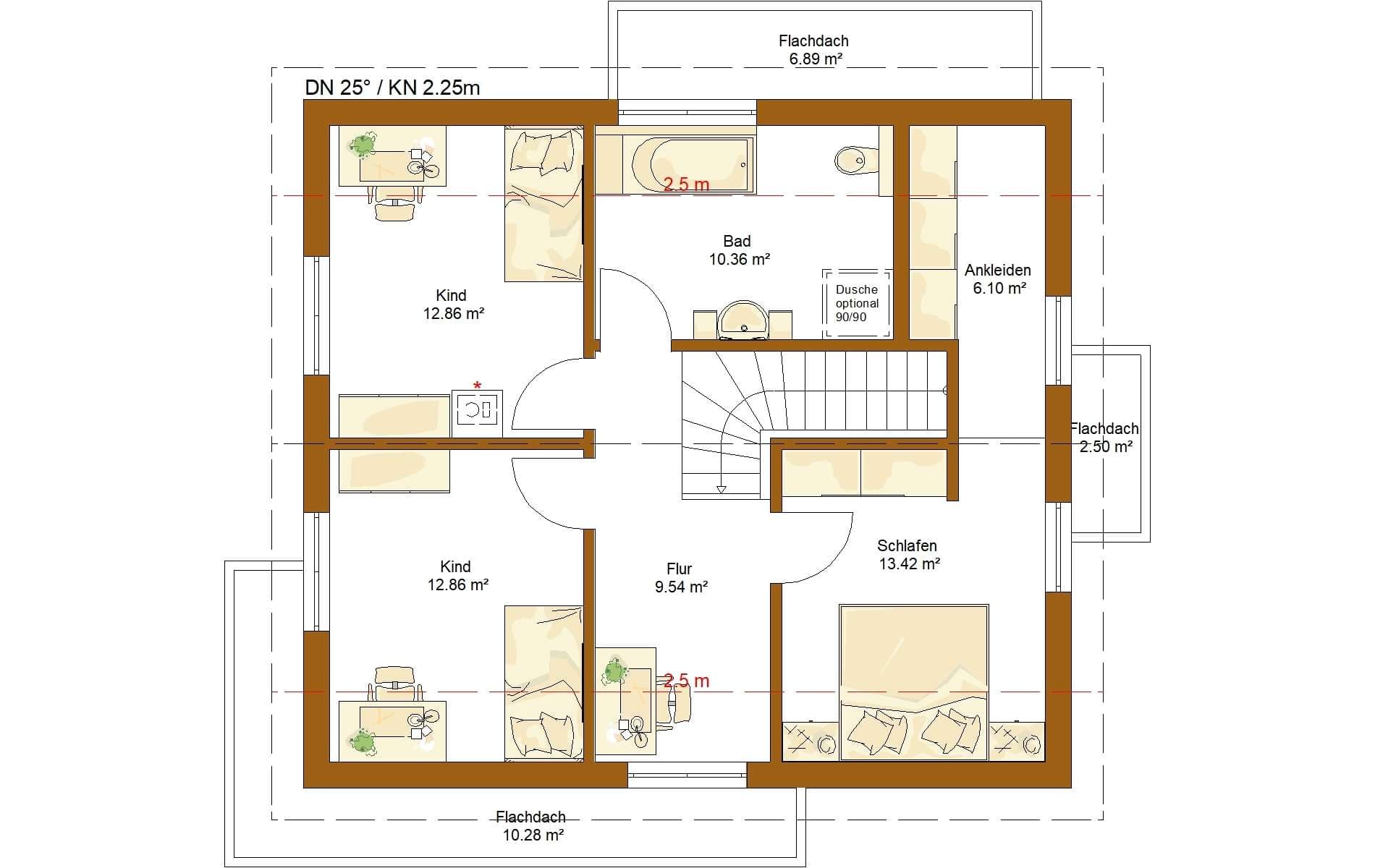
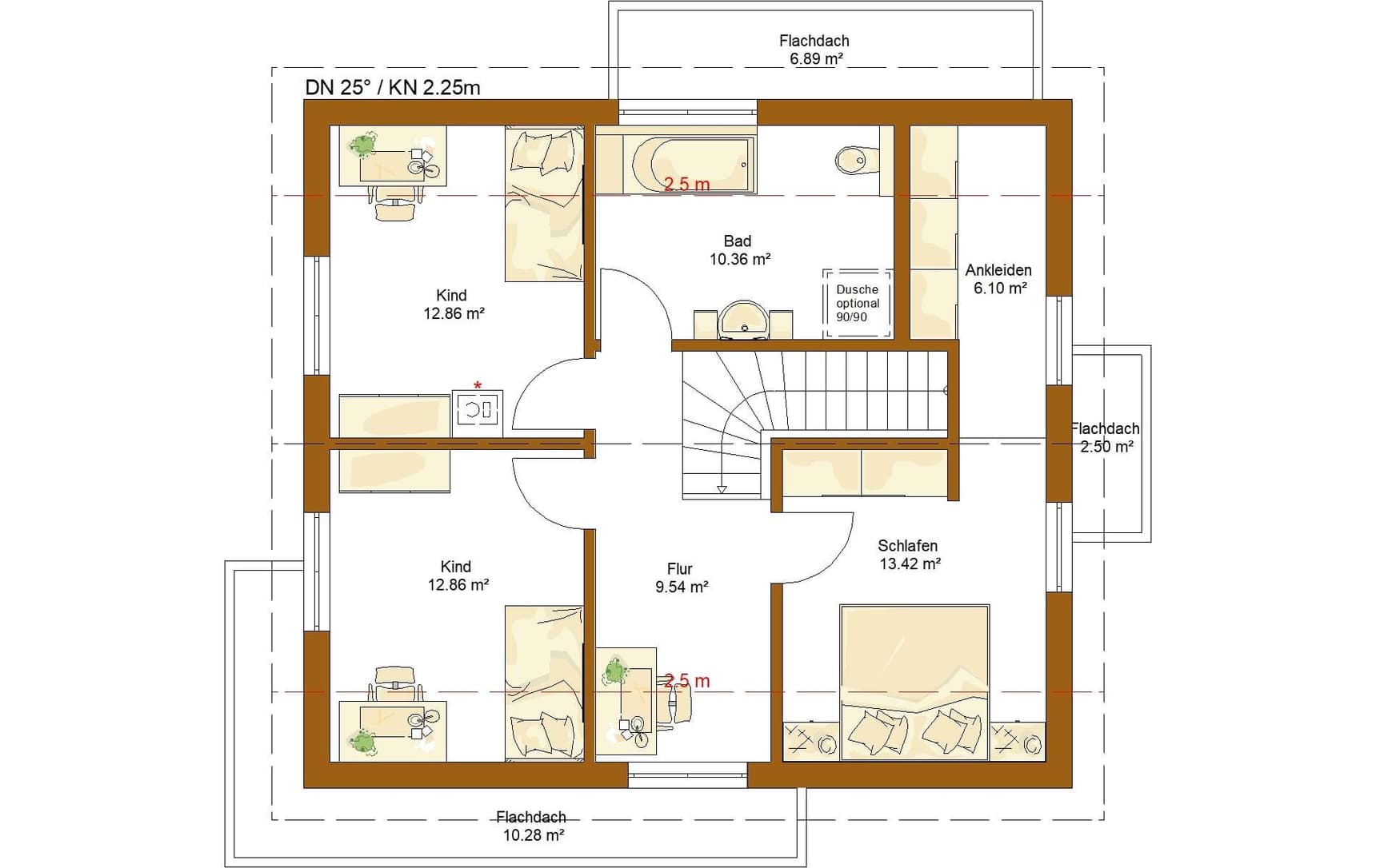
Grundriss

no description
CLOU 134 Grundriss (EG)Wohnfläche EG: 80,05 m²
no description
CLOU 134 Grundriss (DG)Wohnfläche DG: 65,14 m²

Kataloge

RENSCH-HAUS: Hauskatalog
RENSCH-HAUS

RENSCH-HAUS: Hauskatalog


House and TreeParksHouse and PinMusterhausHouse on HandAnbieter