1. AnbieterArrow Icon
  2. RENSCH-HAUSArrow Icon
  3. CLOU 100
Slide 1
Slide 2
Slide 3
Slide 4
no description
RENSCH-HAUSCLOU 100
homeKlassische Familienhäuser
livingArea96 m²
energyStandardEffizienzhaus 40 EE
Preis anfragen
Katalog bestellen

CLOU 100

Variante mit „Rechteckerker“ (optional gegen Aufpreis)

Unser Haus CLOU 100 ist das Kompakt-Haus für Singles und Paare. Ein ansprechendes, pragmatisches und vollständiges
Raumprogramm auf 100 m2 Gesamtfläche, optimal für schmale Grundstücke. Kochen, Essen und Wohnen in einem clever
konzipierten Raumkonzept. Das Innere wirkt hell und freundlich und konzentriert sich im Raumangebot auf das Wesentliche:

Schönes Wohnen. Ein sinnvoller Abstellraum befindet sich gleich unter der Treppe. Ein modernes Bad und ein großzügiges Schlafzimmer befinden sich im Dachgeschoss.

Verschiedene Grundrissvarianten und Architekturelemente sind möglich. Abgebildete Anbauteile gegebenenfalls gegen Aufpreis. Sprechen Sie bitte mit Ihrem Fachberater.

Hausdaten

Hausart Icon
HausartEinfamilienhaus
Bauweise Icon
BauweiseHolz-Tafelbau
Baustil Icon
BaustilKlassische Familienhäuser
Fassade Icon
FassadePutz
Außenmaße Icon
Außenmaße9.76 m x 6.76 m
Wohnfläche Icon
Wohnfläche95.68 m²
Dachform Icon
DachformSattel-/Giebeldach
Energiestandard Icon
EnergiestandardEffizienzhaus 40 EE
Immobilientyp Icon
ImmobilientypPlanungsidee
Dachneigung Icon
Dachneigung25°
Kniestock Icon
Kniestock2.25 m
Hauseigenschaften Icon
HauseigenschaftenGästezimmer
Hausdämmstoff Icon
HausdämmstoffMineralfaser (Glaswolle, Steinwolle)
Heizungsart Icon
HeizungsartLüftungsheizung
Pfeil nach unten linksWir schaffen Platz für Ihre Träume

Grundriss

no description
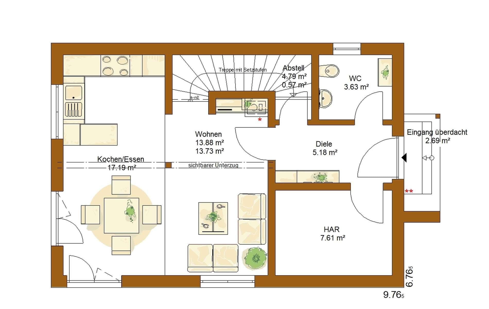
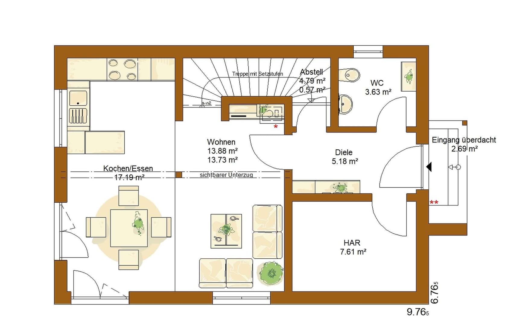
CLOU 100 Grundriss (EG)Wohnfläche EG: 47,91 m²
no description
CLOU 100 Grundriss (DG)Wohnfläche DG: 47,77 m²

Kataloge

RENSCH-HAUS: Hauskatalog
RENSCH-HAUS

RENSCH-HAUS: Hauskatalog


House and TreeParksHouse and PinMusterhausHouse on HandAnbieter