1. AnbieterArrow Icon
  2. RENSCH-HAUSArrow Icon
  3. Innovation R Aarhus
Slide 1
Slide 2
Slide 3
Slide 4
no description
RENSCH-HAUSInnovation R Aarhus
homeSchwedenhäuser
livingArea206 m²
Preis anfragen
Katalog bestellen

Innovation R Aarhus

Außergewöhnlich und modern.

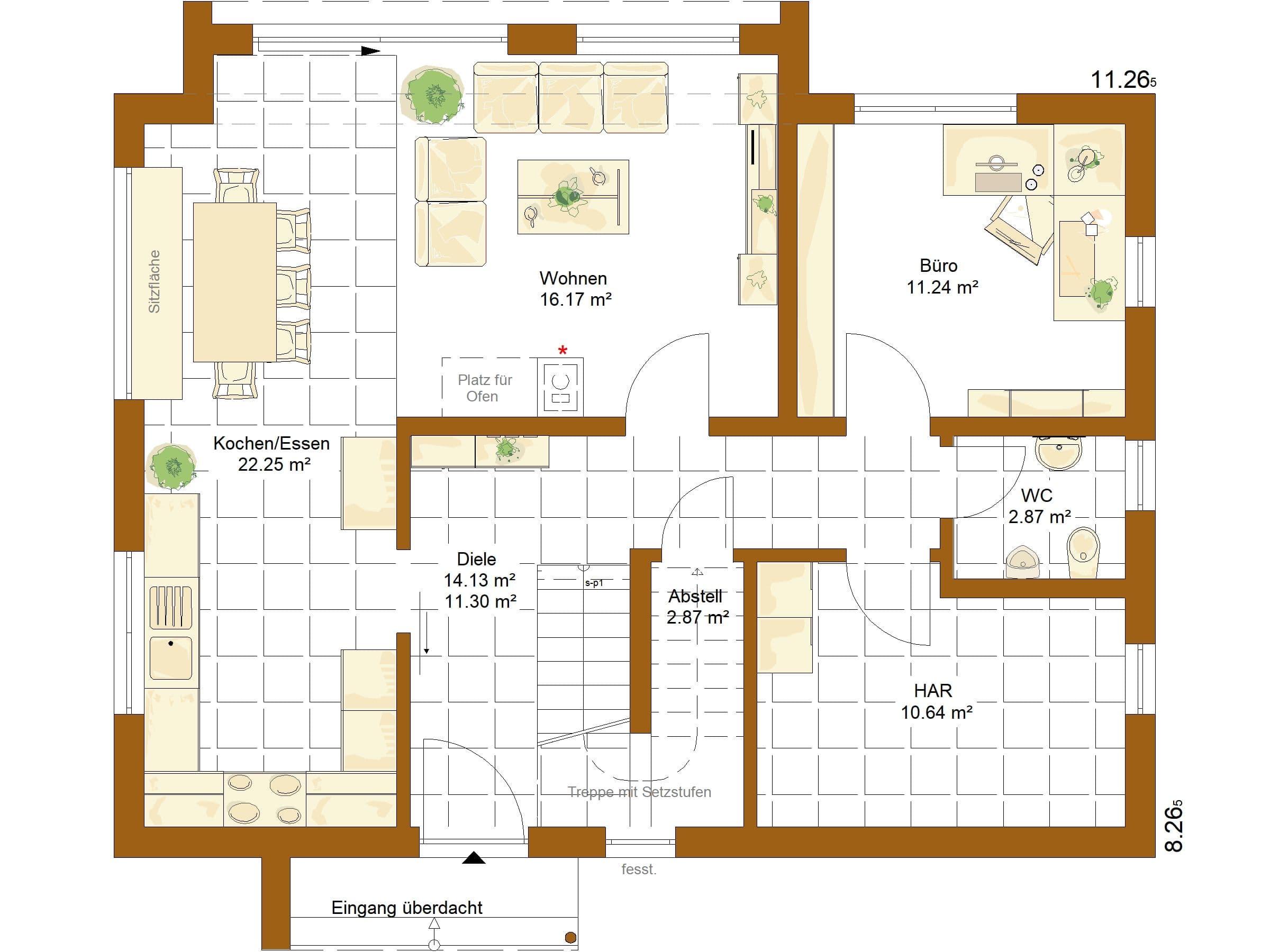
Sie haben eine große Familie? Vielleicht sogar 3 oder 4 Kinder? Sie suchen ein tolles und modernes zu Hause in dem sich alle wohlfühlen? Dann ist dieser Entwurf genau die richtige Wahl. Die wichtigsten Räume des täglichen Lebens wie „Kochen, Essen und Wohnen“ befinden sich im Erdgeschoss. Daneben noch ein Büro oder Gästezimmer, ganz wie Sie möchten. Eine Etage darüber das großzügige Familienbad, das Elternschlafzimmer mit eigener Ankleide und die ersten beiden Kinderzimmer. Ganz oben unter dem Dach geht es weiter, hier sind noch einmal zwei Kinderzimmer mit eigenem WC vorgesehen. Zusätzlich zu den ca. 175m² Wohnfläche gibt es reichlich Stauraum und das sogar ganz ohne Keller. Äußerlich bekennt sich das Haus klar zur traditionellen Satteldacharchitektur, doch durch das Zusammenspiel verschiedenartiger Fassadenapplikationen wirkt es trotzdem außergewöhnlich und modern.

Hausdaten

Hausart Icon
HausartEinfamilienhaus
Bauweise Icon
BauweiseHolz-Tafelbau
Anzahl Räume Icon
Anzahl Räume7
Baustil Icon
BaustilSchwedenhäuser
Außenmaße Icon
Außenmaße11.26 m x 8.26 m
Wohnfläche Icon
Wohnfläche206 m²
Dachform Icon
DachformSattel-/Giebeldach
Etagen Icon
Etagen3
Immobilientyp Icon
ImmobilientypPlanungsidee
Dachneigung Icon
Dachneigung40°
Kniestock Icon
Kniestock0.25 m
Pfeil nach unten linksWir schaffen Platz für Ihre Träume

Grundriss

01_Aarhus_EG.jpg
Innovation R Aarhus Grundriss (EG)Wohnfläche EG: 80 m²
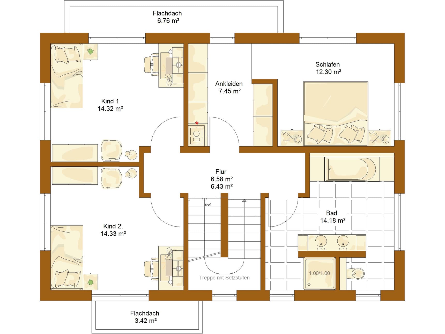
02_Aarhus_OG.jpg
Innovation R Aarhus Grundriss (OG)Wohnfläche OG: 69 m²
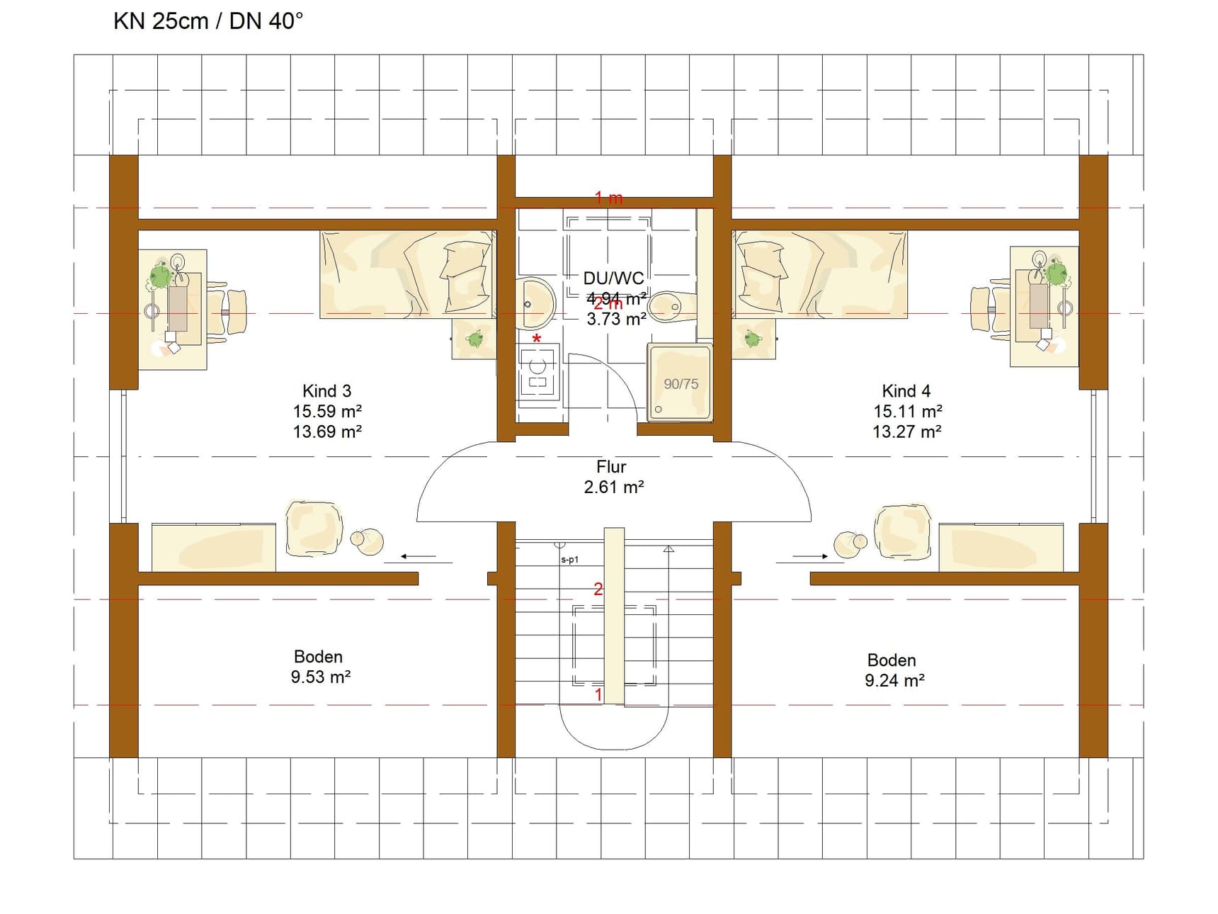
03_Aarhus_DG.jpg
Innovation R Aarhus Grundriss (DG)Wohnfläche DG: 57 m²

Kataloge

RENSCH-HAUS: Hauskatalog
RENSCH-HAUS

RENSCH-HAUS: Hauskatalog


House and TreeParksHouse and PinHäuser liveHouse on HandAnbieter