1. AnbieterArrow Icon
  2. Meisterstück-HAUSArrow Icon
  3. Nordic Fusion - Klinker & Holz
Slide 1
Slide 2
Slide 3
Slide 4
Slide 5
Slide 6
Logo_MH_2023_4c_quer.png
Meisterstück-HAUSNordic Fusion - Klinker & Holz
homeKlassische Familienhäuser
livingArea146 m²
energyStandardEffizienzhaus 55
Preis anfragen
Katalog bestellen

Nordic Fusion - Klinker & Holz

Zeitlose Architektur trifft auf nordisches Flair

Modernes, zeitloses Architektur-Design trifft auf nordische Klarheit und langlebige Funktionalität. Nordic Fusion von Meisterstück-HAUS vereint nachhaltigen Holztafelbau mit schützender Klinkerfassade. Das Einfamilienhaus mit insgesamt ca. 146 qm Wohnfläche aus zwei Geschossen besticht durch seine klare Linienführung und eine charakteristische Fassadengestaltung

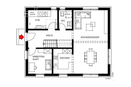
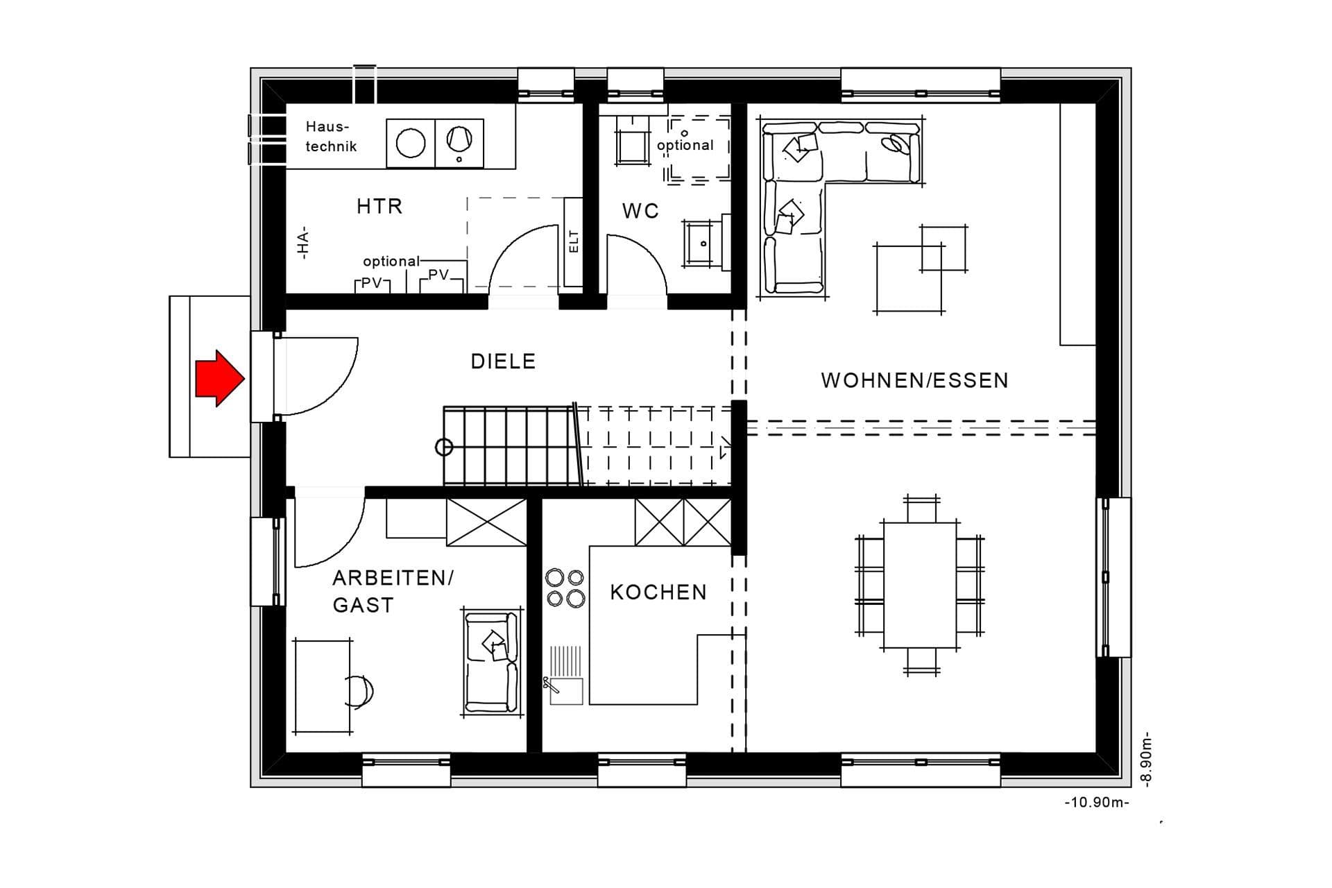
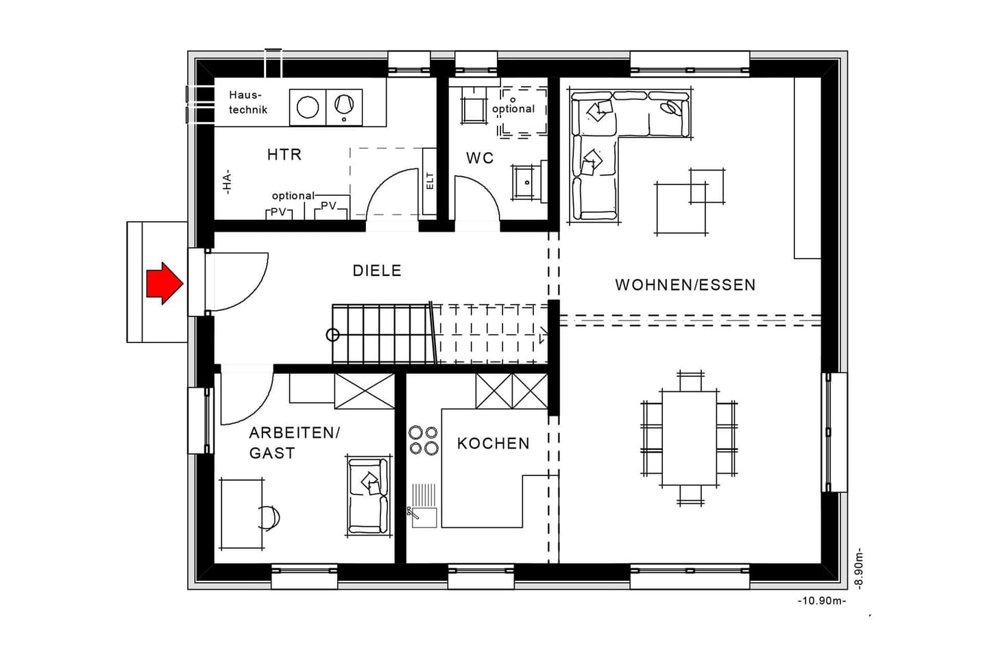
Das ca. 74 qm große Erdgeschoss des Hauses empfängt seine Bewohner in einer hellen Diele, die direkt im großzügigen, lichtdurchfluteten Lebensbereich mündet. Hier gehen Küche, Ess- und Wohnbereich harmonisch ineinander über. Großflächige Fensterfronten sorgen für eine freundliche Atmosphäre und ermöglichen einen fließenden Übergang zur Terrasse und in den Garten. Ergänzt wird das Raumangebot im Erdgeschoss durch ein Gäste-WC, den Haustechnikraum sowie ein flexibel nutzbares Zimmer, das sich perfekt als Homeoffice, Gästezimmer oder Hobbyraum eignet.

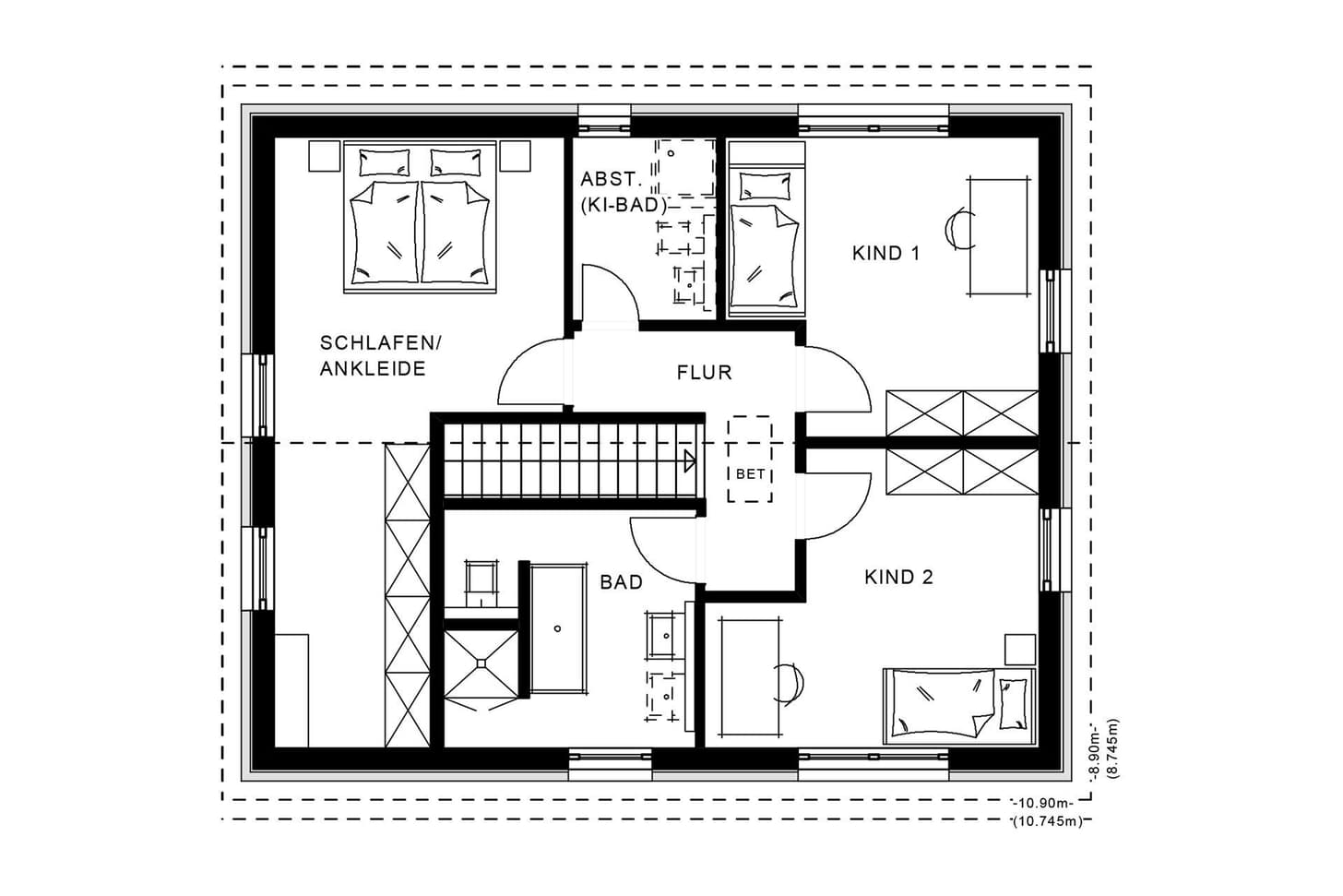
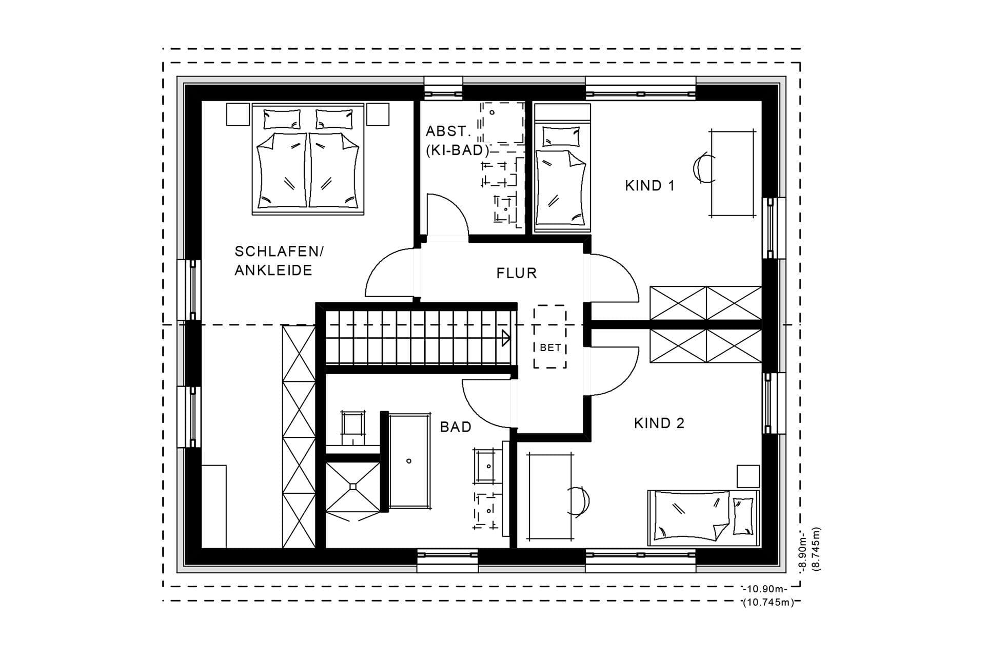
Das Obergeschoss ist mit ca. 72 qm Wohnfläche ganz auf die Bedürfnisse von Familien ausgerichtet: Zwei gleich große Kinderzimmer bieten Raum für individuelle Entfaltung und Geborgenheit, während das Elternschlafzimmer mit integrierter Ankleide viel Platz und Komfort bietet. Ein großzügiges, modern ausgestattetes Familienbad rundet das Angebot ab und sorgt für höchsten Wohnkomfort im Alltag.

Ein besonderes Highlight des Nordic Fusion ist das charakteristische Fassadendesign: Das Erdgeschoss ist rundum mit robustem Klinker verkleidet, der nicht nur langlebig und pflegeleicht ist, sondern auch optimalen Witterungsschutz bietet. Das Obergeschoss präsentiert sich hochwertig verputzt bis unter die Dachkante und verleiht dem Haus eine moderne, elegante Optik. Diese Kombination sorgt für eine klare Gliederung der Geschosse und unterstreicht die zeitgemäße Architektur.

Sichern Sie sich das Einfamilienhaus "Nordic Fusion" jetzt als Aktionshaus:

  • modernes Einfamilienhaus mit Teilklinker-Fassade und ca. 146 qm Wohnfläche
  • EG: offener Wohn-/Essbereich, Küche, Arbeits-/Gästezimmer und Gäste-WC
  • OG: Schlafzimmer mit Ankleide, 2 Kinder-bzw. Gäste-/Arbeitszimmer, Familien-Bad mit Dusche und Badewanne, Abstellraum (optional als Kinder-Bad)
  • mit Luft-Luft-Wärmepumpe inkl. kontrollierter Be-/Entlüftung mit Wärmerückgewinnung
  • inkl. Vorbereitung für spätere Photovoltaik-Nutzung
  • nachhaltig gebaut mit ökologischen Baustoffen

ab 396.826,– Euro*

*gemäß Baubeschreibung 2025; ab Oberkante Bodenplatte, ohne Malerarbeiten, Teppichboden und Innentüren; weitere optionale Einsparpotenziale bzw. diverse Ergänzungen (gegen Aufpreis) möglich. Angebot befristet bis 31.10.25.

Hausdaten

Hausart Icon
HausartAktionshaus
Bauweise Icon
BauweiseHolz-Tafelbau
Anzahl Räume Icon
Anzahl Räume5
Baustil Icon
BaustilKlassische Familienhäuser
Fassade Icon
FassadePutz, Klinker
Außenmaße Icon
Außenmaße10.9 m x 8.9 m
Wohnfläche Icon
Wohnfläche146 m²
Dachform Icon
DachformSattel-/Giebeldach
Etagen Icon
Etagen2
Energiestandard Icon
EnergiestandardEffizienzhaus 55
Immobilientyp Icon
ImmobilientypPlanungsidee
Hauseigenschaften Icon
HauseigenschaftenViel Glas, Gästezimmer
Hausdämmstoff Icon
HausdämmstoffMineralfaser (Glaswolle, Steinwolle)
Heizungsart Icon
HeizungsartLüftungsheizung

Kataloge

Meisterstück-HAUS: Gewerbe- und Kommunalbau
Meisterstück-HAUS

Meisterstück-HAUS: Gewerbe- und Kommunalbau


Meisterstück-HAUS: Modernes Fachwerk
Meisterstück-HAUS

Meisterstück-HAUS: Modernes Fachwerk


Meisterstück-HAUS: Ästhetik
Meisterstück-HAUS

Meisterstück-HAUS: Ästhetik


Meisterstück-HAUS: Rendezvous
Meisterstück-HAUS

Meisterstück-HAUS: Rendezvous


House and TreeParksHouse and PinMusterhausHouse on HandAnbieter