1. AnbieterArrow Icon
  2. Meisterstück-HAUSArrow Icon
  3. Musterhaus ÄSTHETIK in Hannover
Slide 1
Location Icon
Slide 2
Location Icon
Slide 3
Location Icon
Slide 4
Location Icon
Slide 5
Location Icon
Slide 6
Location Icon
Slide 7
Location Icon
Slide 8
Location Icon
Slide 9
Location Icon
Slide 10
Location Icon
Slide 11
Location Icon
Slide 12
Location Icon
Slide 13
Location Icon
Slide 14
Location Icon
Slide 15
Location Icon
Logo_MH_2023_4c_quer.png
Meisterstück-HAUSMusterhaus ÄSTHETIK in Hannover
homeFachwerkhäuser
livingArea210 m²
energyStandardEffizienzhaus 55
Preis anfragen

Musterhaus ÄSTHETIK in Hannover

Ein Wohntraum aus Holz und Glas.

Dieses moderne Fachwerkhaus aus der Architekturlinie "ÄSTHETIK" zeigt transparente und geradlinige Architektur in Holz und Glas. Auf ca. 210 m² DIN-Wohnfläche haben die Planer alles untergebracht, was ein luxuriöses Eigenheim ausmacht.

Ein großzügiger Entree-Bereich mit geradläufiger und freistehender Treppe empfängt den Besucher in einem ästhetischen Wohnkonzept: Der offen gestaltete Lebensraum (Küche, Essen, Wohnen) besticht durch sein besonderes Ambiente. Große Panoramafenster gewähren von allen Stellen aus den freien Blick in den Garten. Diese Großzügigkeit setzt sich im separaten Arbeitszimmer fort.Im Ruhebereich des Dachgeschosses bekommen die zwei Kinderzimmer nicht nur einen eigenen Balkon, sondern auch ein separates Kinder-Bad. Die andere Haushälfte gehört den Eltern, die nach dem Saunabesuch direkt auf den mit Schlafzimmer und Bad verbundenen Balkon hinaus ins Freie treten können. Die Badelandschaft erfüllt mit der Halbrund-Wanne und einer begehbaren Dusche alle Anforderungen an den privaten Wellness- Bereich. Eine integrierte, geräumige Ankleide komplettiert den Eltern-Trakt, der als praktischer Rundgang konzipiert ist.

Auch technisch ist dieses Meisterstück-HAUS wegweisend: Alle Haupt-Baustoffe sind regenerative Naturprodukte und ermöglichen eine extrem hohe Wärmedämmung der Gebäudehülle. Die kontrollierte Lüftungsanlage mit Wärmerückgewinnung senkt nicht nur den Energiebedarf des Hauses, es entsteht zudem allergikergerechte Raumluftqualität für gesundes Wohnen.

Hausdaten

Hausart Icon
HausartEinfamilienhaus
Bauweise Icon
BauweiseHolz-Skelettbauweise
Anzahl Räume Icon
Anzahl Räume5
Baustil Icon
BaustilFachwerkhäuser
Fassade Icon
FassadePutz, Holz, Glas
Außenmaße Icon
Außenmaße12.18 m x 11.96 m
Wohnfläche Icon
Wohnfläche210 m²
Dachform Icon
DachformSattel-/Giebeldach
Etagen Icon
Etagen1.5
Energiestandard Icon
EnergiestandardEffizienzhaus 55
Immobilientyp Icon
ImmobilientypMusterhaus
Dachneigung Icon
Dachneigung30°
Kniestock Icon
Kniestock1.38 m
Hauseigenschaften Icon
HauseigenschaftenGästezimmer, Balkon, Viel Glas
Hausdämmstoff Icon
HausdämmstoffMineralfaser (Glaswolle, Steinwolle)
Heizungsart Icon
HeizungsartWärmepumpe (Luft, Wasser, oder beides)
Pfeil nach unten linksWir schaffen Platz für Ihre Träume

Grundriss

no description
Musterhaus ÄSTHETIK in Hannover Grundriss (EG)Wohnfläche EG: 121,41 m²
no description
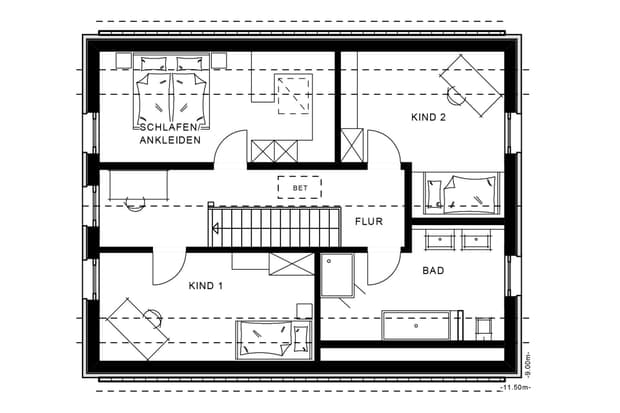
Musterhaus ÄSTHETIK in Hannover Grundriss (DG)Wohnfläche DG: 88,61 m²

Öffnungszeiten

Montag:Geschlossen
Dienstag:Geschlossen
Mittwoch:09:00 - 16:00 Uhr
Donnerstag:09:00 - 16:00 Uhr
Freitag:09:00 - 16:00 Uhr
Samstag:09:00 - 16:00 Uhr
Sonntag:09:00 - 16:00 Uhr

(öffnet Mittwoch um 13:00 Uhr)

Christi Himmelfahrt
10:00 - 17:00 Uhr

Adresse

Münchner Str. 25
Langenhagen 30855

Anfahrt planen

Beratungstermin

Fertighaus Team in Langenhagen

Musterhaus ÄSTHETIK in Hannover

360°Rundgang starten
no description

Unser Team vor Ort

Renatus HenschenFachberater*in bei Meisterstück-HAUS
no description
Wir beraten Sie gerne!Arrow Icon
Uwe PetrikFachberater*in bei Meisterstück-HAUS
no description
Beata-J. WaszczakFachberater*in bei Meisterstück-HAUS
no description
Meisterstück-HAUS Team Hannover-Langenhagen
Default AvatarDefault Avatar
House and TreeParksHouse and PinMusterhausHouse on HandAnbieter