1. AnbieterArrow Icon
  2. Meisterstück-HAUSArrow Icon
  3. KUBUS Familienhaus
Slide 1
Slide 2
Slide 3
Slide 4
Slide 5
Slide 6
Slide 7
Slide 8
Slide 9
Slide 10
Slide 11
Slide 12
Logo_MH_2023_4c_quer.png
Meisterstück-HAUSKUBUS Familienhaus
homeKlassische Familienhäuser
livingArea186 m²
energyStandardEffizienzhaus 55
Preis anfragen
Katalog bestellen

KUBUS Familienhaus

Komfortables Zuhause mit optischen Hightlights

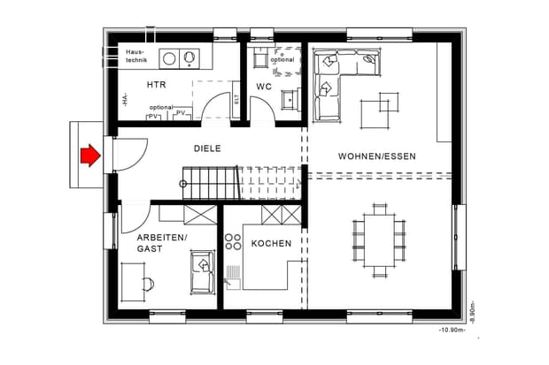
Das im Design der Architekturlinie KUBUS errichtete Effizienzhaus mit Satteldach und partieller Holzverkleidung wurde mit Teilunterkellerung für eine vierköpfige Bauherren-Familie von Meisterstück-HAUS geplant.

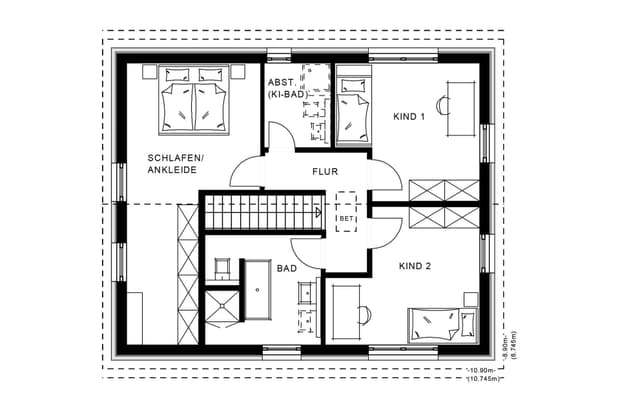
Auf ca. 100 qm finden sich im Erdgeschoss des Hauses neben dem offenen Lebensbereich noch ein Gäste- bzw. Arbeitszimmer sowie ein Gäste WC und eine Speisekammer, die direkt an die Küche angegliedert ist. Optisches Highlight und Blickfang im Erdgeschoss ist der als Raumteiler zwischen Ess- und Wohnbereich konzipierte Kamin. Der nach oben offene Luftraum zur Galerie über dem Lebensbereich wird von der offenen Balkenlage dominiert. Für jede Menge Tageslicht sorgen bodentiefe Fenster. Im rund 86 qm großen Dachgeschoss befinden sich die Rückzugsräume der Familie: ein Schlafzimmer mit begehbarer Ankleide und Durchgang zum En-Suite-Bad der Eltern. Für die Kinder stehen zwei gleich große Zimmer sowie ein eigenes Kinderbad zur Verfügung.

Technisch setzt das Effizienzhaus 55 auf Luft-Wasser-Wärmepumpe inkl. Lüftungsanlage mit Wärmerückgewinnung. Die Fußbodenheizung bringt behagliche Wärme ins Haus.

Hausdaten

Hausart Icon
HausartEinfamilienhaus
Bauweise Icon
BauweiseHolz-Tafelbau
Anzahl Räume Icon
Anzahl Räume6
Baustil Icon
BaustilKlassische Familienhäuser
Außenmaße Icon
Außenmaße14 m x 10 m
Wohnfläche Icon
Wohnfläche186 m²
Dachform Icon
DachformSattel-/Giebeldach
Etagen Icon
Etagen2
Energiestandard Icon
EnergiestandardEffizienzhaus 55
Immobilientyp Icon
ImmobilientypKundenhaus
Dachneigung Icon
Dachneigung20°
Kniestock Icon
Kniestock2.32 m
Hauseigenschaften Icon
HauseigenschaftenGästezimmer, Keller, Erker, Integriertes Carport, Viel Glas
Hausdämmstoff Icon
HausdämmstoffMineralfaser (Glaswolle, Steinwolle)
Heizungsart Icon
HeizungsartWärmepumpe (Luft, Wasser, oder beides)

Unser Team vor Ort

Meisterstück-HAUS ZentraleFachberater*in bei Meisterstück-HAUS
no description
Wir beraten Sie gerne!Arrow Icon
Simone SewaldFachberater*in bei Meisterstück-HAUS
no description

Kataloge

Meisterstück-HAUS: Gewerbe- und Kommunalbau
Meisterstück-HAUS

Meisterstück-HAUS: Gewerbe- und Kommunalbau


Meisterstück-HAUS: Modernes Fachwerk
Meisterstück-HAUS

Meisterstück-HAUS: Modernes Fachwerk


Meisterstück-HAUS: Ästhetik
Meisterstück-HAUS

Meisterstück-HAUS: Ästhetik


Meisterstück-HAUS: Rendezvous
Meisterstück-HAUS

Meisterstück-HAUS: Rendezvous


House and TreeParksHouse and PinHäuser liveHouse on HandAnbieter