1. AnbieterArrow Icon
  2. Meisterstück-HAUSArrow Icon
  3. Cape Dutch - Klinker & Holz
Slide 1
Slide 2
Slide 3
Slide 4
Slide 5
Slide 6
Slide 7
Logo_MH_2023_4c_quer.png
Meisterstück-HAUSCape Dutch - Klinker & Holz
homeKlassische Familienhäuser
livingArea148 m²
energyStandardEffizienzhaus 55
Preis anfragen
Katalog bestellen

Cape Dutch - Klinker & Holz

Zeitlose Eleganz trifft nachhaltigen Wohnkomfort

Der Architekturentwurf „Cape Dutch - Klinker & Holz“ von Meisterstück-HAUS verbindet traditionellen Charme mit moderner Ästhetik. Die markante Klinkerfassade und der erhöhte „Cape Dutch“-Giebel sorgen für eine außergewöhnliche Optik und zeichnen das Haus durch Langlebigkeit, Witterungsbeständigkeit und zeitlose Silhouette aus. Ein ideales Zuhause für eine drei- bis vierköpfige Familie.

Die zweischalige Außenwand schützt effektiv vor Wettereinflüssen und sorgt für exzellenten Hitzeschutz sowie Schallschutz. Die optimal isolierte Holz-Fertigbauweise sorgt für ein gesundes Raumklima durch natürliche Regulierung der Luftfeuchtigkeit. In Kombination mit modernster Heiztechnik ermöglicht sie zudem niedrige Heizkosten sowie eine hohe Energieeffizienz. Optional kann eine Photovoltaikanlage auf dem Satteldach installiert werden, um nachhaltig Energie zu erzeugen.

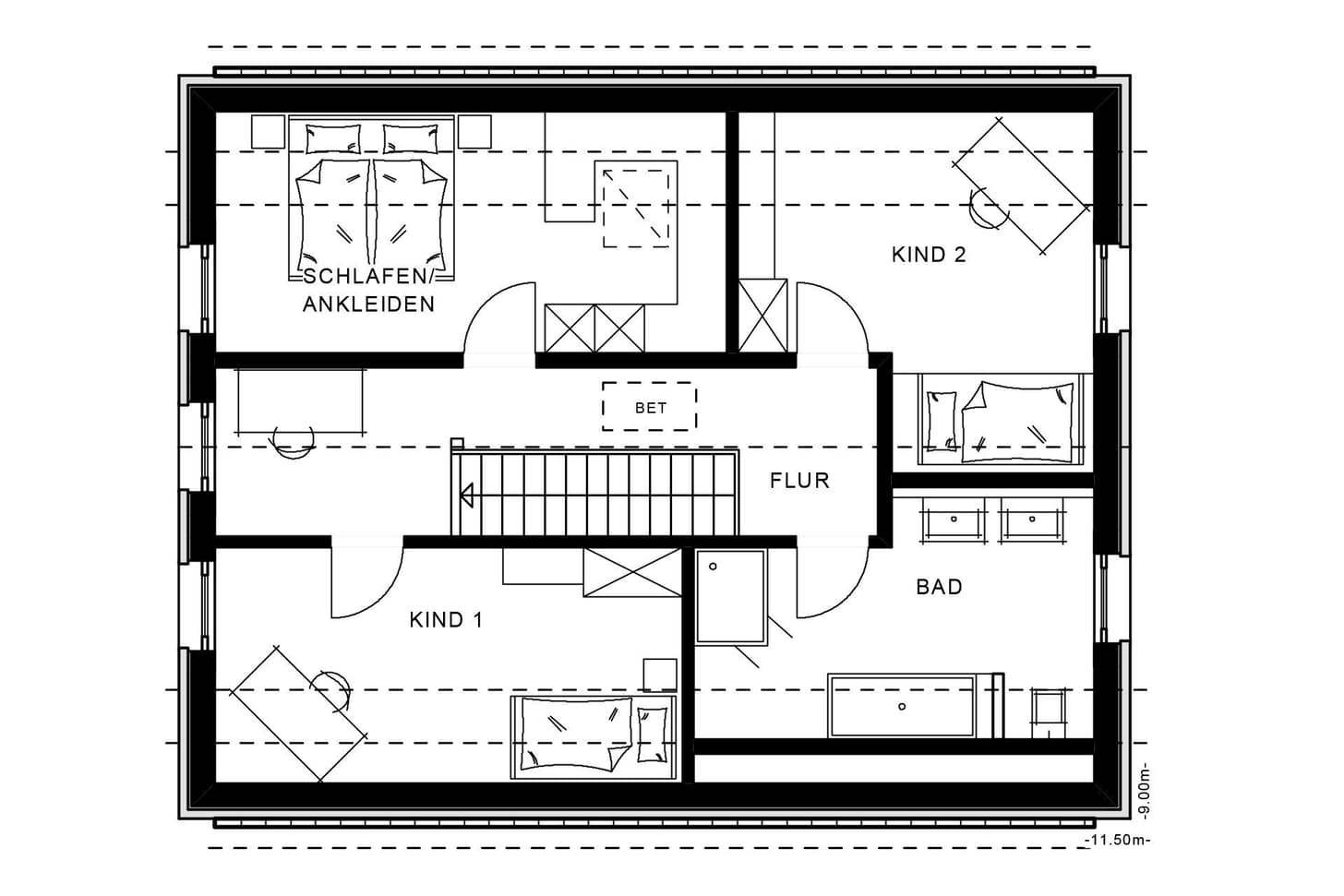
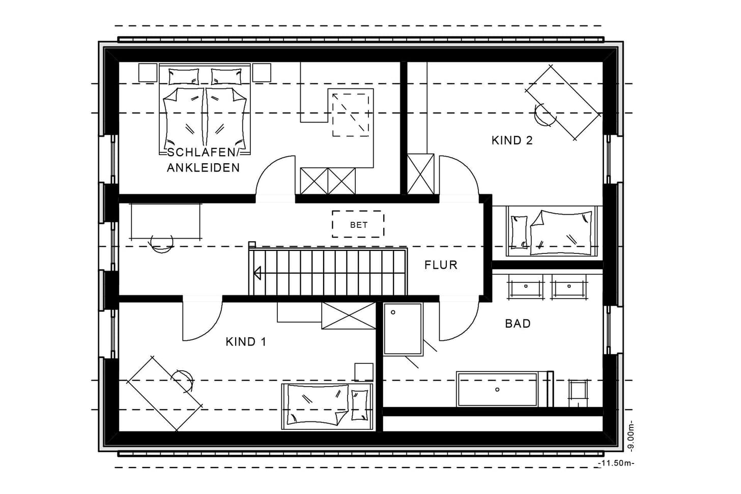
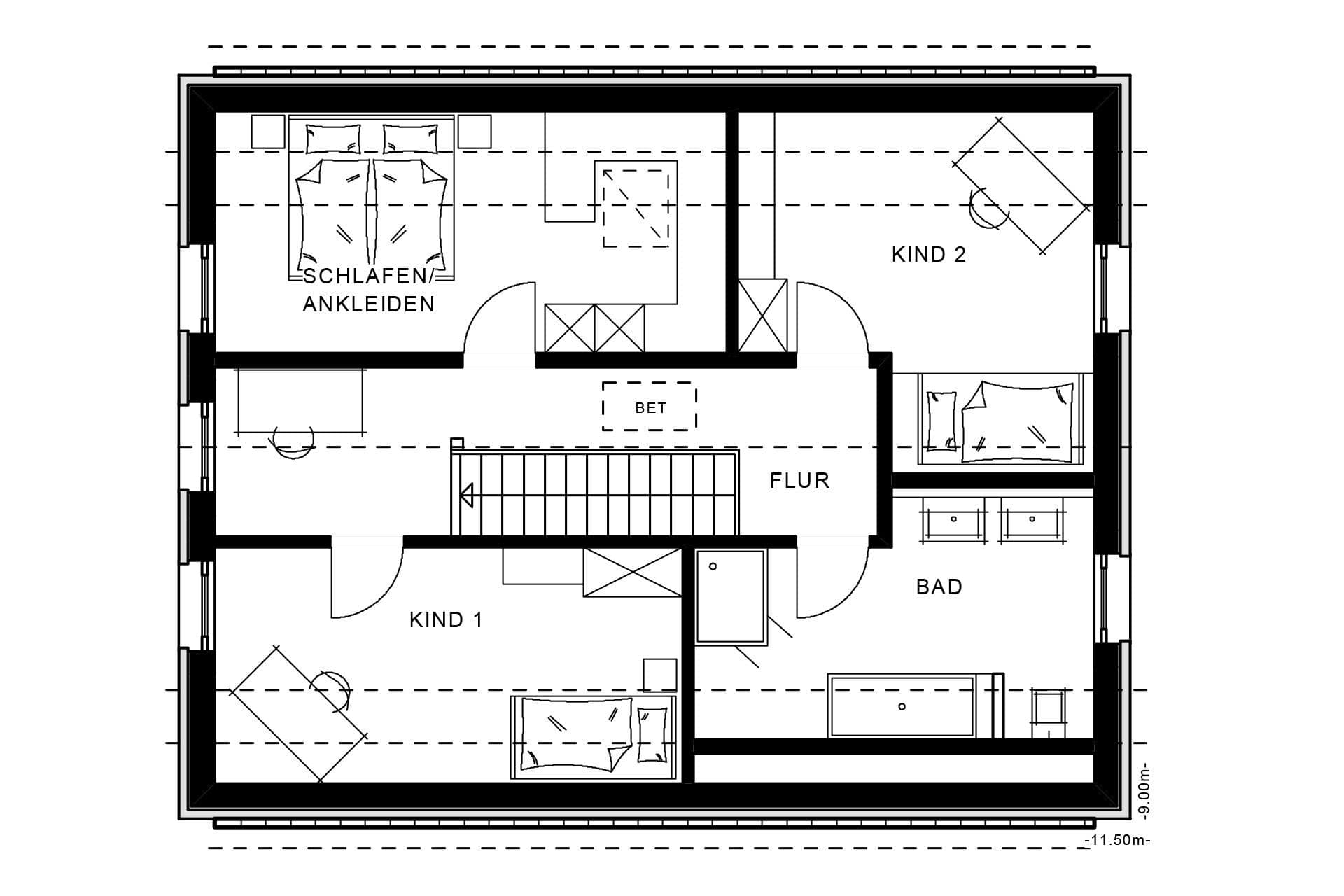
Im Inneren überzeugt das Haus mit einem durchdachten, komfortablen Raumkonzept über zwei Ebenen. Im Erdgeschoss (ca. 81 qm) finden sich ein offener Wohn- und Essbereich, eine großzügige Küche, ein flexibles Arbeits-/Gästezimmer sowie ein Gäste-WC und einen praktischen Abstellraum unter der Treppe. Das Dachgeschoss (ca. 67 qm) bietet privaten Rückzugsraum mit einem geräumigen Schlafzimmer mit Ankleide, zwei hellen Kinder- oder Hobbyzimmern, einem komfortablen Bad und dem zentralen Flur. Der erhöhte Kniestock von 1,20 m und optionale Dachflächenfenster sorgen für zusätzliche Nutzfläche und viel Licht.

Mit dem Haus „Cape Dutch - Klinker & Holz“ investieren Sie in ein nachhaltiges, funktionales und stilvolles Zuhause, das höchste Ansprüche an Ästhetik, Komfort und Effizienz erfüllt. Überzeugen Sie sich selbst von den Vorteilen dieses Meisterstücks – wir beraten Sie gerne bei der Realisierung Ihres Traumhauses. 

Sichern Sie sich das Einfamilienhaus "Cape Dutch" jetzt als Aktionshaus:

  • modernes Einfamilienhaus mit Vollklinker-Fassade und ca. 148 qm Wohnfläche
  • EG: offener Wohn-/Essbereich, Küche, Arbeits-/Gästezimmer und Gäste-WC
  • DG: Schlafzimmer mit Ankleide, 2 Kinder-bzw. Gäste-/Arbeitszimmer und Familien-Bad mit Dusche und Badewanne
  • mit Luft-Luft-Wärmepumpe inkl. kontrollierter Be-/Entlüftung mit Wärmerückgewinnung
  • inkl. Vorbereitung für spätere Photovoltaik-Nutzung
  • nachhaltig gebaut mit ökologischen Baustoffen

ab 421.210,– Euro*

*gemäß Baubeschreibung 2025; ab Oberkante Bodenplatte, ohne Malerarbeiten, Teppichboden und Innentüren; weitere optionale Einsparpotenziale bzw. diverse Ergänzungen (gegen Aufpreis) möglich. Angebot befristet bis 30.06.26.

Hausdaten

Hausart Icon
HausartAktionshaus
Bauweise Icon
BauweiseHolz-Tafelbau
Anzahl Räume Icon
Anzahl Räume5
Baustil Icon
BaustilKlassische Familienhäuser
Fassade Icon
FassadeKlinker
Außenmaße Icon
Außenmaße11.5 m x 9 m
Wohnfläche Icon
Wohnfläche148 m²
Dachform Icon
DachformSattel-/Giebeldach
Etagen Icon
Etagen1.5
Energiestandard Icon
EnergiestandardEffizienzhaus 55
Immobilientyp Icon
ImmobilientypPlanungsidee
Hauseigenschaften Icon
HauseigenschaftenGästezimmer, Dritter Giebel
Hausdämmstoff Icon
HausdämmstoffMineralfaser (Glaswolle, Steinwolle)
Heizungsart Icon
HeizungsartWärmepumpe (Luft, Wasser, oder beides)

Kataloge

Meisterstück-HAUS: Gewerbe- und Kommunalbau
Meisterstück-HAUS

Meisterstück-HAUS: Gewerbe- und Kommunalbau


Meisterstück-HAUS: Modernes Fachwerk
Meisterstück-HAUS

Meisterstück-HAUS: Modernes Fachwerk


Meisterstück-HAUS: Ästhetik
Meisterstück-HAUS

Meisterstück-HAUS: Ästhetik


Meisterstück-HAUS: Rendezvous
Meisterstück-HAUS

Meisterstück-HAUS: Rendezvous


House and TreeParksHouse and PinMusterhausHouse on HandAnbieter