1. AnbieterArrow Icon
  2. massa hausArrow Icon
  3. LifeStyle 17.01 S
Slide 1
Location Icon
Slide 2
Location Icon
Slide 3
Location Icon
Slide 4
Location Icon
massahaus--Wortbildmarke.png
massa hausLifeStyle 17.01 S
homeStadtvillen
livingArea179 m²
energyStandardEffizienzhaus 55
Preis anfragen

LifeStyle 17.01 S

Herzlich willkommen in Ihren massa-Musterhäusern in Sievershagen b. Rostock!

Sie träumen vom eigenen Haus? Dann gehen Sie jetzt den ersten Schritt in Richtung Eigenheim: Informieren Sie sich unverbindlich und kostenlos direkt vor Ort in einem modernen massa-Ausbauhaus – in Ihren massa-Musterhäusern in Sievershagen! Wir beraten Sie gerne in allen Fragen rund ums Bauen und freuen uns auf Ihren Besuch!

Hausdaten

Hausart Icon
HausartDoppelhaus
Bauweise Icon
BauweiseHolz-Tafelbau
Anzahl Räume Icon
Anzahl Räume5
Baustil Icon
BaustilStadtvillen
Außenmaße Icon
Außenmaße10.04 m x 11.84 m
Wohnfläche Icon
Wohnfläche179.14 m²
Dachform Icon
DachformSattel-/Giebeldach
Etagen Icon
Etagen1.5
Energiestandard Icon
EnergiestandardEffizienzhaus 55
Immobilientyp Icon
ImmobilientypMusterhaus
Dachneigung Icon
Dachneigung38°
Kniestock Icon
Kniestock0.26 m
Heizungsart Icon
HeizungsartWärmepumpe (Luft, Wasser, oder beides)
Pfeil nach unten linksWir schaffen Platz für Ihre Träume

Grundriss

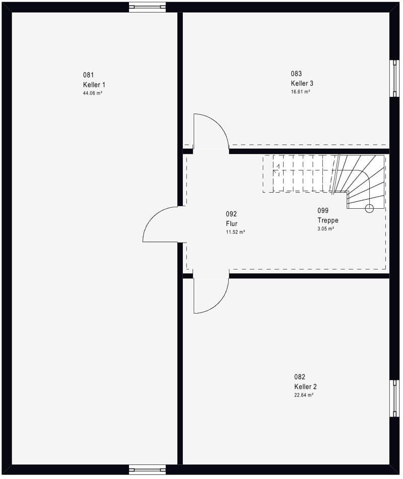
MA23_LifeS_17_01_S_KG_01_01_P.jpg
LifeStyle 17.01 S Grundriss (Keller)
MA23_LifeS_17_01_S_EG_01_01.jpg
LifeStyle 17.01 S Grundriss (EG)Wohnfläche EG: 99,65 m²
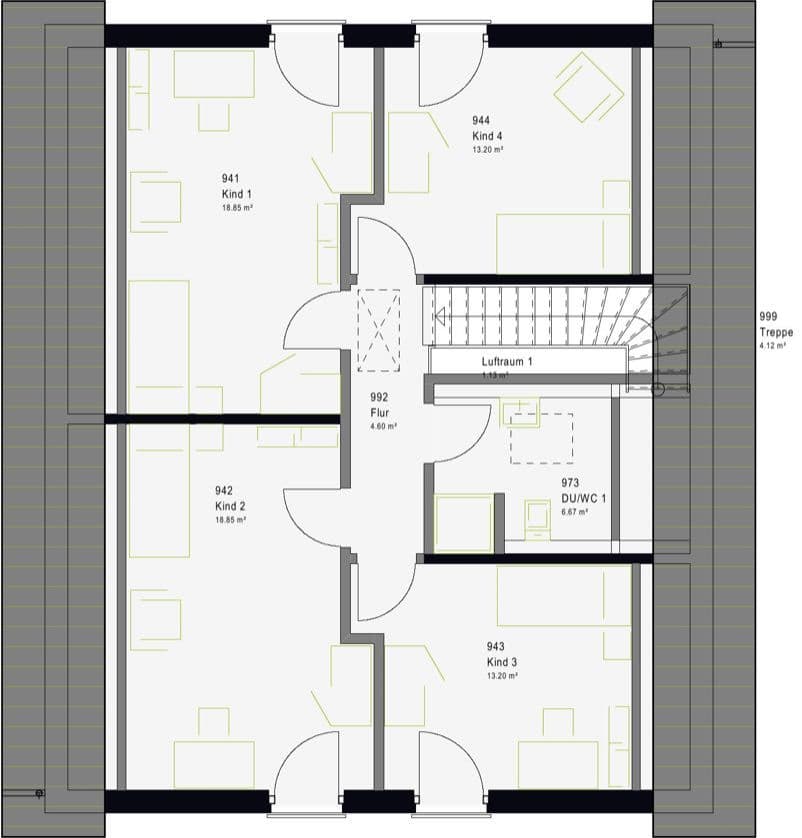
MA23_LifeS_17_01_S_DG_01_01.jpg
LifeStyle 17.01 S Grundriss (DG)Wohnfläche DG: 79,49 m²

Öffnungszeiten

Montag:08:00 - 16:00 Uhr
Dienstag:08:00 - 16:00 Uhr
Mittwoch:08:00 - 16:00 Uhr
Donnerstag:08:00 - 16:00 Uhr
Freitag:08:00 - 16:00 Uhr
Samstag:08:00 - 16:00 Uhr
Sonntag:08:00 - 16:00 Uhr

(öffnet Dienstag um 12:00 Uhr)

Adresse

Ostseeparkstraße 3
Rostock-Sievershagen 18069

Anfahrt planen

Beratungstermin

Fertighaus Team in Rostock-Sievershagen

Unser Team vor Ort

Musterhausteam Rostock (im Ostseepark)
Default AvatarDefault Avatar
Wir beraten Sie gerne!Arrow Icon
House and TreeParksHouse and PinMusterhausHouse on HandAnbieter