1. AnbieterArrow Icon
  2. massa hausArrow Icon
  3. LifeStyle 16.04 S
Slide 1
Location Icon
Slide 2
Location Icon
Slide 3
Location Icon
Slide 4
Location Icon
massahaus--Wortbildmarke.png
massa hausLifeStyle 16.04 S
homeKlassische Familienhäuser
livingArea162 m²
energyStandardEffizienzhaus 55
Preis anfragen

LifeStyle 16.04 S

Herzlich Willkommen im Musterhaus Illingen.

Hausdaten

Hausart Icon
HausartEinfamilienhaus
Bauweise Icon
BauweiseHolz-Tafelbau
Anzahl Räume Icon
Anzahl Räume5
Baustil Icon
BaustilKlassische Familienhäuser
Fassade Icon
FassadePutz
Außenmaße Icon
Außenmaße9.44 m x 10.64 m
Wohnfläche Icon
Wohnfläche162.45 m²
Dachform Icon
DachformSattel-/Giebeldach
Etagen Icon
Etagen1.5
Energiestandard Icon
EnergiestandardEffizienzhaus 55
Immobilientyp Icon
ImmobilientypMusterhaus
Dachneigung Icon
Dachneigung38°
Kniestock Icon
Kniestock0.8 m
Hausdämmstoff Icon
HausdämmstoffMineralfaser (Glaswolle, Steinwolle)
Heizungsart Icon
HeizungsartWärmepumpe (Luft, Wasser, oder beides)
Pfeil nach unten linksWir schaffen Platz für Ihre Träume

Grundriss

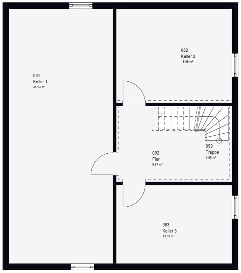
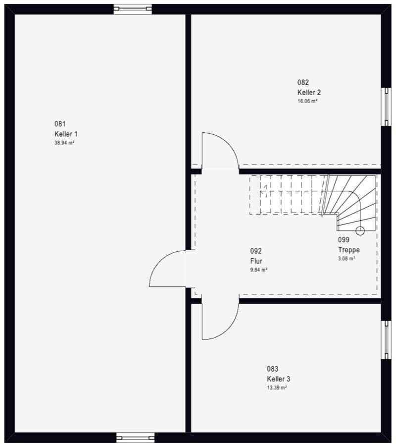
MA23_LifeS_16_04_S_KG_01_01_P.jpg
LifeStyle 16.04 S Grundriss (Keller)
MA23_LifeS_16_04_S_EG_01_01.jpg
LifeStyle 16.04 S Grundriss (EG)Wohnfläche EG: 83,17 m²
MA23_LifeS_16_04_S_DG_01_01.jpg
LifeStyle 16.04 S Grundriss (DG)Wohnfläche DG: 79,28 m²

Öffnungszeiten

Montag:09:00 - 16:00 Uhr
Dienstag:09:00 - 16:00 Uhr
Mittwoch:09:00 - 16:00 Uhr
Donnerstag:09:00 - 16:00 Uhr
Freitag:09:00 - 16:00 Uhr
Samstag:09:00 - 16:00 Uhr
Sonntag:09:00 - 16:00 Uhr

(öffnet Samstag um 13:00 Uhr)

Beratungstermin

Fertighaus Team in undefined

Unser Team vor Ort

Musterhausteam Illingen
Default AvatarDefault Avatar
Wir beraten Sie gerne!Arrow Icon
House and TreeParksHouse and PinMusterhausHouse on HandAnbieter