1. AnbieterArrow Icon
  2. massa hausArrow Icon
  3. LifeStyle 18.06 S
Slide 1
Location Icon
Slide 2
Location Icon
Slide 3
Location Icon
Slide 4
Location Icon
Slide 5
Location Icon
massahaus--Wortbildmarke.png
massa hausLifeStyle 18.06 S
homeKlassische Familienhäuser
livingArea182 m²
energyStandardEffizienzhaus 55
Preis anfragen

LifeStyle 18.06 S

Herzlich willkommen im massa-Musterhaus Reinfeld bei Lübeck!

 

Hausdaten

Hausart Icon
HausartEinfamilienhaus
Bauweise Icon
BauweiseHolz-Tafelbau
Anzahl Räume Icon
Anzahl Räume5
Baustil Icon
BaustilKlassische Familienhäuser
Fassade Icon
FassadePutz
Außenmaße Icon
Außenmaße10.04 m x 11.24 m
Wohnfläche Icon
Wohnfläche182 m²
Dachform Icon
DachformSattel-/Giebeldach
Etagen Icon
Etagen1.5
Energiestandard Icon
EnergiestandardEffizienzhaus 55
Immobilientyp Icon
ImmobilientypMusterhaus
Dachneigung Icon
Dachneigung38°
Kniestock Icon
Kniestock1 m
Heizungsart Icon
HeizungsartWärmepumpe (Luft, Wasser, oder beides)
Pfeil nach unten linksWir schaffen Platz für Ihre Träume

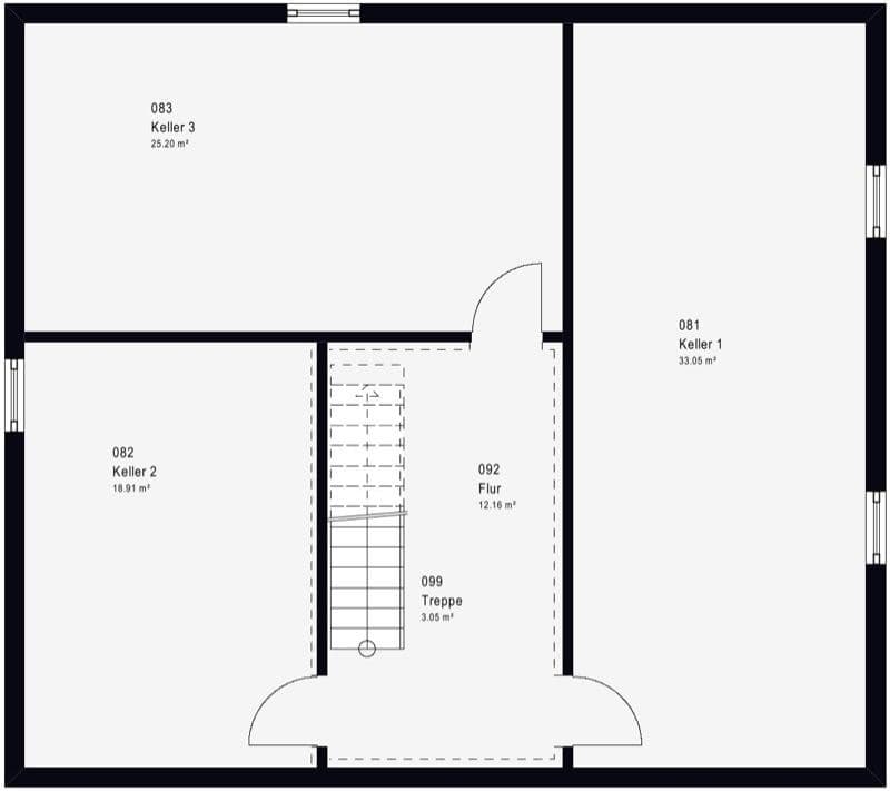
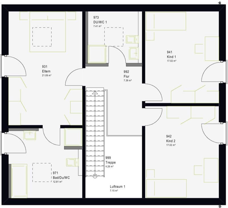
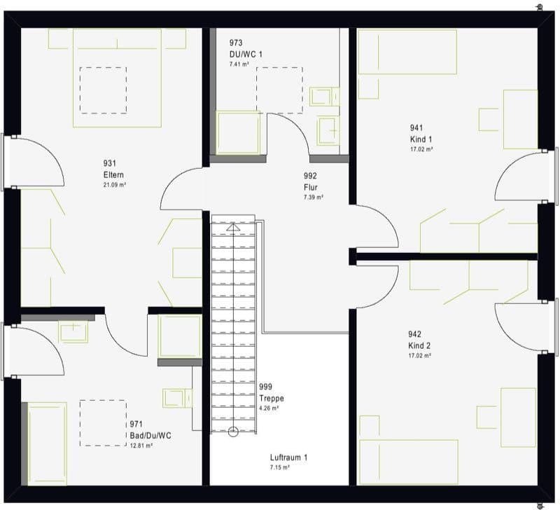
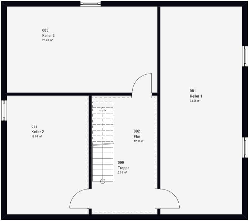
Grundriss

MA23_LifeS_18_06_S_KG_01_01_P.jpg
LifeStyle 18.06 S Grundriss (Keller)
MA23_LifeS_18_06_S_EG_01_01.jpg
LifeStyle 18.06 S Grundriss (EG)Wohnfläche EG: 95 m²
MA23_LifeS_18_06_S_DG_01_01.jpg
LifeStyle 18.06 S Grundriss (DG)Wohnfläche DG: 87 m²

Öffnungszeiten

Montag:08:00 - 16:00 Uhr
Dienstag:08:00 - 16:00 Uhr
Mittwoch:08:00 - 16:00 Uhr
Donnerstag:08:00 - 16:00 Uhr
Freitag:08:00 - 16:00 Uhr
Samstag:08:00 - 16:00 Uhr
Sonntag:08:00 - 16:00 Uhr

(schließt heute 16:00 Uhr)

Adresse

Barnitzer Str. 14a
Reinfeld 23858

Anfahrt planen

Beratungstermin

Fertighaus Team in Reinfeld

Unser Team vor Ort

Musterhausteam Reinfeld b. Lübeck
Default AvatarDefault Avatar
Wir beraten Sie gerne!Arrow Icon
House and TreeParksHouse and PinMusterhausHouse on HandAnbieter