1. AnbieterArrow Icon
  2. massa hausArrow Icon
  3. LifeStyle 14.01 S
Slide 1
Location Icon
Slide 2
Location Icon
Slide 3
Location Icon
Slide 4
Location Icon
Slide 5
Location Icon
Slide 6
Location Icon
massahaus--Wortbildmarke.png
massa hausLifeStyle 14.01 S
homeKlassische Familienhäuser
livingArea146 m²
energyStandardEffizienzhaus 55
Preis anfragen

LifeStyle 14.01 S

Herzlich willkommen im massa-Musterhaus Poing!

Hausdaten

Hausart Icon
HausartEinfamilienhaus
Bauweise Icon
BauweiseHolz-Tafelbau
Anzahl Räume Icon
Anzahl Räume5
Baustil Icon
BaustilKlassische Familienhäuser
Fassade Icon
FassadePutz
Außenmaße Icon
Außenmaße10.04 m x 10.04 m
Wohnfläche Icon
Wohnfläche146.32 m²
Dachform Icon
DachformSattel-/Giebeldach
Etagen Icon
Etagen1.5
Energiestandard Icon
EnergiestandardEffizienzhaus 55
Immobilientyp Icon
ImmobilientypMusterhaus
Dachneigung Icon
Dachneigung38°
Kniestock Icon
Kniestock38 m
Heizungsart Icon
HeizungsartWärmepumpe (Luft, Wasser, oder beides)
Pfeil nach unten linksWir schaffen Platz für Ihre Träume

Grundriss

MA23_LifeS_14_01_S_KG_01_01_P.jpg
LifeStyle 14.01 S Grundriss (Keller)
MA23_LifeS_14_01_S_EG_01_01.jpg
LifeStyle 14.01 S Grundriss (EG)Wohnfläche EG: 83,82 m²
MA23_LifeS_14_01_S_DG_01_01.jpg
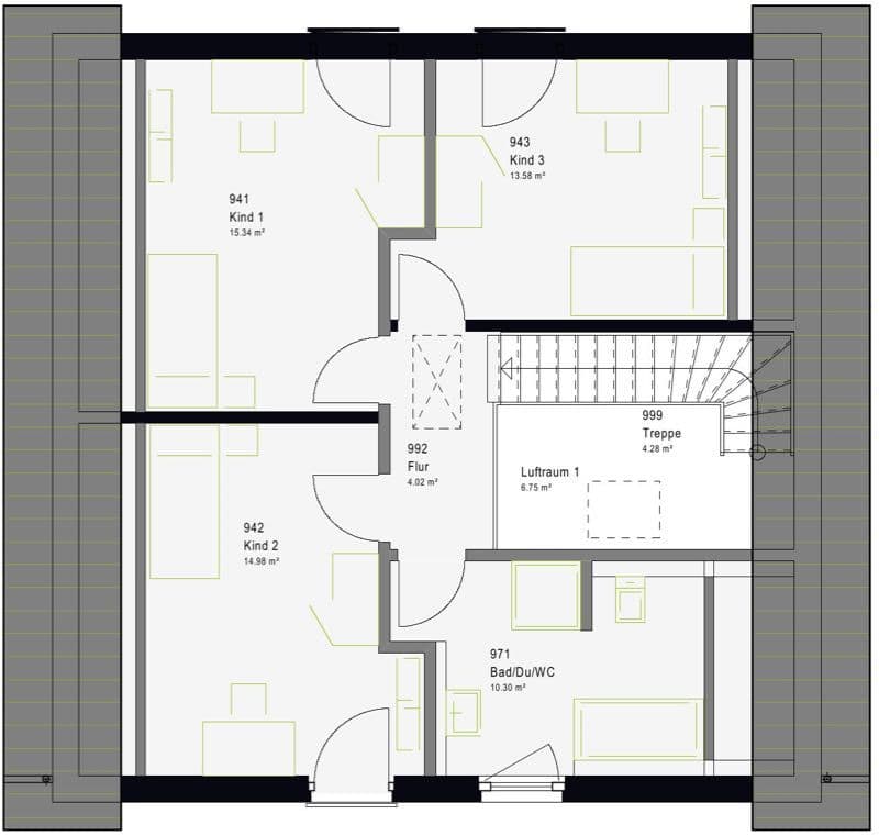
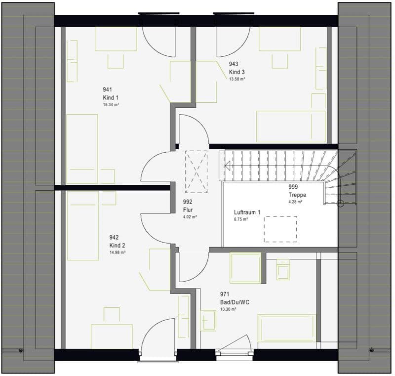
LifeStyle 14.01 S Grundriss (DG)Wohnfläche DG: 62,5 m²

Öffnungszeiten

Montag:08:00 - 15:00 Uhr
Dienstag:08:00 - 15:00 Uhr
Mittwoch:08:00 - 15:00 Uhr
Donnerstag:08:00 - 15:00 Uhr
Freitag:08:00 - 15:00 Uhr
Samstag:08:00 - 15:00 Uhr
Sonntag:08:00 - 15:00 Uhr

(öffnet Samstag um 12:00 Uhr)

Adresse

Senator-Gerauer-Straße 25
Poing 85586

Anfahrt planen

Beratungstermin

Fertighaus Team in Poing
House and TreeParksHouse and PinMusterhausHouse on HandAnbieter