1. AnbieterArrow Icon
  2. massa hausArrow Icon
  3. LifeStyle 16.03 S
Slide 1
Location Icon
Slide 2
Location Icon
Slide 3
Location Icon
Slide 4
Location Icon
massahaus--Wortbildmarke.png
massa hausLifeStyle 16.03 S
homeKlassische Familienhäuser
livingArea169 m²
energyStandardEffizienzhaus 55
Preis anfragen

LifeStyle 16.03 S

Herzlich willkommen in unseren beiden massa-Musterhäusern in Leipzig-Heiterblick!

 

Hausdaten

Hausart Icon
HausartEinfamilienhaus
Bauweise Icon
BauweiseHolz-Tafelbau
Anzahl Räume Icon
Anzahl Räume5
Baustil Icon
BaustilKlassische Familienhäuser
Fassade Icon
FassadePutz
Außenmaße Icon
Außenmaße9.74 m x 10.64 m
Wohnfläche Icon
Wohnfläche169.27 m²
Dachform Icon
DachformSattel-/Giebeldach
Etagen Icon
Etagen1.5
Energiestandard Icon
EnergiestandardEffizienzhaus 55
Immobilientyp Icon
ImmobilientypMusterhaus
Dachneigung Icon
Dachneigung38°
Kniestock Icon
Kniestock1.5 m
Heizungsart Icon
HeizungsartWärmepumpe (Luft, Wasser, oder beides)
Pfeil nach unten linksWir schaffen Platz für Ihre Träume

Grundriss

MA23_LifeS_16_03_S_KG_01_01_P.jpg
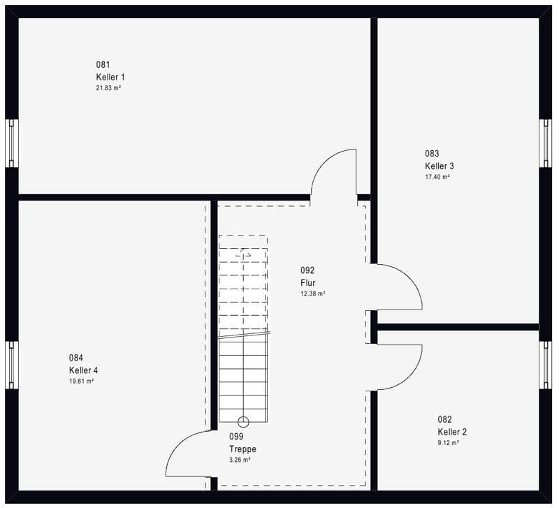
LifeStyle 16.03 S Grundriss (Keller)
MA23_LifeS_16_03_S_EG_01_01.jpg
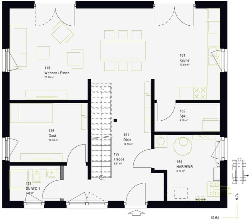
LifeStyle 16.03 S Grundriss (EG)Wohnfläche EG: 86,09 m²
MA23_LifeS_16_03_S_DG_01_01.jpg
LifeStyle 16.03 S Grundriss (DG)

Öffnungszeiten

Montag:08:00 - 16:00 Uhr
Dienstag:08:00 - 16:00 Uhr
Mittwoch:08:00 - 16:00 Uhr
Donnerstag:08:00 - 16:00 Uhr
Freitag:08:00 - 16:00 Uhr
Samstag:08:00 - 16:00 Uhr
Sonntag:08:00 - 16:00 Uhr

(schließt heute 16:00 Uhr)

Adresse

Torgauer Straße 271
Leipzig-Heiterblick 04347

Anfahrt planen

Beratungstermin

Fertighaus Team in Leipzig-Heiterblick

Unser Team vor Ort

Musterhausteam Leipzig
Default AvatarDefault Avatar
Wir beraten Sie gerne!Arrow Icon
House and TreeParksHouse and PinMusterhausHouse on HandAnbieter