1. AnbieterArrow Icon
  2. massa hausArrow Icon
  3. LifeStyle 16.03 S
Slide 1
Location Icon
Slide 2
Location Icon
Slide 3
Location Icon
Slide 4
Location Icon
massahaus--Wortbildmarke.png
massa hausLifeStyle 16.03 S
homeKlassische Familienhäuser
livingArea169 m²
energyStandardEffizienzhaus 55
Preis anfragen

LifeStyle 16.03 S

Herzlich willkommen im massa-Musterhaus Straubing!

Starten Sie jetzt Ihren Weg ins eigene Haus. Auf Sie wartet in Straubing das Einfamilienhaus LifeStyle 18.06 S. Ob Einfamilienhaus, Bungalow, Stadtvilla, Mehrgenerationhaus oder Doppelhaus - wir beraten Sie gerne unverbindlich und finden mit Ihnen zusammen den perfekten Grundriss. Wir haben für Sie täglich, auch an Sonn- und Feiertagen, von 10 bis 18 Uhr geöffnet. Besuchen Sie uns spontan oder vereinbaren Sie direkt einen Termin mit unseren Verkaufsberatern vor Ort. Wir freuen uns auf Ihren Besuch. Ihr massa haus Musterhausteam Straubing

Hausdaten

Hausart Icon
HausartEinfamilienhaus
Bauweise Icon
BauweiseHolz-Tafelbau
Anzahl Räume Icon
Anzahl Räume5
Baustil Icon
BaustilKlassische Familienhäuser
Fassade Icon
FassadePutz
Außenmaße Icon
Außenmaße9.74 m x 10.64 m
Wohnfläche Icon
Wohnfläche169.27 m²
Dachform Icon
DachformSattel-/Giebeldach
Etagen Icon
Etagen1.5
Energiestandard Icon
EnergiestandardEffizienzhaus 55
Immobilientyp Icon
ImmobilientypMusterhaus
Dachneigung Icon
Dachneigung38°
Kniestock Icon
Kniestock1.5 m
Heizungsart Icon
HeizungsartWärmepumpe (Luft, Wasser, oder beides)
Pfeil nach unten linksWir schaffen Platz für Ihre Träume

Grundriss

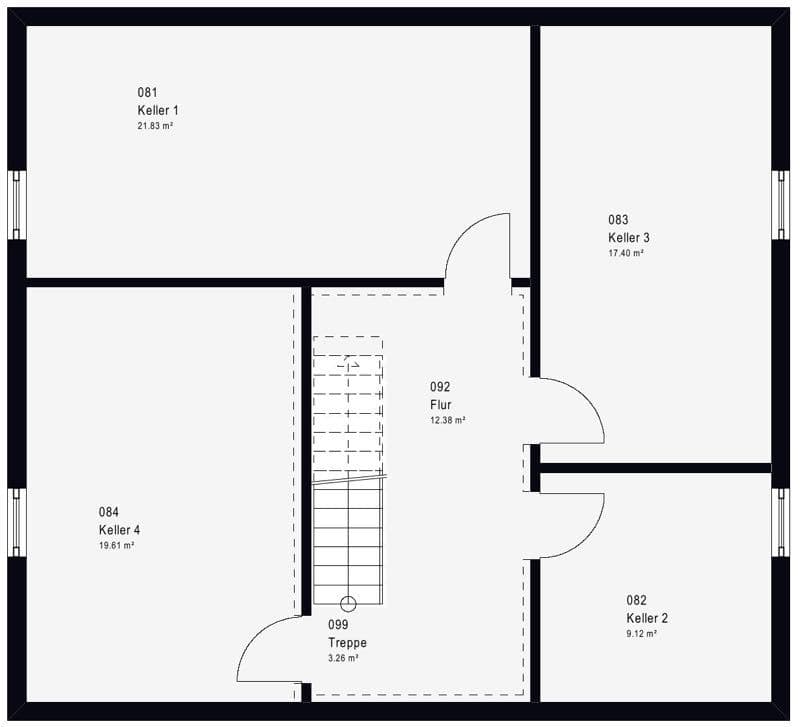
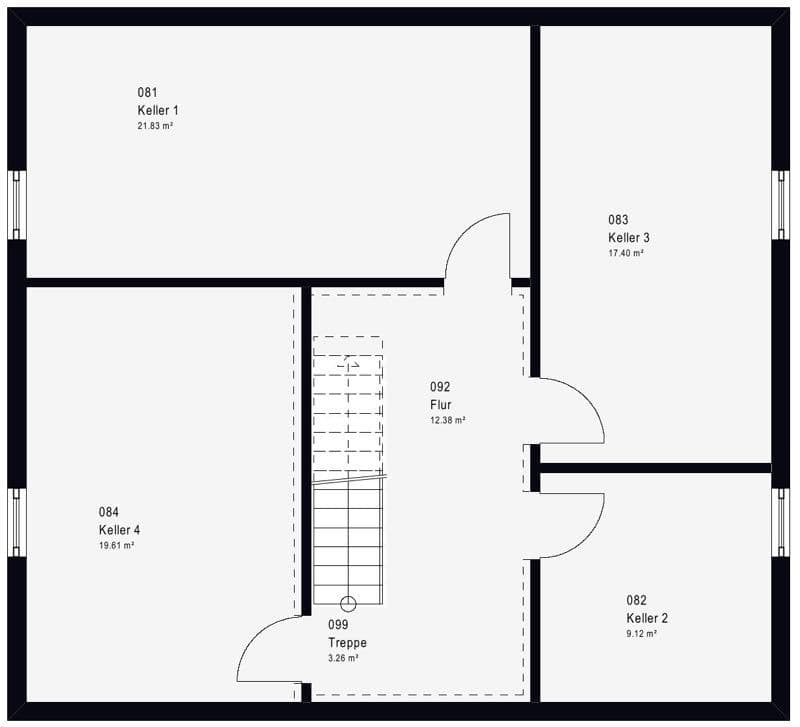
MA23_LifeS_16_03_S_KG_01_01_P.jpg
LifeStyle 16.03 S Grundriss (Keller)
MA23_LifeS_16_03_S_EG_01_01.jpg
LifeStyle 16.03 S Grundriss (EG)Wohnfläche EG: 86,09 m²
MA23_LifeS_16_03_S_DG_01_01.jpg
LifeStyle 16.03 S Grundriss (DG)Wohnfläche DG: 83,18 m²

Öffnungszeiten

Montag:08:00 - 16:00 Uhr
Dienstag:08:00 - 16:00 Uhr
Mittwoch:08:00 - 16:00 Uhr
Donnerstag:08:00 - 16:00 Uhr
Freitag:08:00 - 16:00 Uhr
Samstag:08:00 - 16:00 Uhr
Sonntag:08:00 - 16:00 Uhr

(öffnet Samstag um 12:00 Uhr)

Adresse

Industriestraße 41A
Ergolding 84030

Anfahrt planen

Beratungstermin

Fertighaus Team in Ergolding

Unser Team vor Ort

Musterhausteam Straubing
Default AvatarDefault Avatar
Wir beraten Sie gerne!Arrow Icon
House and TreeParksHouse and PinMusterhausHouse on HandAnbieter