1. AnbieterArrow Icon
  2. massa hausArrow Icon
  3. LifeStyle 14.01 S
Slide 1
Location Icon
Slide 2
Location Icon
Slide 3
Location Icon
Slide 4
Location Icon
massahaus--Wortbildmarke.png
massa hausLifeStyle 14.01 S
homeKlassische Familienhäuser
livingArea146 m²
energyStandardEffizienzhaus 55
Preis anfragen

LifeStyle 14.01 S

Herzlich willkommen in unseren massa-Musterhäusern Chemnitz!

 

Hausdaten

Hausart Icon
HausartEinfamilienhaus
Bauweise Icon
BauweiseHolz-Tafelbau
Anzahl Räume Icon
Anzahl Räume5
Baustil Icon
BaustilKlassische Familienhäuser
Fassade Icon
FassadePutz
Außenmaße Icon
Außenmaße10.04 m x 10.04 m
Wohnfläche Icon
Wohnfläche146.32 m²
Dachform Icon
DachformSattel-/Giebeldach
Etagen Icon
Etagen2
Energiestandard Icon
EnergiestandardEffizienzhaus 55
Immobilientyp Icon
ImmobilientypMusterhaus
Dachneigung Icon
Dachneigung38°
Kniestock Icon
Kniestock0.26 m
Heizungsart Icon
HeizungsartWärmepumpe (Luft, Wasser, oder beides)
Pfeil nach unten linksWir schaffen Platz für Ihre Träume

Grundriss

MA23_LifeS_14_01_S_KG_01_01_P.jpg
LifeStyle 14.01 S Grundriss (Keller)
MA23_LifeS_14_01_S_EG_01_01.jpg
LifeStyle 14.01 S Grundriss (EG)Wohnfläche EG: 83,82 m²
MA23_LifeS_14_01_S_DG_01_01.jpg
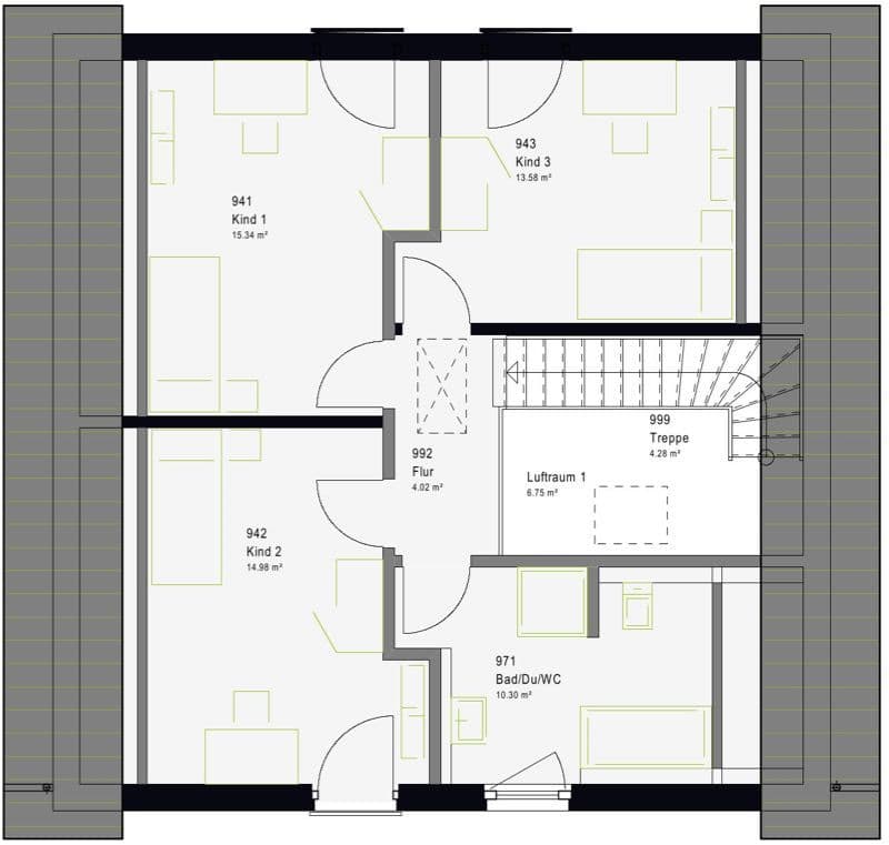
LifeStyle 14.01 S Grundriss (DG)Wohnfläche DG: 62,5 m²

Öffnungszeiten

Montag:08:00 - 16:00 Uhr
Dienstag:08:00 - 16:00 Uhr
Mittwoch:08:00 - 16:00 Uhr
Donnerstag:08:00 - 16:00 Uhr
Freitag:08:00 - 16:00 Uhr
Samstag:08:00 - 16:00 Uhr
Sonntag:08:00 - 16:00 Uhr

(schließt heute 16:00 Uhr)

Adresse

Gewerbepark Planitzwiese 18
Chemnitz 09130

Anfahrt planen

Beratungstermin

Fertighaus Team in Chemnitz

Unser Team vor Ort

Musterhausteam Chemnitz
Default AvatarDefault Avatar
Wir beraten Sie gerne!Arrow Icon
House and TreeParksHouse and PinMusterhausHouse on HandAnbieter