1. AnbieterArrow Icon
  2. massa hausArrow Icon
  3. LifeStyle 20.03 S
Slide 1
Location Icon
Slide 2
Location Icon
Slide 3
Location Icon
Slide 4
Location Icon
massahaus--Wortbildmarke.png
massa hausLifeStyle 20.03 S
homeKlassische Familienhäuser
livingArea228 m²
energyStandardEffizienzhaus 55
Preis anfragen

LifeStyle 20.03 S

Herzlich willkommen im massa-Musterhaus Lotte!

 

Hausdaten

Hausart Icon
HausartEinfamilienhaus
Bauweise Icon
BauweiseHolz-Tafelbau
Anzahl Räume Icon
Anzahl Räume5
Baustil Icon
BaustilKlassische Familienhäuser
Fassade Icon
FassadePutz
Außenmaße Icon
Außenmaße10.04 m x 13.64 m
Wohnfläche Icon
Wohnfläche227.51 m²
Dachform Icon
DachformSattel-/Giebeldach
Etagen Icon
Etagen1.5
Energiestandard Icon
EnergiestandardEffizienzhaus 55
Immobilientyp Icon
ImmobilientypMusterhaus
Dachneigung Icon
Dachneigung38°
Kniestock Icon
Kniestock1 m
Heizungsart Icon
HeizungsartWärmepumpe (Luft, Wasser, oder beides)
Pfeil nach unten linksWir schaffen Platz für Ihre Träume

Grundriss

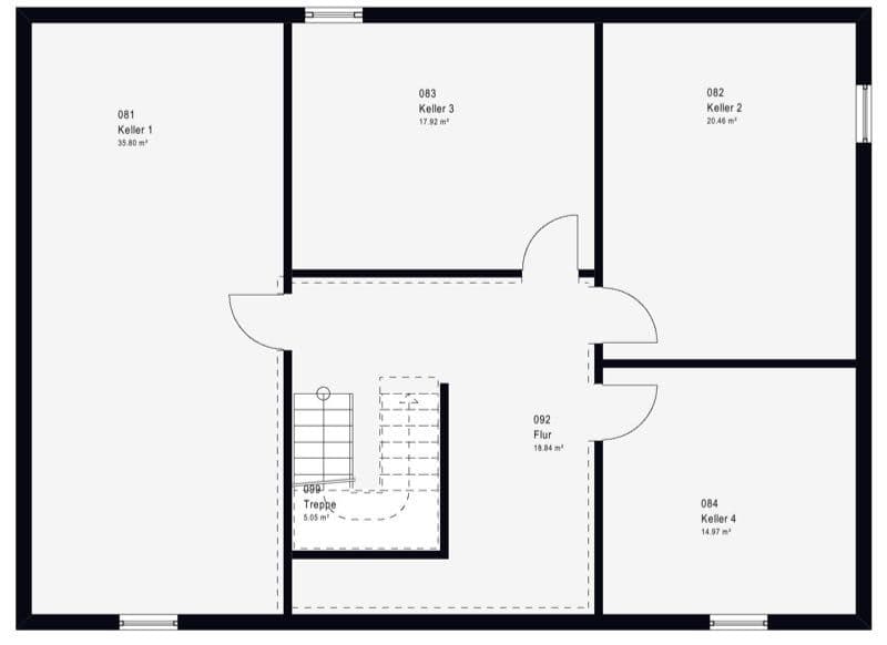
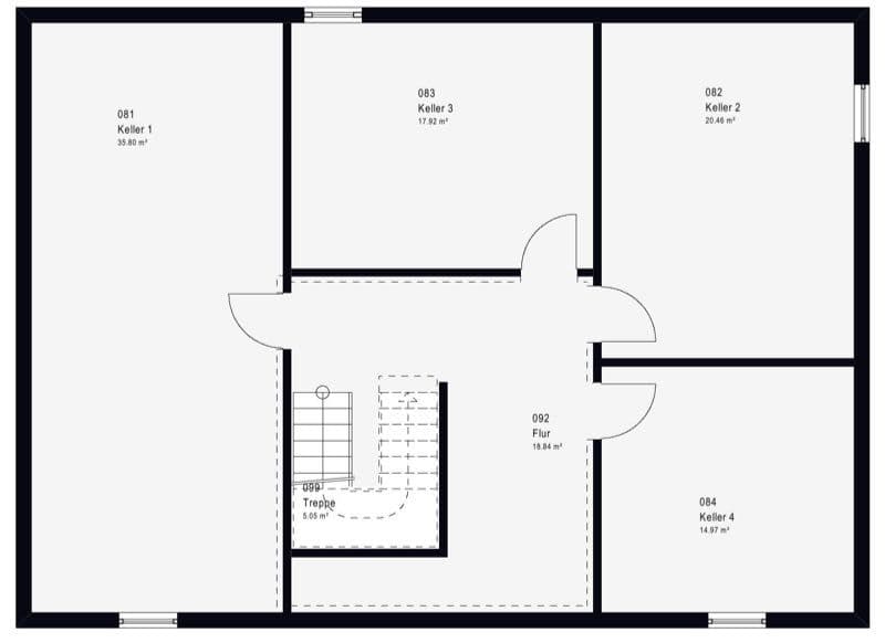
MA23_LifeS_20_03_S_KG_01_01_P.jpg
LifeStyle 20.03 S Grundriss (Keller)
MA23_LifeS_20_03_S_EG_01_01.jpg
LifeStyle 20.03 S Grundriss (EG)Wohnfläche EG: 115,47 m²
MA23_LifeS_20_03_S_DG_01_01.jpg
LifeStyle 20.03 S Grundriss (DG)

Öffnungszeiten

Montag:08:00 - 16:00 Uhr
Dienstag:08:00 - 16:00 Uhr
Mittwoch:08:00 - 16:00 Uhr
Donnerstag:08:00 - 16:00 Uhr
Freitag:08:00 - 16:00 Uhr
Samstag:08:00 - 16:00 Uhr
Sonntag:08:00 - 16:00 Uhr

(öffnet Samstag um 12:00 Uhr)

Adresse

Teichweg 18
Lotte 49504

Anfahrt planen

Beratungstermin

Fertighaus Team in Lotte

Unser Team vor Ort

Default AvatarDefault Avatar
Wir beraten Sie gerne!Arrow Icon
House and TreeParksHouse and PinMusterhausHouse on HandAnbieter