1. AnbieterArrow Icon
  2. LUXHAUSArrow Icon
  3. Flachdach 153
Slide 1
Slide 2
Slide 3
Slide 4
no description
LUXHAUSFlachdach 153
homeBungalow
livingArea153 m²
energyStandardEffizienzhaus 55
Preis anfragen
Katalog bestellen

Flachdach 153

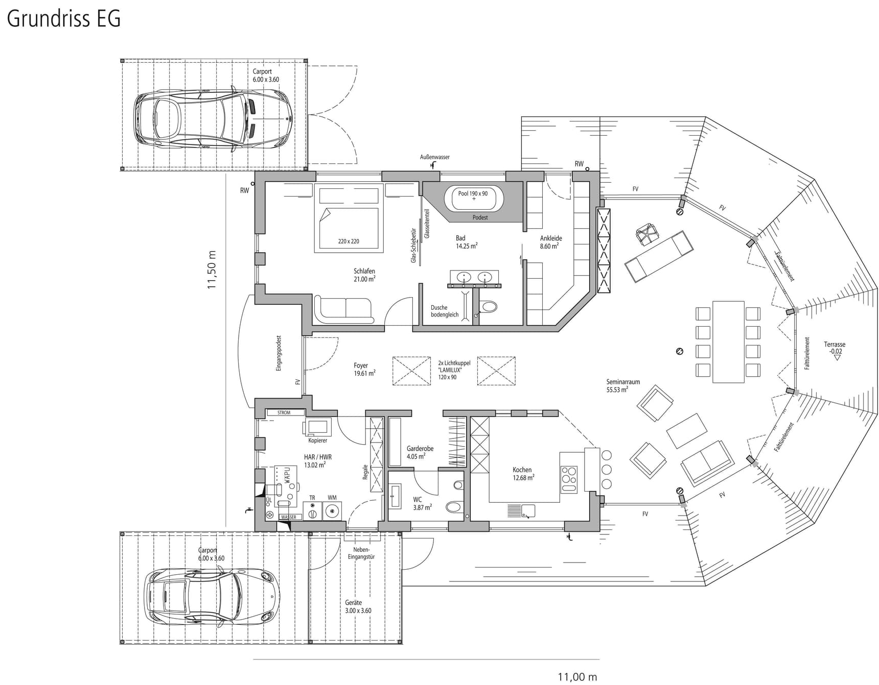
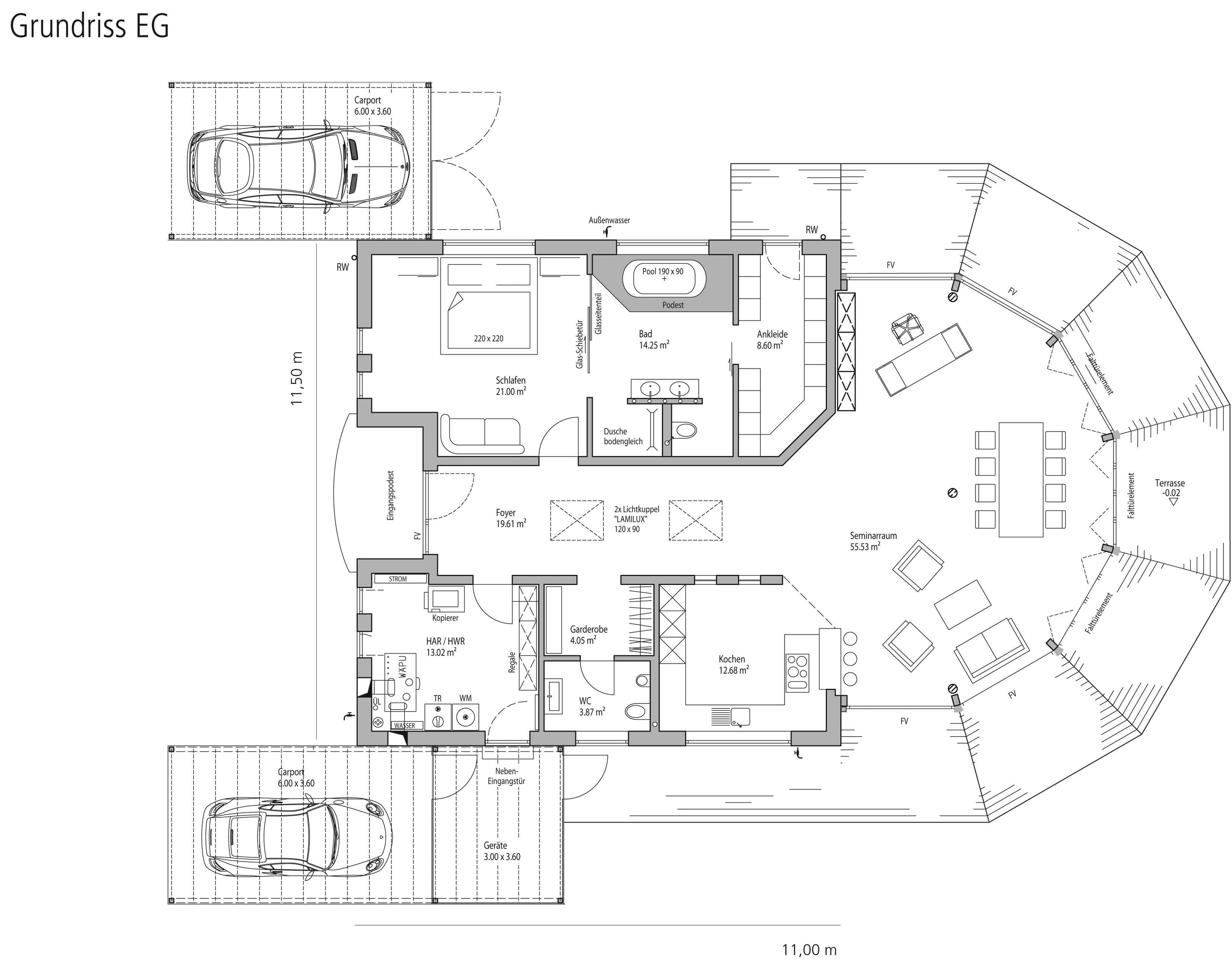
Wohnen und Arbeiten werden hier verbunden, allerdings nicht zeitgleich, sondern hintereinander. Das aktuell als Seminarzentrum genutzte Gebäude soll anschließend zum Wohnhaus umfunktioniert werden. Diese Nutzung wird insbesondere an der ausgearbeiteten Sanitärausstattung sichtbar.

Hausdaten

Hausart Icon
HausartEinfamilienhaus
Bauweise Icon
BauweiseHolz-Tafelbau
Anzahl Räume Icon
Anzahl Räume4
Baustil Icon
BaustilBungalow
Fassade Icon
FassadePutz
Außenmaße Icon
Außenmaße11 m x 18.7 m
Wohnfläche Icon
Wohnfläche152.61 m²
Dachform Icon
DachformFlachdach
Etagen Icon
Etagen1
Energiestandard Icon
EnergiestandardEffizienzhaus 55
Immobilientyp Icon
ImmobilientypKundenhaus
Dachneigung Icon
Dachneigung
Mittlerer U-Wert Icon
Mittlerer U-Wert0.12 W/m²K
Hauseigenschaften Icon
HauseigenschaftenViel Glas
Hausdämmstoff Icon
HausdämmstoffHolzfaser- und Zellulosedämmstoffe
Heizungsart Icon
HeizungsartWärmepumpe (Luft, Wasser, oder beides)
Pfeil nach unten linksWir schaffen Platz für Ihre Träume

Grundriss

no description
Flachdach 153 Grundriss (EG)Wohnfläche EG: 152,61 m²

Unser Team vor Ort

LUXHAUSFachberater*in bei LUXHAUS
Default Avatar
Wir beraten Sie gerne!Arrow Icon

Kataloge

LUXHAUS: Climatic Wand
LUXHAUS

LUXHAUS: Climatic Wand


LUXHAUS: Garagen
LUXHAUS

LUXHAUS: Garagen


LUXHAUS: Mehrwerte
LUXHAUS

LUXHAUS: Mehrwerte


LUXHAUS: Kundenhäuser
LUXHAUS

LUXHAUS: Kundenhäuser


House and TreeParksHouse and PinMusterhausHouse on HandAnbieter