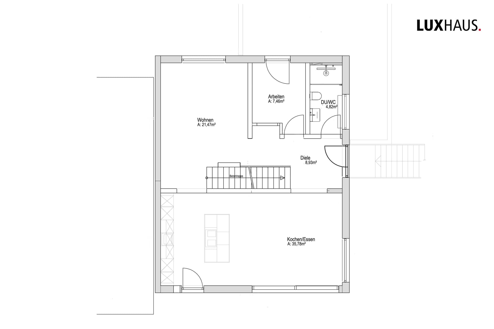
Die Hanglage prägt das Gebäude durch seine gestaffelte Bauweise und die optimale Grundstücksnutzung. Ein offener Wohn-, Koch- und Essbereich im Erdgeschoss wird durch eine raumteilende Betontreppe strukturiert. Große Glasflächen sorgen für Helligkeit, während die Terrasse über der Garage einen weiten Ausblick bietet.
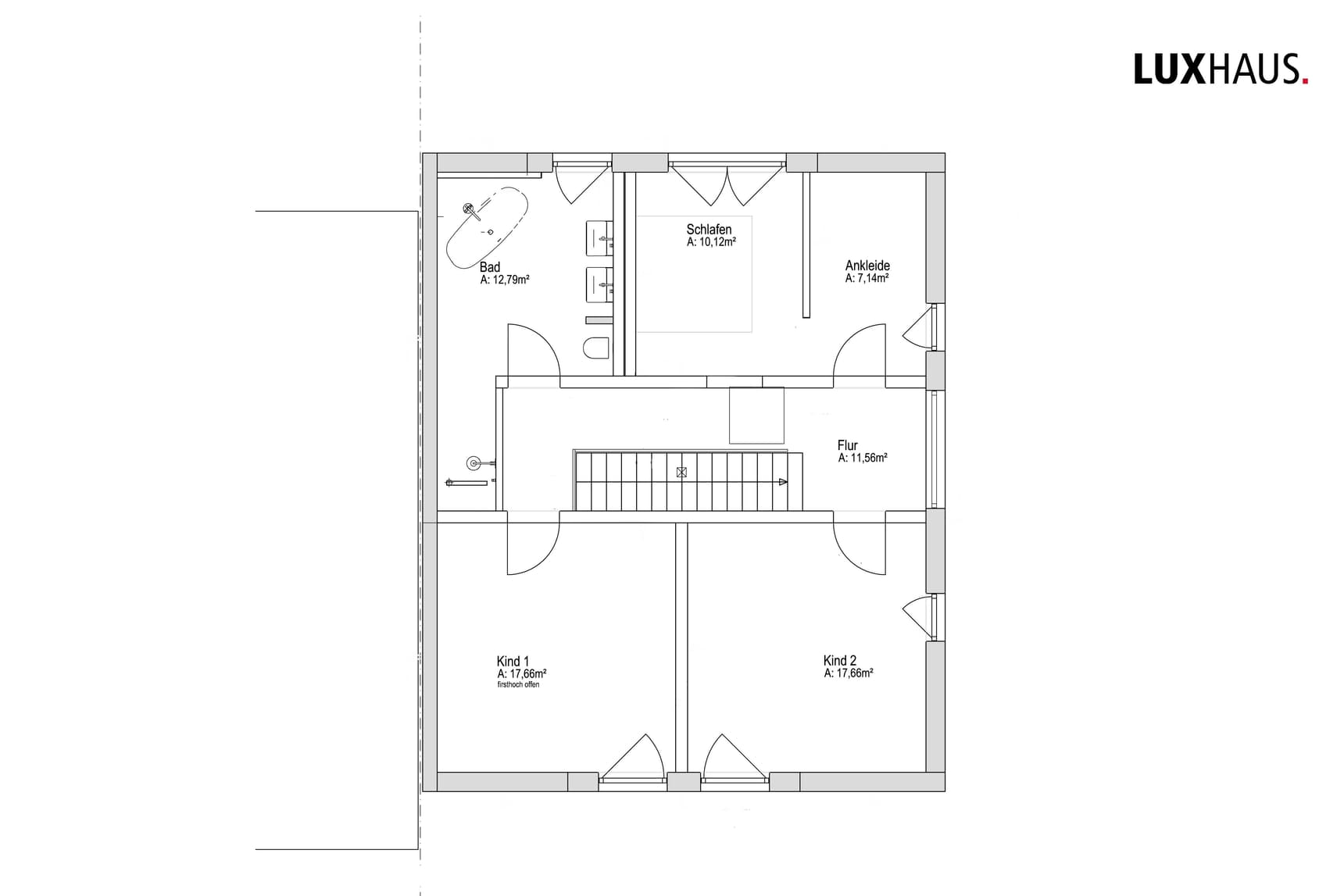
Im Obergeschoss schaffen bodentiefe Fenster, firsthohe Decken und eine zusätzliche Ebene in den Kinderzimmern ein großzügiges Raumgefühl. Das Familienbad kombiniert freistehende Wanne, Doppelwaschtisch und ebenerdige Dusche. Die Garage fügt sich dank Holzverschalung harmonisch ins Gesamtbild ein.

