1. AnbieterArrow Icon
  2. ISOWOODHAUSArrow Icon
  3. Ökologisch wohnen im Landhausstil
Slide 1
Slide 2
Slide 3
Logo
ISOWOODHAUSÖkologisch wohnen im Landhausstil
homeKlassische Familienhäuser
livingArea154 m²
energyStandardEffizienzhaus 40
Preis anfragen
Katalog bestellen

Ökologisch wohnen im Landhausstil

Modern mit Holzverkleidung

Familie Heimes:
„Viel Platz zum Spielen und Leben, aber auch Raum für Ruhe und Entspannung: die Raumaufteilung unseres Hauses bietet Beides. Wir sind begeistert.“

Für den Entwurf dieses ISOWOODHAUSES hat die Baufamilie selbst einen Architekten mit der Planung beauftragt. Zentimetergenau haben wir bei holz & raum diese Vorgaben in der bewährten ISOWOOD-Bauweise realisiert. Natürlich können Sie auch mit unseren Planungsingenieuren derartige Projekte umsetzen und unsere Hilfe in Anspruch nehmen.


Individuell an diesem Haus sind neben dem interessanten Grundriss des Erdgeschosses die moderne Holzverkleidung im oberen Bereich, das großzügige Bad und die geräumigen
Kinderzimmer.

Hausdaten

Hausart Icon
HausartEinfamilienhaus
Bauweise Icon
BauweiseHolz-Tafelbau
Baustil Icon
BaustilKlassische Familienhäuser
Fassade Icon
FassadePutz
Wohnfläche Icon
Wohnfläche153.8 m²
Dachform Icon
DachformSattel-/Giebeldach
Etagen Icon
Etagen2
Energiestandard Icon
EnergiestandardEffizienzhaus 40
Immobilientyp Icon
ImmobilientypKundenhaus
Mittlerer U-Wert Icon
Mittlerer U-Wert0.14 W/m²K
Hausdämmstoff Icon
HausdämmstoffHolzfaser- und Zellulosedämmstoffe
Heizungsart Icon
HeizungsartWärmepumpe (Luft, Wasser, oder beides)
Pfeil nach unten linksWir schaffen Platz für Ihre Träume

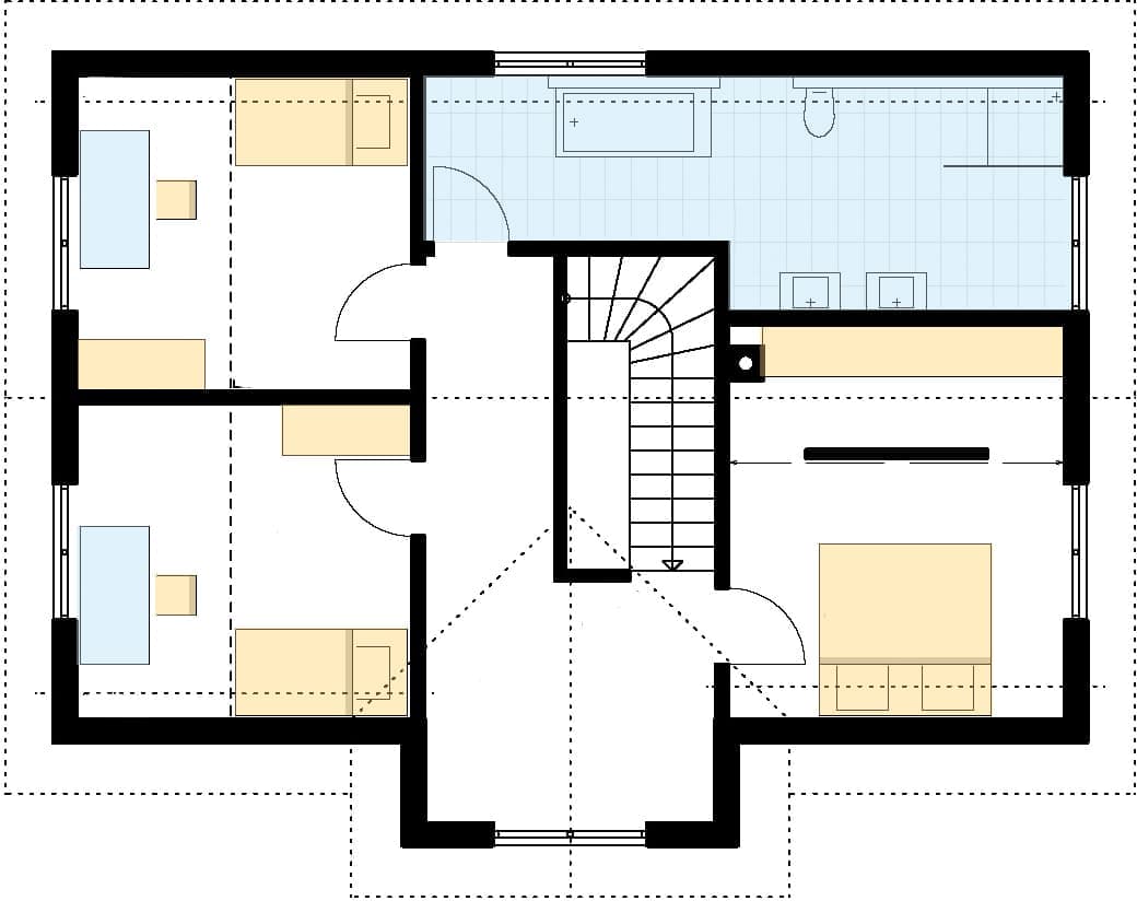
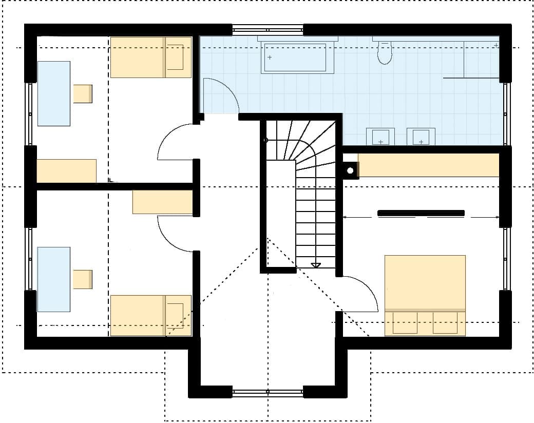
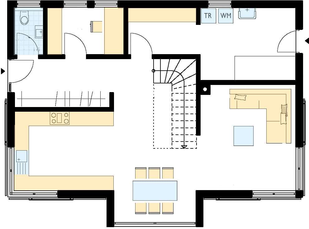
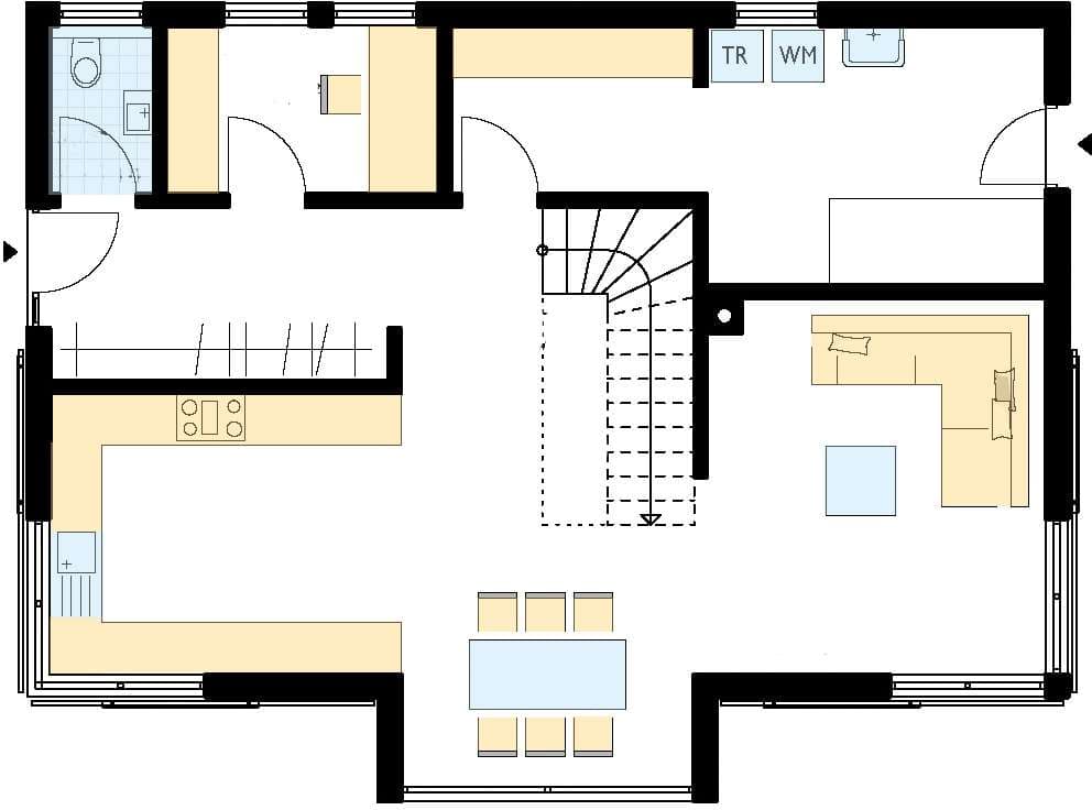
Grundriss

no description
Ökologisch wohnen im Landhausstil Grundriss (EG)
no description
Ökologisch wohnen im Landhausstil Grundriss (OG)

Kataloge

ISOWOODHAUS: Hauskatalog
ISOWOODHAUS

ISOWOODHAUS: Hauskatalog


House and TreeParksHouse and PinMusterhausHouse on HandAnbieter