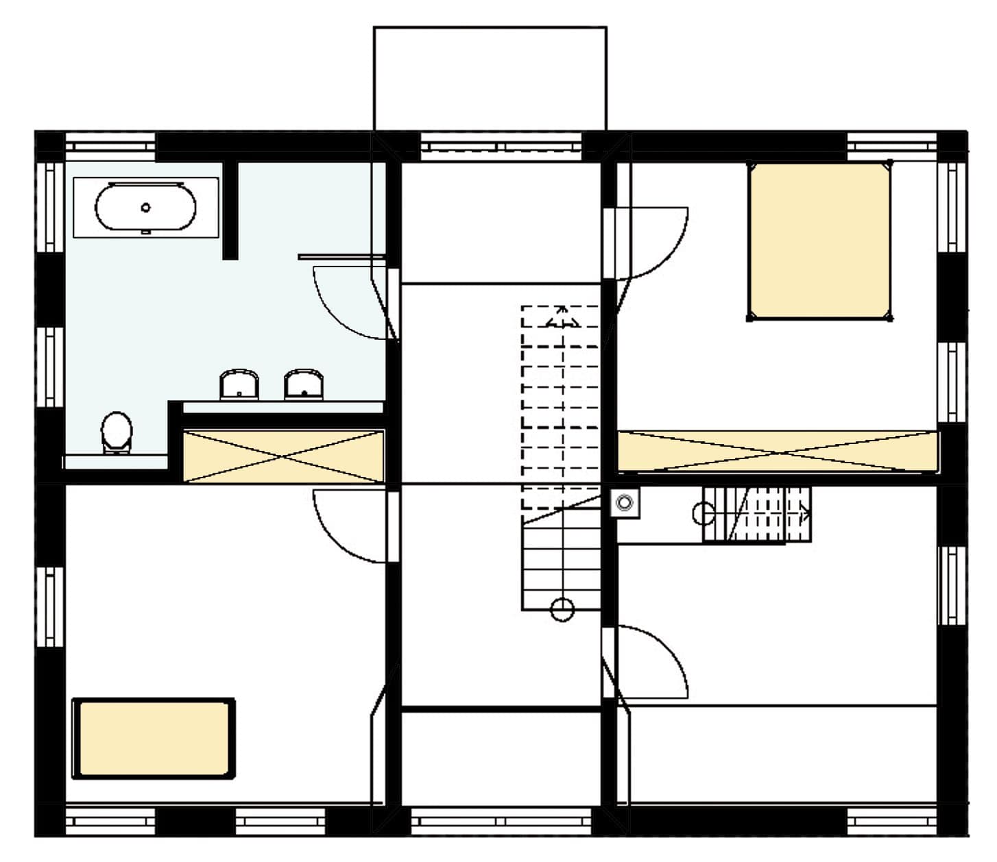
Das ISOWOOD-Musterhaus in Köln ist, wie jedes ISOWOODhaus, ein echtes Unikat. Das moderne Einfamilienhaus ist ein KfW-40 Effizienzhaus und besticht durch einen modernen, offen gestalteten Grundriss. Die Besonderheit dieses Musterhauses - es ist mit einer zukunftsweisenden SMART HOME-Technik ausgestattet und kann komplett vom Smartphone gesteuert werden. Sowohl die Beschattung der Fenster, die Beleuchtung, als auch die Heizungsanlage sind so bequem zu bedienen.
Wie jedes ISOWOODhaus empfängt auch dieses Musterhaus die Besucher mit einem wohligen Holzgeruch, der von hervorragendem, baubiologisch einwandfreiem und wohngesunden Raumklima zeugt. Unsere ISOWOOD-Bauweise birgt ein Qualitätsversprechen. Wir verbauen keinerlei Folien, Polystyrol (Styropor) oder Mineralfaserdämmstoffe und bieten Ihnen damit nicht nur ein dampfdiffusionsoffenes, sondern auch ein schadstofffreies Zuhause.
Erfahren Sie mehr über die Vorteile von ISOWOODhaus unter isowoodhaus.de


(öffnet Donnerstag um 13:00 Uhr)
